Россия, Москва, Большая Бронная ул., 25С3
204 120 000 Р 2 573 500 $ или 2 198 100

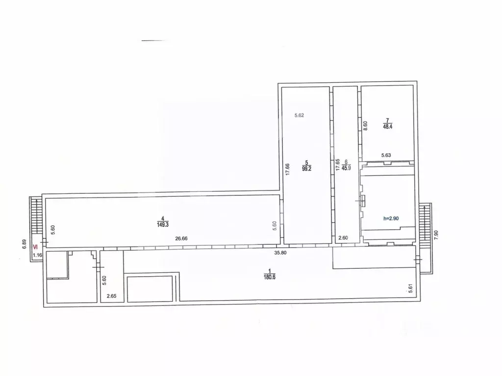
Информация об помещении

1
Этаж

Состояние и оснащение

Количество этажей
3
Развернуть
Агент
+7 (938) 656-74-88
Начать чат с агентом

Помещение свободного назначения в Москва Большая Бронная ул., 25С3 (54 ...

863184 . Предлагаем помещение свободного назначения с арендатором сетевая бургерная Smash Point , площадью 53.9 кв. м, расположенное на первом этаже 3-этажного административного здания. Без комиссии для покупателя.Преимущества объекта:-первая линия ул. Большая Бронная;-шаговая доступность от станции метро Пушкинская (2 минуты пешком);-удобная транспортная доступность: 1 км до Садового кольца, 2.3 км до Ленинградского проспекта, 4.3 км до Звенигородского шоссе, 4.9 км до ТТК;-плотный жилой массив;-развитая инфраструктура района;-высокий автомобильный и пешеходный трафик;-отлично просматривается, находится в легком доступе для потенциальных клиентов;-гибкая планировка, позволяющая адаптировать пространство под различные нужды;-все городские инженерные коммуникации;-санузел;-отдельный прибор учета электричества;-витринное остекление;-возможность размещения вывески;-ж/б перекрытия;-наземная парковка.Технические параметры объекта:-отдельный вход с фасада.-высота потолков: от 3.4 м до 3.6 м.Информация об арендаторе: -арендатор: сетевая бургерная Smash Point , ДДА.-прибыль:уб/мес.-окупаемость: 13.5 лет.-доходность: 7.41 Свяжитесь с нами для получения дополнительной информации

Читать полностью
    Позвонить Написать
    204 120 000 Р2 573 500 $ или 2 198 100
    Агент
    +7 (938) 656-74-88
    Начать чат с агентом
    Похожие предложения
    Помещение свободного назначения в Москва Большая Бронная ул., 25С3 (47 ... - Фото 1
    Помещение свободного назначения в Москва Большая Бронная ул., 25С3 (47 ... - Фото 2
    863175 . Предлагаем помещение свободного назначения с арендатором THE KAS , расположенное на первом этаже 3-этажного административного здания. Без комиссии для покупателя.Преимущества объекта:-первая линия ул. Большая Бронная;-шаговая доступность от...
    • 1/3 эт.
    190 350 000 Р
    Агент
    +7 (938) Показать номер
    Посмотреть контакты
    Продается помещение 1238 м2 - Фото 1
    Продается помещение 1238 м2 - Фото 2
    Продается помещение 1238 м2 - Фото 3
    полезная площадь 1238м²

    Общая площадь МФК Крекшино составляет 11378 кв.м 25 мин по Минскому или Киевскому ш. (25 км от МКАД). В пешей 6 мин. доступности расположена станция Санино МЦД-4 (600 м). В непосредственной близости расположен ЖК «Медовая долина» - 3000 квартир. В 10...
    • 1 238 м²
    • 5/5 эт.
    198 080 000 Р
    Агент
    +7 (983) Показать номер
    Посмотреть контакты
    Помещение свободного назначения в Москва ул. Пречистенка, 27 (159 м) - Фото 1
    Помещение свободного назначения в Москва ул. Пречистенка, 27 (159 м) - Фото 2
    id:2306. В продаже премиальный СПА-комплекс в эксклюзивной локации.Помещение располагается в самом сердце района Хамовники на улице Пречистенка. Общая площадь 159.1 кв. м. Выполнен качественный дорогостоящий ремонт с использованием премиальных материалов....
    • -2/5 эт.
    200 000 000 Р
    Агент
    +7 (985) Показать номер
    Посмотреть контакты
    Помещение свободного назначения в Москва ул. Мневники, 7К1 (1228 м) - Фото 1
    Помещение свободного назначения в Москва ул. Мневники, 7К1 (1228 м) - Фото 2
    671264 . Предлагаем помещение свободного назначения формата street-retail с арендаторами Чижик , Мосцветторг и разные арендаторы для складских целей, площадью 1228 кв. м, расположенное в подвале и на первом этаже 14-этажного жилого дома. Без комиссии...
    • 1/14 эт.
    210 000 000 Р
    Агент
    +7 (938) Показать номер
    Посмотреть контакты
    Помещение свободного назначения в Москва пл. Киевского Вокзала, 1А ... - Фото 1
    Помещение свободного назначения в Москва пл. Киевского Вокзала, 1А ... - Фото 2
    762879 . Предлагаем помещение свободного назначения формата Street Retail с арендатором Party Hard , площадью 723 кв. м., расположенное в административном здании. 1-3 этажи и подвал. Без комиссии для покупателя.Преимущества объекта:-4 минуты пешком от...
    • 1/3 эт.
    198 000 000 Р
    Агент
    +7 (938) Показать номер
    Посмотреть контакты

    Не нашли подходящего объявления?

    Оставьте заявку, и наши риэлторы подберут псн в районе Москвы

    (0)