Россия, Москва, Большая Бронная ул., 25С3
189 540 000 Р 2 439 600 $ или 2 078 100

Информация об помещении

1
Этаж

Состояние и оснащение

Количество этажей
3
Развернуть
Агент
+7 (938) 656-74-88
Начать чат с агентом

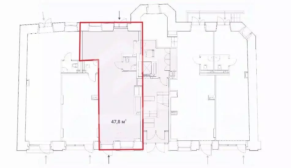
Помещение свободного назначения в Москва Большая Бронная ул., 25С3 (48 ...

863182 . Предлагаем помещение свободного назначения с арендатором сетевая кофейня AFROZODIAC , площадью 47.8 кв. м, расположенное на первом этаже 3-этажного административного здания. Без комиссии для покупателя.Преимущества объекта:-первая линия ул. Большая Бронная;-шаговая доступность от станции метро Пушкинская (2 минуты пешком);-удобная транспортная доступность: 1 км до Садового кольца, 2.3 км до Ленинградского проспекта, 4.3 км до Звенигородского шоссе, 4.9 км до ТТК;-плотный жилой массив;-развитая инфраструктура района;-высокий автомобильный и пешеходный трафик;-отлично просматривается, находится в легком доступе для потенциальных клиентов;-гибкая планировка, позволяющая адаптировать пространство под различные нужды;-все городские инженерные коммуникации;-санузел;-отдельный прибор учета электричества;-витринное остекление;-возможность размещения вывески;-ж/б перекрытия;-наземная парковка.Технические параметры объекта:-отдельный вход с фасада.-высота потолков: 3.6 м.Информация об арендаторе: -арендатор: сетевая кофейня AFROZODIAC .-прибыль:уб/мес.-окупаемость: 13.5 лет.-доходность: 7.41 Свяжитесь с нами для получения дополнительной информации

Читать полностью
    Позвонить Написать
    189 540 000 Р2 439 600 $ или 2 078 100
    Агент
    +7 (938) 656-74-88
    Начать чат с агентом
    Похожие предложения
    Помещение свободного назначения в Москва Большая Бронная ул., 25С3 (47 ... - Фото 1
    Помещение свободного назначения в Москва Большая Бронная ул., 25С3 (47 ... - Фото 2
    863175 . Предлагаем помещение свободного назначения с арендатором THE KAS , расположенное на первом этаже 3-этажного административного здания. Без комиссии для покупателя.Преимущества объекта:-первая линия ул. Большая Бронная;-шаговая доступность от...
    • 1/3 эт.
    190 350 000 Р
    Агент
    +7 (938) Показать номер
    Посмотреть контакты
    Продается помещение 1238 м2 - Фото 1
    Продается помещение 1238 м2 - Фото 2
    Продается помещение 1238 м2 - Фото 3
    полезная площадь 1238м²

    Общая площадь МФК Крекшино составляет 11378 кв.м 25 мин по Минскому или Киевскому ш. (25 км от МКАД). В пешей 6 мин. доступности расположена станция Санино МЦД-4 (600 м). В непосредственной близости расположен ЖК «Медовая долина» - 3000 квартир. В 10...
    • 1 238 м²
    • 5/5 эт.
    198 080 000 Р
    Агент
    +7 (983) Показать номер
    Посмотреть контакты
    Помещение свободного назначения в Москва ул. Земляной Вал, 23С1 (194 ... - Фото 1
    Помещение свободного назначения в Москва ул. Земляной Вал, 23С1 (194 ... - Фото 2
    Здание расположено в районе Басманный Центрального административного округа Москвы. Ближайшие станции метро Курская и Чкаловская находятся в пешей доступности от здания.Налоговая: 09. Лифты: Есть. Вентиляция: Естественная. Кондиционирование: Сплит-системы....
    • 1/9 эт.
    198 000 000 Р
    Агент
    +7 (933) Показать номер
    Посмотреть контакты
    Помещение свободного назначения в Москва Большая Бронная ул., 25С3 (47 ... - Фото 1
    Помещение свободного назначения в Москва Большая Бронная ул., 25С3 (47 ... - Фото 2
    Объект расположен в непосредственной близости от станций метро. Сверхинтенсивный пешеходный трафик. Развитая инфраструктура, крупный жилой и деловой район.Высокие потолки, большие окна, натуральные материалы отделки.Налоговая: 10. Лифты: Нет. Вентиляция:...
    • 1/3 эт.
    189 540 000 Р
    Агент
    +7 (933) Показать номер
    Посмотреть контакты
    Помещение свободного назначения в Москва Большая Бронная ул., 25С3 (46 ... - Фото 1
    Помещение свободного назначения в Москва Большая Бронная ул., 25С3 (46 ... - Фото 2
    Объект расположен в непосредственной близости от станций метро. Сверхинтенсивный пешеходный трафик. Развитая инфраструктура, крупный жилой и деловой район.Высокие потолки, большие окна, натуральные материалы отделки.Налоговая: 10. Лифты: Нет. Вентиляция:...
    • 1/3 эт.
    190 350 000 Р
    Агент
    +7 (933) Показать номер
    Посмотреть контакты

    Не нашли подходящего объявления?

    Оставьте заявку, и наши риэлторы подберут псн в районе Москвы

    (0)