Россия, Москва, бул. Скандинавский, 17
44 744 200 Р 564 100 $ или 481 800

Информация об помещении

1
Этаж

Состояние и оснащение

Количество этажей
16
Развернуть
Агент
+7 (986) 274-27-15
Начать чат с агентом

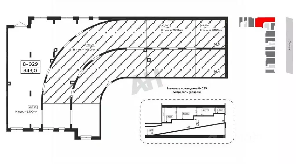
Помещение свободного назначения в Москва бул. Скандинавский, 17 (343 ...

Лот 442631 Предложение от Собственника Продажа помещения в новостройке площадью 343 м2. Предложение напрямую от застройщика Численность населения в ЖК Скандинавия - более 60 000 человек. Первая и вторая очереди проекта заселены в 2019 году. Комплекс находится на границе Бутовского лесопарка в экологически благоприятной юго-западной части Москвы — для тех, кто выбирает для себя и своей семьи комфорт мегаполиса, но жить предпочитает в окружении природы. Главная идея — баланс жилья и сервисов, транспортной доступности и комфортной удалённости от трасс, шумных зон для активных видов отдыха и уютных зелёных островков для созерцания и релаксации. Уже открыты пять детских садов и одна школа. Район Скандинавия находится в центре Новой Москвы и в 6,5 км от МКАД. Расстояние до ближайшей станции метро Коммунарка - 2 км, в 2023 году планируется открытие станции Новомосковская - всего в 700 м. В данном ЖК можно найти помещение свободного назначения под любой вид деятельности.Чтобы получить ПОДРОБНУЮ ПРЕЗЕНТАЦИЮ С ПЛАНИРОВКОЙ И ФОТОГРАФИЯМИ, звоните или отправьте свой email и номер телефона в сообщении на портале. Высылаем в течение 15 минут по запросу Конт. лицо: НОВОСТРОЙКИ, доб. 211, ЛОТ 442631

Читать полностью
    Позвонить Написать
    44 744 200 Р564 100 $ или 481 800
    Агент
    +7 (986) 274-27-15
    Начать чат с агентом
    Похожие предложения
    Помещение свободного назначения в Москва бул. Скандинавский, 5к1 (91 ... - Фото 1
    Помещение свободного назначения в Москва бул. Скандинавский, 5к1 (91 ... - Фото 2
    Арт.Продажа торгового помещения свободного назначения, площадью 91,1 кв.м. в ЖК Скандинавия , на первой линии Скандинавского бульвара.Помещение находится в густонаселенном жилом массиве с удобной транспортной доступностью и интенсивным пешеходным и автомобильным...
    • 1/16 эт.
    44 000 000 Р
    Агент
    +7 (915) Показать номер
    Посмотреть контакты
    Помещение свободного назначения в Москва Дзен-кварталы жилой комплекс ... - Фото 1
    Помещение свободного назначения в Москва Дзен-кварталы жилой комплекс ... - Фото 2
    1094568 . Предлагаем к приобретению помещение свободного назначения формата Street Retail, площадью 79,8 кв. м., расположенное на первом этаже жилого дома в ЖК комфорт-класса Дзен-кварталы . Корпус 5.2. Без комиссии для покупателя. Преимущества объекта:-ЖК...
    • 1/21 эт.
    44 873 136 Р
    Агент
    +7 (938) Показать номер
    Посмотреть контакты
    Продажа ПСН, м. Аэропорт, Ленинградский пр-кт. - Фото 1
    Продажа ПСН, м. Аэропорт, Ленинградский пр-кт. - Фото 2
    Продажа ПСН, м. Аэропорт, Ленинградский пр-кт. - Фото 3
    Продажа ПСН, м. Аэропорт, Ленинградский пр-кт. - Фото 4
    Продажа ПСН, м. Аэропорт, Ленинградский пр-кт. - Фото 5
    общая площадь 15.5м², полезная площадь 15.5м²

    Продажа помещения площадью 15,5 кв.м, на выходе из метро Аэропорт. Помещение свободного назначения расположено на 1-й фасадной линии Ленинградского пр-та. В непосредственной близости подземный пешеходный переход и остановка общественного транспорта. Сдано...
    • 15.5 м²
    • 1-й эт.
    46 000 000 Р
    Агент
    +7 (903) Показать номер
    Посмотреть контакты
    Продажа ПСН, Ленинский пр-кт. - Фото 1
    Продажа ПСН, Ленинский пр-кт. - Фото 2
    Продажа ПСН, Ленинский пр-кт. - Фото 3
    Продажа ПСН, Ленинский пр-кт. - Фото 4
    Продажа ПСН, Ленинский пр-кт. - Фото 5
    Продажа ПСН, Ленинский пр-кт. - Фото 6
    общая площадь 157м², полезная площадь 157м²

    Престижный район ЮЗАО, 5 минут пешком от ст. метро Тропарево. Продается нежилое помещение площадью 157 кв.м на первом этаже дома бизнес класса. Открытая планировка с сеткой колонн. Отдельный вход. Электрическая мощность 31 кВт. Идеально подойдет формат...
    • 157 м²
    • 1-й эт.
    46 000 000 Р
    Агент
    +7 (903) Показать номер
    Посмотреть контакты
    Прямая продажа от застройщика - Фото 1
    Прямая продажа от застройщика - Фото 2
    Прямая продажа от застройщика - Фото 3
    Прямая продажа от застройщика - Фото 4
    Прямая продажа от застройщика - Фото 5
    Прямая продажа от застройщика - Фото 6
    Прямая продажа от застройщика - Фото 7
    Прямая продажа от застройщика - Фото 8
    Прямая продажа от застройщика - Фото 9
    Прямая продажа от застройщика - Фото 10
    Прямая продажа от застройщика - Фото 11
    Прямая продажа от застройщика - Фото 12
    Прямая продажа от застройщика - Фото 13
    Прямая продажа от застройщика - Фото 14
    Прямая продажа от застройщика - Фото 15
    Прямая продажа от застройщика - Фото 16
    Прямая продажа от застройщика - Фото 17
    Прямая продажа от застройщика - Фото 18
    Прямая продажа от застройщика - Фото 19
    Прямая продажа от застройщика - Фото 20
    полезная площадь 109.3м²

    Предлагается в продажу торговое помещение, расположенное в ЖК «Режиссер»
    • 109.3 м²
    • 1/38 эт.
    45 016 008 Р
    Агент
    +7 (495) Показать номер
    Посмотреть контакты

    Не нашли подходящего объявления?

    Оставьте заявку, и наши риэлторы подберут псн в районе Москвы

    (0)