Россия, Москва, 3-й Павелецкий проезд, 3
96 600 000 Р 1 243 400 $ или 1 059 100

Информация об помещении

1
Этаж

Состояние и оснащение

Количество этажей
16
Развернуть
Агент
+7 (938) 656-74-88
Начать чат с агентом

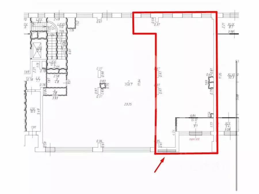
Помещение свободного назначения в Москва 3-й Павелецкий проезд, 3 (161 ...

997498 . Предлагаем помещение свободного назначения формата Street Retail с арендаторами Гастроном и ВкусВилл , площадью 161 кв. м., расположенное на первом этаже жилого дома в ЖК Резиденции композиторов. Без комиссии для покупателя. Преимущества объекта:-ЖК состоит из 10 корпусов переменной этажности (от 2 до 16 этажей);-23 минуты пешком от станции метро Тульская;-3.5 км до Подольского шоссе и Садового кольца;-плотный жилой массив;-сложившееся торговое окружение;-высокий автомобильный и пешеходный трафик;-объект отлично просматривается, находится в легком доступе для клиентов;-надежный арендатор;-открытая планировка;-витринное остекление;-место для вывески;-наземная парковка. Технические параметры объекта:-отдельный вход;-электрическая мощность: 30 кВт;-высота потолков: 4 м. Информация об арендаторах:-арендаторы: Гастроном и ВкусВилл ;-прибыль:/мес.;-окупаемость: 11,7 лет;-доходность: 8,58 . Свяжитесь с нами для получения дополнительной информации

Читать полностью
    Позвонить Написать
    96 600 000 Р1 243 400 $ или 1 059 100
    Агент
    +7 (938) 656-74-88
    Начать чат с агентом
    Похожие предложения
    Помещение свободного назначения в Москва ул. Фридриха Энгельса, 7-21 ... - Фото 1
    Помещение свободного назначения в Москва ул. Фридриха Энгельса, 7-21 ... - Фото 2
    ID: o98447Уважаемый Покупатель, предлагаем Вам приобрести помещение свободного назначения 107.2 м на 1 этаже в собственность на выгодных условиях.Интернет, телефония. Отдельный вход. В 3 минутах от м. БауманскаяБыстро реагируем на обращения, организуем...
    • 1/12 эт.
    96 000 000 Р
    Агент
    +7 (985) Показать номер
    Посмотреть контакты
    Помещение свободного назначения в Москва Керамический проезд, 57К2 ... - Фото 1
    Помещение свободного назначения в Москва Керамический проезд, 57К2 ... - Фото 2
    668761 . Предлагаем помещение свободного назначения формата Street Retail с якорным арендатором Пятёрочка, площадью 456 кв. м., расположенное на первом этаже и в подвале административного здания. Без комиссии для покупателя. Преимущества объекта:-5 минут...
    • 1/1 эт.
    96 000 000 Р
    Агент
    +7 (938) Показать номер
    Посмотреть контакты
    Помещение свободного назначения в Москва ул. Софьи Ковалевской, 6 (354 ... - Фото 1
    Помещение свободного назначения в Москва ул. Софьи Ковалевской, 6 (354 ... - Фото 2
    743998 . Предлагаем помещение свободного назначения формата Street Retail с арендатором Школа для детей и подростков U-First , площадью 354,3 кв. м., расположенное на первом этаже жилого дома. Без комиссии для покупателя.Преимущества объекта:-первая...
    • 1/9 эт.
    96 000 000 Р
    Агент
    +7 (938) Показать номер
    Посмотреть контакты
    Помещение свободного назначения в Москва Брянская ул., 12 (76 м) - Фото 1
    Помещение свободного назначения в Москва Брянская ул., 12 (76 м) - Фото 2
    Дом расположен в сложившимся деловом и жилом районе с высокой плотностью застройки и развитой инфраструктурой. Отличная пешая и транспортная доступность. Непосредственная близость от метро. Налоговая: 30. Лифты: Есть. Вентиляция: Приточно-вытяжная. Кондиционирование:...
    • 1/10 эт.
    96 600 000 Р
    Агент
    +7 (933) Показать номер
    Посмотреть контакты
    Помещение свободного назначения в Москва Большой Строченовский пер., 9 ... - Фото 1
    Помещение свободного назначения в Москва Большой Строченовский пер., 9 ... - Фото 2
    Показ в удобное время. С АГЕНТАМИ РАБОТАЕМ И ПЛАТИМ. Жилой комплекс расположен в Центральном административном округе в районе Замоскворечье в семи минутах пешком от метро Серпуховская.Налоговая: 05. Лифты: Есть. Вентиляция: Приточно-вытяжная. Кондиционирование:...
    • -1/14 эт.
    97 180 000 Р
    Агент
    +7 (933) Показать номер
    Посмотреть контакты

    Не нашли подходящего объявления?

    Оставьте заявку, и наши риэлторы подберут псн в районе Москвы

    (0)