60 000 000 Р 764 900 $ или 648 800

Информация об помещении

цоколь
Этаж

Состояние и оснащение

Количество этажей
9
Развернуть
Агент
+7 (938) 656-74-88
Начать чат с агентом

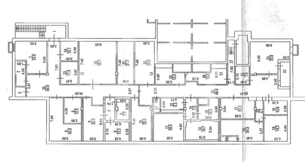
Помещение свободного назначения в Москва ул. Молостовых, 19К1 (650 м)

1075223 . Предлагаем помещение свободного назначения формата Street Retail с якорным арендатором супермаркет Чижик , площадью 650,2 кв. м., расположенное в цоколе жилого дома. Без комиссии для покупателя. Преимущества объекта:-первая линия ул. Молостовых;-12 минут пешком от станции метро Новогиреево;-густонаселённый жилой массив;-сложившееся торговое окружение;-активный автомобильный и пешеходный трафик;-объект отлично просматривается, находится в легком доступе для клиентов;-надежный сетевой арендатор;-открытая планировка;-место для вывески;-наземная парковка;-рядом остановки общественного транспорта. Технические параметры объекта:-2 входные группы;-электрическая мощность: 80 кВт;-высота потолков: 3 м. Информация об арендаторе:-арендатор: супермаркет Чижик (436 кв. м.), вакантная площадь (214.2 кв. м.);-прибыль:/мес.;-окупаемость: 9,1 лет;-доходность: 11 .Свяжитесь с нами для получения дополнительной информации

Читать полностью
    Позвонить Написать
    60 000 000 Р764 900 $ или 648 800
    Агент
    +7 (938) 656-74-88
    Начать чат с агентом
    Похожие предложения
    Продается помещения свободного назначения 553 м2 - Фото 1
    Продается помещения свободного назначения 553 м2 - Фото 2
    Продается помещения свободного назначения 553 м2 - Фото 3
    Продается помещения свободного назначения 553 м2 - Фото 4
    Продается помещения свободного назначения 553 м2 - Фото 5
    Продается помещения свободного назначения 553 м2 - Фото 6
    Продается помещения свободного назначения 553 м2 - Фото 7
    Продается помещения свободного назначения 553 м2 - Фото 8
    Продается помещения свободного назначения 553 м2 - Фото 9
    Продается помещения свободного назначения 553 м2 - Фото 10
    Продается помещения свободного назначения 553 м2 - Фото 11
    Продается помещения свободного назначения 553 м2 - Фото 12
    Продается помещения свободного назначения 553 м2 - Фото 13
    Продается помещения свободного назначения 553 м2 - Фото 14
    Продается помещения свободного назначения 553 м2 - Фото 15
    Продается помещения свободного назначения 553 м2 - Фото 16
    Продается помещения свободного назначения 553 м2 - Фото 17
    Продается помещения свободного назначения 553 м2 - Фото 18
    Продается помещения свободного назначения 553 м2 - Фото 19
    полезная площадь 553м²

    Полностью оснащенный офис, готовый к запуску, удобные и функциональные помещения для организации бизнеса. Качественный ремонт, мебель, кухня, современные санузлы и душевые. Отдельные входы, погрузка/выгрузка и большая парковка. Площадь помещений 553...
    • 553 м²
    • -1/5 эт.
    60 000 000 Р
    Агент
    +7 (994) Показать номер
    Посмотреть контакты
    Помещение свободного назначения в Москва Ленинградское ш., 8к2 (321 м) - Фото 1
    Помещение свободного назначения в Москва Ленинградское ш., 8к2 (321 м) - Фото 2
    Продается помещение свободного назначения общей площадью 320,7 мРасположение и преимущества:•Подвал жилого дома с входом с первой линии Ленинградского шоссе.•Всего 100 метров (2 минуты пешком) от выхода 7 станции метро Войковская, в прямой видимости.•Оживленный...
    • -1/8 эт.
    59 900 000 Р
    Агент
    +7 (985) Показать номер
    Посмотреть контакты
    Продажа ПСН, м. Кунцевская, ул. Екатерины Будановой - Фото 1
    Продажа ПСН, м. Кунцевская, ул. Екатерины Будановой - Фото 2
    Продажа ПСН, м. Кунцевская, ул. Екатерины Будановой - Фото 3
    Продажа ПСН, м. Кунцевская, ул. Екатерины Будановой - Фото 4
    Продажа ПСН, м. Кунцевская, ул. Екатерины Будановой - Фото 5
    Продажа ПСН, м. Кунцевская, ул. Екатерины Будановой - Фото 6
    Продажа ПСН, м. Кунцевская, ул. Екатерины Будановой - Фото 7
    Продажа ПСН, м. Кунцевская, ул. Екатерины Будановой - Фото 8
    Продажа ПСН, м. Кунцевская, ул. Екатерины Будановой - Фото 9
    Продажа ПСН, м. Кунцевская, ул. Екатерины Будановой - Фото 10
    Продажа ПСН, м. Кунцевская, ул. Екатерины Будановой - Фото 11
    Продажа ПСН, м. Кунцевская, ул. Екатерины Будановой - Фото 12
    Продажа ПСН, м. Кунцевская, ул. Екатерины Будановой - Фото 13
    общая площадь 450.5м², полезная площадь 450.5м²

    Продажа помещения свободного назначения в ЗАО, р-н Кунцево. Общая площадь помещения 450,5 м2. Помещение расположено на -1 этаже (подвал с окнами) жилого дома. В помещение ведет отдельный вход с улицы, планировка – кабинетная, полноценные окна! Проведены...
    • 450.5 м²
    • -1-й эт.
    60 000 000 Р
    Агент
    +7 (903) Показать номер
    Посмотреть контакты
    Продажа ПСН, м. Белорусская, ул. Грузинский Вал - Фото 1
    Продажа ПСН, м. Белорусская, ул. Грузинский Вал - Фото 2
    Продажа ПСН, м. Белорусская, ул. Грузинский Вал - Фото 3
    общая площадь 19.8м², полезная площадь 19.8м²

    Продажа помещения свободного назначения напротив выхода из метро и Белорусского вокзала, 10 метров до станции метро Белорусская. 1-я линия домов. Сверхинтенсивный пешеходный и автомобильный трафик, отличная транспортная доступность, сложившееся торговое...
    • 19.8 м²
    • 1-й эт.
    61 000 000 Р
    Агент
    +7 (903) Показать номер
    Посмотреть контакты
    Продажа ПСН, м. Крылатское, пос. Рублево Советская ул. - Фото 1
    Продажа ПСН, м. Крылатское, пос. Рублево Советская ул. - Фото 2
    Продажа ПСН, м. Крылатское, пос. Рублево Советская ул. - Фото 3
    Продажа ПСН, м. Крылатское, пос. Рублево Советская ул. - Фото 4
    Продажа ПСН, м. Крылатское, пос. Рублево Советская ул. - Фото 5
    Продажа ПСН, м. Крылатское, пос. Рублево Советская ул. - Фото 6
    Продажа ПСН, м. Крылатское, пос. Рублево Советская ул. - Фото 7
    Продажа ПСН, м. Крылатское, пос. Рублево Советская ул. - Фото 8
    Продажа ПСН, м. Крылатское, пос. Рублево Советская ул. - Фото 9
    Продажа ПСН, м. Крылатское, пос. Рублево Советская ул. - Фото 10
    Продажа ПСН, м. Крылатское, пос. Рублево Советская ул. - Фото 11
    Продажа ПСН, м. Крылатское, пос. Рублево Советская ул. - Фото 12
    Продажа ПСН, м. Крылатское, пос. Рублево Советская ул. - Фото 13
    общая площадь 1369.8м², полезная площадь 1369.8м²

    Поселок Рублево, ЗАО. Продажа ОСЗ (ветхое здание гостиницы с проектом реконструкции). На данный момент здание разобрано, оставлены ориентиры для границ нового здания. По проекту - общая площадь здания 1369,8 м2, состоит из 2-х этажей, кабинетная планировка,...
    • 1 369.8 м²
    • 1-й эт.
    60 000 000 Р
    Агент
    +7 (903) Показать номер
    Посмотреть контакты

    Не нашли подходящего объявления?

    Оставьте заявку, и наши риэлторы подберут псн в районе Москвы

    (0)