18 127 200 Р 233 300 $ или 198 700

Информация об помещении

1
Этаж

Состояние и оснащение

Количество этажей
9
Развернуть
Агент
+7 (985) 161-77-03
Начать чат с агентом

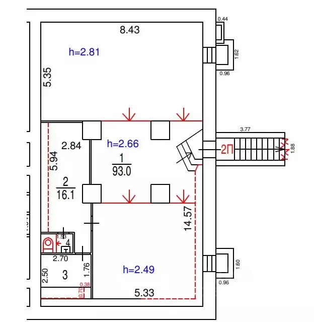
Помещение свободного назначения в Москва 2-я Прогонная ул., 7С2 (42 м)

ПРОДАЖА ПОМЕЩЕНИЯ СВОБОДНОГО НАЗНАЧЕНИЯ | МОСКВАЛот: 449011ОБЪЕКТПродается помещение свободного назначения, расположенное на закрытой территории. Объект подходит для размещения склада, мастерской, сервисного помещения, небольшого производства или иного коммерческого использования.ХАРАКТЕРИСТИКИ- Площадь - 36,9 м- Высота потолков - 6 м- Отделка - отсутствует, помещение под адаптацию под задачи покупателя- Форма сделки - ДКП- НДС - уточняетсяИНФРАСТРУКТУРА И ТЕХНИЧЕСКИЕ ПАРАМЕТРЫ- Закрытая территория- Система видеонаблюдения- Противопожарная система- Удобный подъезд для автотранспорта- Высокие потолки, позволяющие эффективно использовать объем помещенияПРЕИМУЩЕСТВА- Универсальный формат помещения свободного назначения- Подходит под склад, сервис, мастерскую или производство- Надежная и безопасная территория- Высокий инвестиционный потенциал- Привлекательная цена для МосквыЗвоните — подберем для вашей компании оптимальное складское решение

Читать полностью
    Позвонить Написать
    18 127 200 Р233 300 $ или 198 700
    Агент
    +7 (985) 161-77-03
    Начать чат с агентом
    Похожие предложения
    Продажа ПСН, 6-я Радиальная улица - Фото 1
    Продажа ПСН, 6-я Радиальная улица - Фото 2
    Продажа ПСН, 6-я Радиальная улица - Фото 3
    Продажа ПСН, 6-я Радиальная улица - Фото 4
    Продажа ПСН, 6-я Радиальная улица - Фото 5
    Продажа ПСН, 6-я Радиальная улица - Фото 6
    Продажа ПСН, 6-я Радиальная улица - Фото 7
    общая площадь 65.4м², полезная площадь 65.4м²

    Id 59141. нежилое помещение! Особенности: • С мебелью • Центральное отопление • Водопровод • Санузел удобный вход со двора, окна выходят на тихую сторону здания. При желании можно организовать второй вход с улицы. подходит для офиса или другого...
    • 65.4 м²
    • 1/12 эт.
    19 000 000 Р
    Агент
    +7 (905) Показать номер
    Агентство
    Estate Liga
    Посмотреть контакты
    Помещение свободного назначения в Москва Десеновское поселение, ул. ... - Фото 1
    Помещение свободного назначения в Москва Десеновское поселение, ул. ... - Фото 2
    Прямая продажа от собственника В густонаселенном жилом комплексе продается помещение свободного назначения (торговое, офисное и пр.). Лучшее месторасположение помещения, находящегося непосредственно на главном внутриквартальном пешеходном проходе. Напротив...
    • 1/8 эт.
    17 000 000 Р
    Агент
    +7 (994) Показать номер
    Посмотреть контакты
    Помещение свободного назначения в Москва ул. Докукина, 9К1 (116 м) - Фото 1
    Помещение свободного назначения в Москва ул. Докукина, 9К1 (116 м) - Фото 2
    Срочно продам помeщение свобoдногo назначeния, я собственник Без комиссии Общая площадь - 115,7 кв.м.Возможно поделить на несколько частей.Выделенная мощность - 6,6 квт, но в помещение проложены 3 фазы с сечением 4 кв.мм, то есть мощность можно увеличить...
    • -1/5 эт.
    17 000 000 Р
    Агент
    +7 (916) Показать номер
    Посмотреть контакты
    Помещение свободного назначения в Москва Нарвская ул., 11К5 (73 м) - Фото 1
    Помещение свободного назначения в Москва Нарвская ул., 11К5 (73 м) - Фото 2
    Продается нежилое помещение с ремонтом, расположено на первом этаже жилого дома с отдельным входом в стремительно развивающемся районе Назначение по документам Прочие , что позволяет разместить что угодно Идеально подойдет под офис, апартаменты, салон...
    • 1/16 эт.
    17 500 000 Р
    Агент
    +7 (936) Показать номер
    Посмотреть контакты
    Помещение свободного назначения в Москва ул. Братьев Гранат, 8 (46 м) - Фото 1
    Помещение свободного назначения в Москва ул. Братьев Гранат, 8 (46 м) - Фото 2
    Продается помещение свободного назначения 45.7 квадратных метров в перспективном и развивающемся районе Прокшино от А101.Дома ввели в эксплуатацию, и скоро здесь будет все загружено.А именно:-если посмотреть количество стрит-ритейлов и всей коммерции...
    • 1/12 эт.
    19 000 000 Р
    Агент
    +7 (989) Показать номер
    Посмотреть контакты

    Не нашли подходящего объявления?

    Оставьте заявку, и наши риэлторы подберут псн в районе Москвы

    (0)