72 215 000 Р 927 200 $ или 785 900

Информация об помещении

1
Этаж

Состояние и оснащение

Количество этажей
11
Развернуть
Агент
+7 (938) 656-74-88
Начать чат с агентом

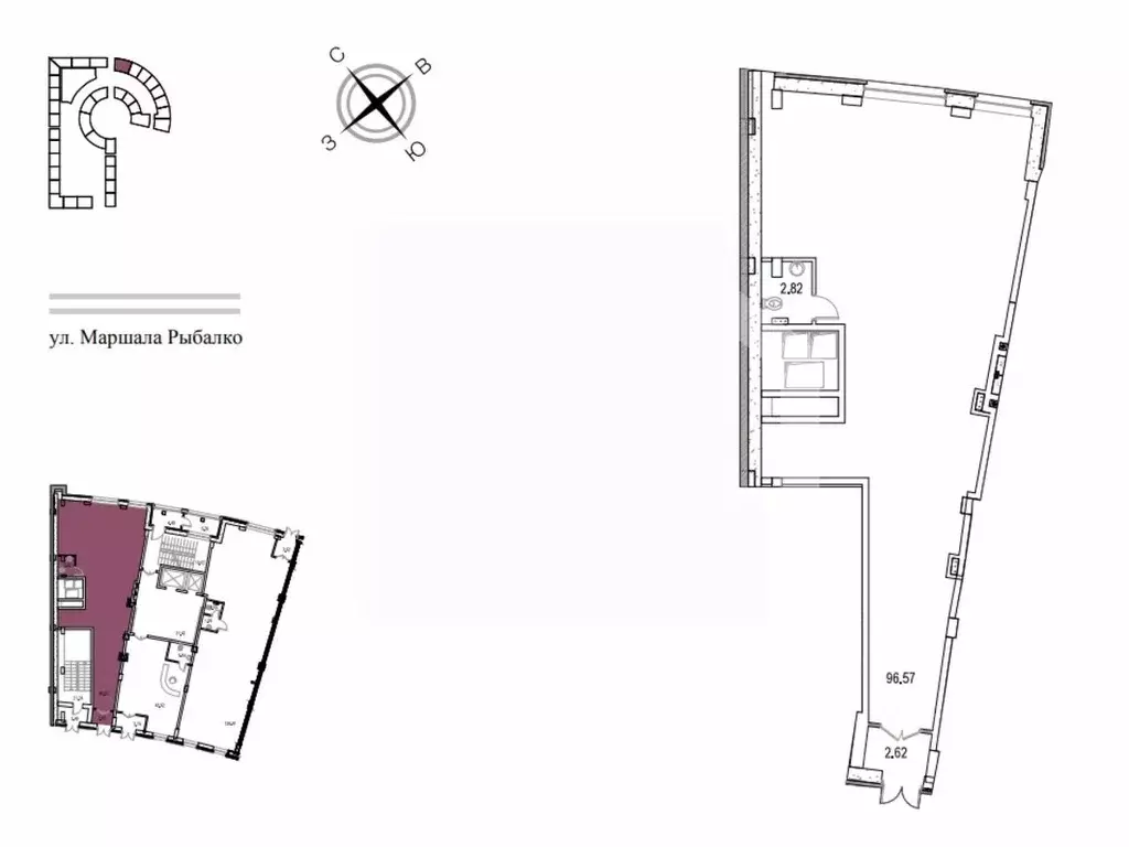
Помещение свободного назначения в Москва ул. Маршала Рыбалко, 2к9 (131 ...

664185 . Предлагаем помещение свободного назначения формата Street Retail с арендатором Гастропаб Крылья , площадью 131,3 кв. м., расположенное на первом этаже жилого дома в ЖК Маршал . Корпус 9. Без комиссии для покупателя.Преимущества объекта:-первая линия улицы Народного Ополчения;-ЖК состоит из корпусов переменной этажности (от 8 до 18 этажей);-200 метров от станции МЦК Панфиловская;-объект отлично просматривается, находится в легком доступе для клиентов;-развитая инфраструктура района;-надежный арендатор;-смешанная планировка;-витринное остекление;-место для вывески;-парковка на улице;-рядом остановка общественного транспорта.Технические параметры объекта:-отдельный вход;-высота потолков: 3 м.Информация об арендаторе:-арендатор: Гастропаб Крылья ;-прибыль:/мес.;-доходность: 5,99 .Свяжитесь с нами для получения дополнительной информации

Читать полностью
    Позвонить Написать
    72 215 000 Р927 200 $ или 785 900
    Агент
    +7 (938) 656-74-88
    Начать чат с агентом
    Похожие предложения
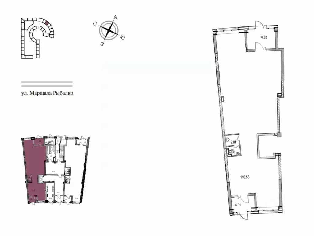
    Помещение свободного назначения в Москва ул. Маршала Рыбалко, 2к9 (124 ... - Фото 1
    Помещение свободного назначения в Москва ул. Маршала Рыбалко, 2к9 (124 ... - Фото 2
    664184 . Предлагаем помещение свободного назначения формата Street Retail с арендатором Кафе Oui, mon general , площадью 124,4 кв. м., расположенное на первом этаже жилого дома в ЖК Маршал . Корпус 9. Без комиссии для покупателя.Преимущества объекта:-ЖК...
    • 1/11 эт.
    71 841 000 Р
    Агент
    +7 (938) Показать номер
    Посмотреть контакты
    Продажа ПСН, м. Белорусская, ул. Грузинский Вал - Фото 1
    Продажа ПСН, м. Белорусская, ул. Грузинский Вал - Фото 2
    Продажа ПСН, м. Белорусская, ул. Грузинский Вал - Фото 3
    Продажа ПСН, м. Белорусская, ул. Грузинский Вал - Фото 4
    общая площадь 19.7м², полезная площадь 19.7м²

    Продажа помещения свободного назначения напротив выхода из метро и Белорусского вокзала, 10 метров до станции метро Белорусская. 1-я линия домов. Сверхинтенсивный пешеходный и автомобильный трафик, отличная транспортная доступность, сложившееся торговое...
    • 19.7 м²
    • 1-й эт.
    71 000 000 Р
    Агент
    +7 (903) Показать номер
    Посмотреть контакты
    Продажа ПСН, м. Калужская, Научный проезд - Фото 1
    Продажа ПСН, м. Калужская, Научный проезд - Фото 2
    Продажа ПСН, м. Калужская, Научный проезд - Фото 3
    Продажа ПСН, м. Калужская, Научный проезд - Фото 4
    Продажа ПСН, м. Калужская, Научный проезд - Фото 5
    Продажа ПСН, м. Калужская, Научный проезд - Фото 6
    Продажа ПСН, м. Калужская, Научный проезд - Фото 7
    Продажа ПСН, м. Калужская, Научный проезд - Фото 8
    Продажа ПСН, м. Калужская, Научный проезд - Фото 9
    Продажа ПСН, м. Калужская, Научный проезд - Фото 10
    Продажа ПСН, м. Калужская, Научный проезд - Фото 11
    общая площадь 235м², полезная площадь 235м²

    От собственника. Продажа ПСН с отдельным входом на 2-й этаж. Помещение расположено в БЦ «Научный, 17», класс А, в 10 минутах пешком от станции метро Калужская, в районе Черемушки, ЮЗАО. Площадь помещения 235 м2. Помещение расположено на 2-м этаже, куда...
    • 235 м²
    • 2-й эт.
    72 850 000 Р
    Агент
    +7 (903) Показать номер
    Посмотреть контакты
    Помещение свободного назначения в Москва ул. Красная Пресня, 7 (95 м) - Фото 1
    Помещение свободного назначения в Москва ул. Красная Пресня, 7 (95 м) - Фото 2
    Лот 997153 Предложение от Собственника Предлагается офисное помещение 94,5 м в доме бизнес-класса Красная Пресня 7 , расположенном в престижном Пресненском районе. Объект находится в 3 минутах пешком от метро Баррикадная и в непосредственной близости...
    • 1/9 эт.
    73 000 000 Р
    Агент
    +7 (986) Показать номер
    Посмотреть контакты
    Помещение свободного назначения в Москва Тверская ул., 12С2 (183 м) - Фото 1
    Помещение свободного назначения в Москва Тверская ул., 12С2 (183 м) - Фото 2
    Данные получены с сайта ГИС Торги.Продажа имущества, находящегося в собственности города Москвы, нежилое помещение по адресу: г. Москва, ул. Тверская, д. 12, стр. 2, общей площадью 183,1 кв. м, кадастровый номер: 77:01:0001044:3226
    • 5 этажей
    71 805 000 Р
    Агент
    +7 (933) Показать номер
    Посмотреть контакты

    Не нашли подходящего объявления?

    Оставьте заявку, и наши риэлторы подберут псн в районе Москвы

    (0)