Россия, Москва, ул. Крузенштерна, 10к1
28 000 000 Р 360 400 $ или 307 000

Информация об помещении

1
Этаж

Состояние и оснащение

Количество этажей
1
Развернуть
Агент
+7 (985) 515-74-74
Начать чат с агентом

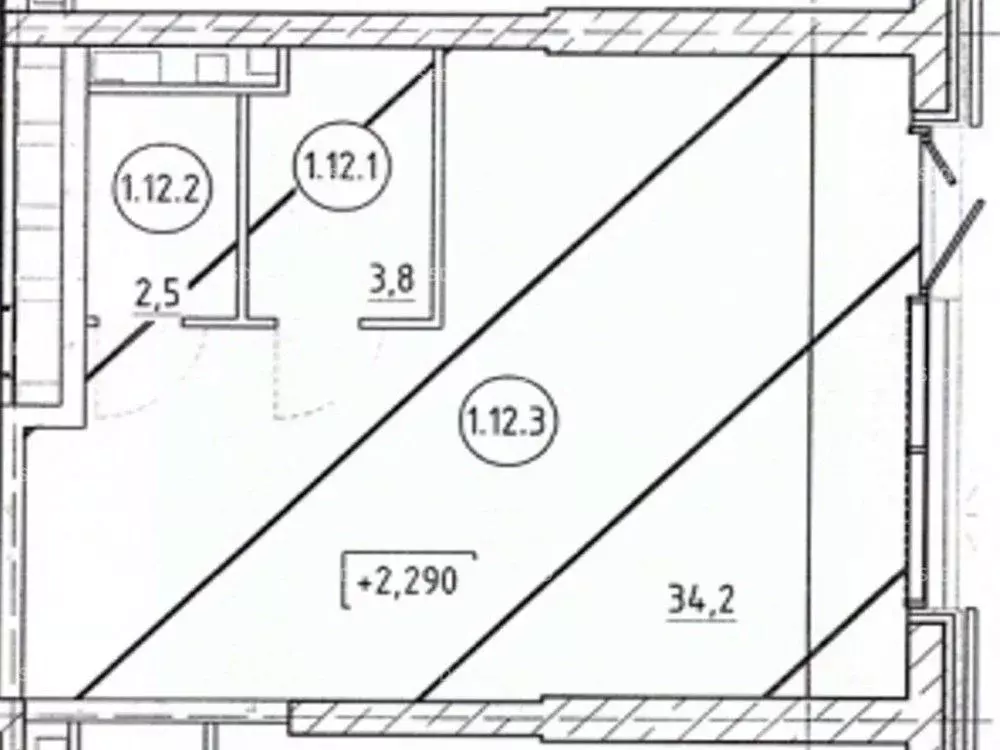
Помещение свободного назначения в Москва ул. Крузенштерна, 10к1 (41 м)

Лот 152857.Продажа помещения свободного назначения в ЖК Бизнес-класса Символ , по адресу: Москва, ул. Крузенштерна, 10к1, площадью 40,5 м2. ЮВАО, район Лефортово. Объект на первой линии в жилом микрорайоне, в 13 минутах ходьбы от метро Площадь Ильича и метро Авиамотороная. Жилой квартал Символ - новый градообразующий квартал рассчитанный на 19 000 жителей. Арендатор Ozon на краткосрочном договоре 30 дней, есть возможность расторженияТехнические характеристики:Первый этаж 22-ух этажного жилого дома, площадью м2. Угловое помещение. Отдельный вход. Зальная планировка, витринные окна, высота потолков: 4,75 м. Выделенная мощность: 10 кВт.Коммерческие условия:Стоимость объекта:.Стоимость объекта за м2:убля.

Читать полностью
    Позвонить Написать
    28 000 000 Р360 400 $ или 307 000
    Агент
    +7 (985) 515-74-74
    Начать чат с агентом
    Похожие предложения
    Помещение свободного назначения в Москва ул. Крузенштерна, 10к1 (40 м) - Фото 1
    Помещение свободного назначения в Москва ул. Крузенштерна, 10к1 (40 м) - Фото 2
    БЕЗ КОМИССИИ Элитный жилой дом. Продаётся комната на первом этаже площадью 40 кв.м с отдельным входом с улицы. Стандартная отделка. Электрическая мощность 15 кВт.УСН. Улица Крузенштерна, 10к1, 10 минут пешком от метро Авиамоторная. ЛОТ 222547
    • 1/27 эт.
    28 000 000 Р
    Агент
    +7 (915) Показать номер
    Посмотреть контакты
    Помещение свободного назначения в Москва ул. Крузенштерна, 10к1 (41 м) - Фото 1
    Помещение свободного назначения в Москва ул. Крузенштерна, 10к1 (41 м) - Фото 2
    934961 . Предлагаем помещение свободного назначения формата Street Retail, площадью 40,5 кв. м., расположенное на первом этаже жилого дома в ЖК бизнес-класса Символ . Без комиссии для покупателя. Преимущества объекта:-ЖК состоит из 6 кварталов, дома...
    • 1/27 эт.
    28 000 000 Р
    Агент
    +7 (938) Показать номер
    Посмотреть контакты
    Помещение свободного назначения в Москва ул. Крузенштерна, 4 (40 м) - Фото 1
    Помещение свободного назначения в Москва ул. Крузенштерна, 4 (40 м) - Фото 2
    ВАЖНО: БЕЗ КОММИССИ ДЛЯ АРЕНДАТОРОВ, ПРЯМАЯ ПРОДАЖА ОТ СОБСТВЕННИКАЖилой комплекс B+ класса Символ расположен по адресу Москва, ЮВАО, район Лефортово, , в пешей доступности от метро Площадь Ильича (8 мин), метро Римская (9 мин).Характеристики здания:...
    • 1/22 эт.
    27 654 320 Р
    Агент
    +7 (916) Показать номер
    Посмотреть контакты
    ПРОДАЕТСЯ КОММЕРЧЕСКОЕ ПОМЕЩЕНИЕ 53.1 КВ.М. С АРЕНДАТОРОМ - Фото 1
    ПРОДАЕТСЯ КОММЕРЧЕСКОЕ ПОМЕЩЕНИЕ 53.1 КВ.М. С АРЕНДАТОРОМ - Фото 2
    ПРОДАЕТСЯ КОММЕРЧЕСКОЕ ПОМЕЩЕНИЕ 53.1 КВ.М. С АРЕНДАТОРОМ - Фото 3
    ПРОДАЕТСЯ КОММЕРЧЕСКОЕ ПОМЕЩЕНИЕ 53.1 КВ.М. С АРЕНДАТОРОМ - Фото 4
    ПРОДАЕТСЯ КОММЕРЧЕСКОЕ ПОМЕЩЕНИЕ 53.1 КВ.М. С АРЕНДАТОРОМ - Фото 5
    ПРОДАЕТСЯ КОММЕРЧЕСКОЕ ПОМЕЩЕНИЕ 53.1 КВ.М. С АРЕНДАТОРОМ - Фото 6
    ПРОДАЕТСЯ КОММЕРЧЕСКОЕ ПОМЕЩЕНИЕ 53.1 КВ.М. С АРЕНДАТОРОМ - Фото 7
    ПРОДАЕТСЯ КОММЕРЧЕСКОЕ ПОМЕЩЕНИЕ 53.1 КВ.М. С АРЕНДАТОРОМ - Фото 8
    ПРОДАЕТСЯ КОММЕРЧЕСКОЕ ПОМЕЩЕНИЕ 53.1 КВ.М. С АРЕНДАТОРОМ - Фото 9
    ПРОДАЕТСЯ КОММЕРЧЕСКОЕ ПОМЕЩЕНИЕ 53.1 КВ.М. С АРЕНДАТОРОМ - Фото 10
    ПРОДАЕТСЯ КОММЕРЧЕСКОЕ ПОМЕЩЕНИЕ 53.1 КВ.М. С АРЕНДАТОРОМ - Фото 11
    ПРОДАЕТСЯ КОММЕРЧЕСКОЕ ПОМЕЩЕНИЕ 53.1 КВ.М. С АРЕНДАТОРОМ - Фото 12
    ПРОДАЕТСЯ КОММЕРЧЕСКОЕ ПОМЕЩЕНИЕ 53.1 КВ.М. С АРЕНДАТОРОМ - Фото 13
    полезная площадь 53.1м²

    ПРОДАЕТСЯ КОММЕРЧЕСКОЕ ПОМЕЩЕНИЕ 53.1 М С АРЕНДАТОРОМ Москва, Лётная ул., д. 95Бк2. Высокие потолки 5.5 м | Панорамное остекление | Готовая аренда 130 000 /мес | 8 мин до метро! ИДЕАЛЬНОЕ МЕСТО ДЛЯ БИЗНЕСА В ПЕРСПЕКТИВНОМ РАЙОНЕ Преимущества...
    • 53.1 м²
    • 1/26 эт.
    27 000 000 Р
    PRO
    +7 (929) Показать номер
    Посмотреть контакты
    Помещение свободного назначения в Москва Старокачаловская ул., 10 (114 ... - Фото 1
    Помещение свободного назначения в Москва Старокачаловская ул., 10 (114 ... - Фото 2
    Арт.Продаётся двухэтажное помещение свободного назначения в престижном доме обжитого кварталаПредлагаем к приобретению функциональное помещение общей площадью 114 м, с отдельным входом. Объект идеально подходит для организации офисного пространства, но...
    • 1/9 эт.
    28 500 000 Р
    Агент
    +7 (916) Показать номер
    Посмотреть контакты

    Не нашли подходящего объявления?

    Оставьте заявку, и наши риэлторы подберут псн в районе Москвы

    (0)