320 000 000 Р 4 108 700 $ или 3 482 400

Информация об помещении

1
Этаж

Состояние и оснащение

Количество этажей
1
Развернуть
Агент
+7 (933) 786-94-18
Начать чат с агентом

Помещение свободного назначения в Москва Мясницкая ул., 24/7С8 (199 м)

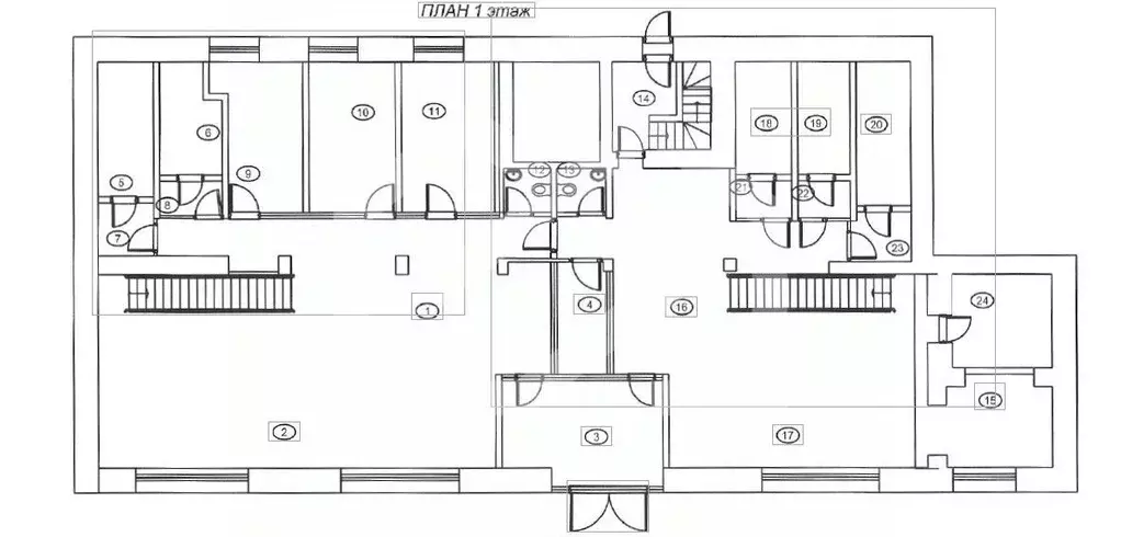
Готовый арендный бизнес (ГАБ). Доходность 4 , окупаемость до 22.97 лет.Отдельно стоящее административное здание. В шаговой доступности от трех станций метро. Высокий пешеходный и автомобильный трафик. Налоговая: 01. Лифты: Нет. Вентиляция: Естественная. Кондиционирование: Нет. Безопасность: Круглосуточный доступ, Система пожаротушений. Парковка: Наземная. Описание помещения: Здание состоит из 1 этажа - 119 м2 и антресоли - 80,4 м2.Электрическая мощность - 90 кВт.Планировка: открытая. Типовой ремонт. Высота потолка: 3.2м. Тип налогообложения: УСН. Лот

Читать полностью
    Позвонить Написать
    320 000 000 Р4 108 700 $ или 3 482 400
    Агент
    +7 (933) 786-94-18
    Начать чат с агентом
    Похожие предложения
    Помещение свободного назначения в Москва ул. 1905 года, 4 (662 м) - Фото 1
    Помещение свободного назначения в Москва ул. 1905 года, 4 (662 м) - Фото 2
    850041 . Предлагаем помещение свободного назначения формата street-retail с арендатором Совкомбанк , площадью 661.7 кв. м, расположенное на первом этаже 8-этажного жилого дома. Без комиссии для покупателя.Преимущества объекта:-первая линия Ул. 1905 года;-в...
    • 1/8 эт.
    320 000 000 Р
    Агент
    +7 (938) Показать номер
    Посмотреть контакты
    Помещение свободного назначения в Москва ул. Паперника, 7К2 (980 м) - Фото 1
    Помещение свободного назначения в Москва ул. Паперника, 7К2 (980 м) - Фото 2
    883342 . Предлагаем помещение свободного назначения во встроенно-пристроенной части жилого дома с якорными арендаторами Магнит, Ozon, Шаурма, площадью 980 кв. м, расположенное на первом этаже 12-этажного жилого дома. Без комиссии для покупателя.Преимущества...
    • 1/12 эт.
    320 000 000 Р
    Агент
    +7 (938) Показать номер
    Посмотреть контакты
    Прямая продажа от застройщика - Фото 1
    Прямая продажа от застройщика - Фото 2
    Прямая продажа от застройщика - Фото 3
    Прямая продажа от застройщика - Фото 4
    Прямая продажа от застройщика - Фото 5
    Прямая продажа от застройщика - Фото 6
    Прямая продажа от застройщика - Фото 7
    Прямая продажа от застройщика - Фото 8
    Прямая продажа от застройщика - Фото 9
    Прямая продажа от застройщика - Фото 10
    Прямая продажа от застройщика - Фото 11
    Прямая продажа от застройщика - Фото 12
    Прямая продажа от застройщика - Фото 13
    Прямая продажа от застройщика - Фото 14
    Прямая продажа от застройщика - Фото 15
    Прямая продажа от застройщика - Фото 16
    Прямая продажа от застройщика - Фото 17
    Прямая продажа от застройщика - Фото 18
    Прямая продажа от застройщика - Фото 19
    Прямая продажа от застройщика - Фото 20
    полезная площадь 873.6м²

    Предлагается в продажу помещение свободного назначения, расположенное в ЖК {{building-name}}, площадью {{area-value}}. Располагается на {{floor}}-м этаже {{floors}}-этажного корпуса. Помещение идеально подойдет для магазина, кафе, офиса или другого бизнеса...
    • 873.6 м²
    • 1/22 эт.
    323 282 000 Р
    Агент
    +7 (495) Показать номер
    Посмотреть контакты
    Продается помещение 1868 м2 - Фото 1
    Продается помещение 1868 м2 - Фото 2
    Продается помещение 1868 м2 - Фото 3
    полезная площадь 1868м²

    Общая площадь МФК Крекшино составляет 11378 кв.м 25 мин по Минскому или Киевскому ш. (25 км от МКАД). В пешей 6 мин. доступности расположена станция Санино МЦД-4 (600 м). В непосредственной близости расположен ЖК «Медовая долина» - 3000 квартир. В 10...
    • 1 868 м²
    • 2/5 эт.
    317 560 000 Р
    Агент
    +7 (983) Показать номер
    Посмотреть контакты
    Продается ПСН 1610.3 м2 - Фото 1
    Продается ПСН 1610.3 м2 - Фото 2
    Продается ПСН 1610.3 м2 - Фото 3
    Продается ПСН 1610.3 м2 - Фото 4
    Продается ПСН 1610.3 м2 - Фото 5
    Продается ПСН 1610.3 м2 - Фото 6
    Продается ПСН 1610.3 м2 - Фото 7
    Продается ПСН 1610.3 м2 - Фото 8
    Продается ПСН 1610.3 м2 - Фото 9
    Продается ПСН 1610.3 м2 - Фото 10
    Продается ПСН 1610.3 м2 - Фото 11
    Продается ПСН 1610.3 м2 - Фото 12
    Продается ПСН 1610.3 м2 - Фото 13
    Продается ПСН 1610.3 м2 - Фото 14
    Продается ПСН 1610.3 м2 - Фото 15
    Продается ПСН 1610.3 м2 - Фото 16
    Продается ПСН 1610.3 м2 - Фото 17
    Продается ПСН 1610.3 м2 - Фото 18
    Продается ПСН 1610.3 м2 - Фото 19
    Продается ПСН 1610.3 м2 - Фото 20
    полезная площадь 1610.3м²

    Продаётся коммерческое помещение площадью 1610,3 м2 на 1-м и 2-м этажах 15-этажного жилого дома в ЖК «Москвичка». Основные преимущества: - отдельный вход; - место под вывеску; - круглосуточный доступ; - помещение с отделкой, что позволяет сэкономить...
    • 1 610.3 м²
    • 1/17 эт.
    321 700 000 Р
    Агент
    +7 (495) Показать номер
    Посмотреть контакты

    Не нашли подходящего объявления?

    Оставьте заявку, и наши риэлторы подберут псн в районе Москвы

    (0)