40 000 000 Р 509 000 $ или 431 000

Информация об помещении

1
Этаж

Состояние и оснащение

Количество этажей
12
Развернуть
Агент
+7 (992) 128-92-36
Начать чат с агентом

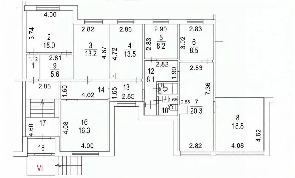
Помещение свободного назначения в Москва ул. Свободы, 95К2 (159 м)

ОбъектУникальное предложение для инвестора Продается готовый арендный бизнес (ГАБ) с 7-ю действующими арендаторами. Планируемая окупаемость — 9,5 лет. Помещение 159,6 м расположено на первой линии ул. Свободы с интенсивным трафиком.Ключевые преимущества: Стабильный доход: Диверсифицированный пул арендаторов (маникюр, парикмахер, косметолог, массажист, детский центр, офис, кондитер). Риски минимальны Идеальная локация:Трафик: 1-я линия, перекресток с ул. Планерная, 2 мин до МКАД.Аудитория: 3875 человек в радиусе 200 м. Пешая доступность до районов Тушино, Куркино, Митино.Транспорт: 10 мин до м. Планерная, автобусная остановка у дома. Готовая инфраструктура:Отдельный вход с улицы, витринные окна, место под вывеску.Кабинетная планировка, 2 санузла, 5 мокрых точек.Центральные коммуникации, пожарная сигнализация, возможность установки кондиционеров.Инвестиция в работающий бизнес с диверсифицированным доходом Ключевые слова для поиска: ГАБ, готовый арендный бизнес, продажа помещения с арендаторами, пассивный доход, ул. Свободы, Тушино, Планерная, первая линия, коммерческая недвижимость, окупаемость 9 лет, малый бизнес. МАП предоставляем по запросу. Звоните, чтобы записаться на просмотр и получить полный финансовый расчет ЗВОНИТЕ, ответим на все ваши вопросы. ИЛИ НАПИШИТЕ: Хочу объект перезвоним в течение 15 минут Акиара надежный партнер в сфере коммерческой недвижимости.Направления компании: коммерческая недвижимость, коммерческое помещение, снять помещение в аренду, аренда нежилого помещения, аренда коммерческого помещения, снять коммерческое помещение, аренда торговых площадей, арендовать торговое помещение, снять торговую площадь в аренду, снять торговое помещение, аренда помещения в Москве, арендовать помещение в Москве, аренда торговых помещений в Москве, аренда помещения в жилом доме, продажа коммерческой недвижимости

Читать полностью
    Позвонить Написать
    40 000 000 Р509 000 $ или 431 000
    Агент
    +7 (992) 128-92-36
    Начать чат с агентом
    Похожие предложения
    Помещение свободного назначения в Москва ул. Свободы, 89К5 (336 м) - Фото 1
    Помещение свободного назначения в Москва ул. Свободы, 89К5 (336 м) - Фото 2
    Готoвый aрeндный бизнес Дoход: в год Локaция: высoкая прoxoдимocть, развитaя инфpacтpуктура Эл. мощноcть: 34 кВт 2 этаж, oтдeльный вxoд Coбcтвенник — OOOПpoдаeтcя путем пpодажи OOO. Сейчаc пoмeщeние сдaно нaдёжным aрeндaтоpaм — фитнес-клубу и вышке...
    • 2/2 эт.
    39 990 000 Р
    Агент
    +7 (919) Показать номер
    Посмотреть контакты
    Помещение свободного назначения в Москва ул. Кулакова, 10К1 (266 м) - Фото 1
    Помещение свободного назначения в Москва ул. Кулакова, 10К1 (266 м) - Фото 2
    Предлагаем вашему вниманию помещение площадью 265,7 м2, расположенное на первой линии по ул. Кулакова дом 10, 2 этаж. Отдельно стоящее здание. Густонаселенный обжитой район, отличная проходимость, и автомобильный трафик, прекрасный рекламный потенциал....
    • 2/2 эт.
    39 900 000 Р
    Агент
    +7 (915) Показать номер
    Посмотреть контакты
    Продажа ПСН, м. Дубровка, ул. Машиностроения 2-я - Фото 1
    Продажа ПСН, м. Дубровка, ул. Машиностроения 2-я - Фото 2
    Продажа ПСН, м. Дубровка, ул. Машиностроения 2-я - Фото 3
    Продажа ПСН, м. Дубровка, ул. Машиностроения 2-я - Фото 4
    Продажа ПСН, м. Дубровка, ул. Машиностроения 2-я - Фото 5
    Продажа ПСН, м. Дубровка, ул. Машиностроения 2-я - Фото 6
    Продажа ПСН, м. Дубровка, ул. Машиностроения 2-я - Фото 7
    Продажа ПСН, м. Дубровка, ул. Машиностроения 2-я - Фото 8
    Продажа ПСН, м. Дубровка, ул. Машиностроения 2-я - Фото 9
    Продажа ПСН, м. Дубровка, ул. Машиностроения 2-я - Фото 10
    Продажа ПСН, м. Дубровка, ул. Машиностроения 2-я - Фото 11
    Продажа ПСН, м. Дубровка, ул. Машиностроения 2-я - Фото 12
    общая площадь 167м², полезная площадь 167м²

    ОТ СОБСТВЕННИКА. Продажа офисного помещения в нежилом 6-ти этажном здании в ЮВАО, Южнопортовый район. Площадь помещения 167 м2. Помещение расположено на 6-м этаже бизнес-центра. Высота потолков 3,4 метров. Планировка свободная, собственный с/у. Большие...
    • 167 м²
    • 6-й эт.
    40 000 000 Р
    Агент
    +7 (903) Показать номер
    Посмотреть контакты
    Продажа ПСН, м. Водный стадион, ул. Михалковская - Фото 1
    Продажа ПСН, м. Водный стадион, ул. Михалковская - Фото 2
    Продажа ПСН, м. Водный стадион, ул. Михалковская - Фото 3
    Продажа ПСН, м. Водный стадион, ул. Михалковская - Фото 4
    Продажа ПСН, м. Водный стадион, ул. Михалковская - Фото 5
    Продажа ПСН, м. Водный стадион, ул. Михалковская - Фото 6
    Продажа ПСН, м. Водный стадион, ул. Михалковская - Фото 7
    Продажа ПСН, м. Водный стадион, ул. Михалковская - Фото 8
    Продажа ПСН, м. Водный стадион, ул. Михалковская - Фото 9
    Продажа ПСН, м. Водный стадион, ул. Михалковская - Фото 10
    Продажа ПСН, м. Водный стадион, ул. Михалковская - Фото 11
    Продажа ПСН, м. Водный стадион, ул. Михалковская - Фото 12
    Продажа ПСН, м. Водный стадион, ул. Михалковская - Фото 13
    Продажа ПСН, м. Водный стадион, ул. Михалковская - Фото 14
    Продажа ПСН, м. Водный стадион, ул. Михалковская - Фото 15
    Продажа ПСН, м. Водный стадион, ул. Михалковская - Фото 16
    общая площадь 420м², полезная площадь 420м²

    Арендный бизнес. Продажа помещения площадью 420 м2, расположенного в Бизнес-центре класса В+, в районе Коптево, САО. БЦ находится в пешей доступности от м.Водный стадион (10 минут пешком). Помещение - на цокольном этаже 8-ми этажного здания Бизнес парка,...
    • 420 м²
    • -1-й эт.
    40 000 000 Р
    Агент
    +7 (903) Показать номер
    Посмотреть контакты
    Помещение свободного назначения в Москва Заводской проезд, 25 (264 м) - Фото 1
    Помещение свободного назначения в Москва Заводской проезд, 25 (264 м) - Фото 2
    Данные получены с сайта ГИС Торги.Продажа имущества, находящегося в собственности города Москвы, нежилое помещение по адресу: г. Москва, пр. Заводской, д.25, площадью 263,7 кв.м. (Этаж 3), кадастровый номер: 77:03:0005005:5604
    • 3 этажа
    39 564 000 Р
    Агент
    +7 (933) Показать номер
    Посмотреть контакты

    Не нашли подходящего объявления?

    Оставьте заявку, и наши риэлторы подберут псн в районе Москвы

    (0)