Россия, Москва, БК Прокшино тер., 3
26 549 076 Р 337 200 $ или 291 700

Информация об помещении

5
Этаж

Состояние и оснащение

Количество этажей
12
Развернуть
Агент
+7 (986) 274-27-15
Начать чат с агентом

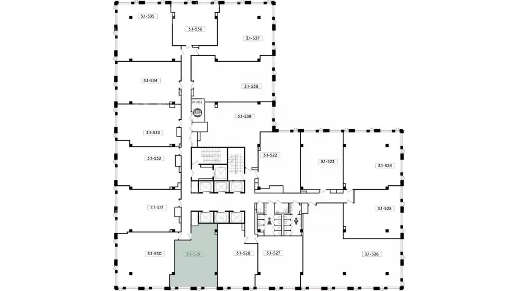
Помещение свободного назначения в Москва БК Прокшино тер., 3 (96 м)

Лот 989854 Предложение от Собственника Делимся комиссией с коллегами Продажа помещения в новостройке площадью 95,6 м2.БИЗНЕС-КВАРТАЛ ПРОКШИНО - Гарантированные стандарты строительства независимая международная сертификация LEED- Высокий уровень энергоэффективности и комфорта- Торговый центр нового формата- Панорамный ресторан с открытой террасой- Лобби с постаматами 4 тыс. м2- Высокотехнологичные лифты KONE- 325 мест в паркинге с сервисной зоной- 7,5 га благоустроенной территории с набережнойПРЕМИАЛЬНЫЕ ОФИСЫ- Питьевой водопровод в каждом офисе- Вся инженерия для офисной кухни- Панорамные окна с функцией проветривания- Очистка и увлажнение воздуха, контроль СО2- Кондиционирование круглый год- Переговорные комнаты на этажах- Единая цифровая среда- Офисы без отделки с возможностью отделки от застройщикаРАСПОЛОЖЕНИЕ И ТРАНСПОРТНАЯ ДОСТУПНОСТЬ- 1 мин. от ст. метро Прокшино - Прямой крытый переход из метро- 15 мин. до аэропорта Внуково Чтобы получить ПОДРОБНУЮ ПРЕЗЕНТАЦИЮ С ПЛАНИРОВКОЙ И ФОТОГРАФИЯМИ, звоните или отправьте свой email и номер телефона в сообщении на портале. Высылаем в течение 15 минут по запросу Уважаемые коллеги, мы работаем по этому объекту с посредниками и делимся комиссией в соответствии с нашей партнерской программой Конт. лицо: НОВОСТРОЙКИ, доб. 211, ЛОТ 989854

Читать полностью
    Позвонить Написать
    26 549 076 Р337 200 $ или 291 700
    Агент
    +7 (986) 274-27-15
    Начать чат с агентом
    Похожие предложения
    Помещение свободного назначения в Москва БК Прокшино тер., 3 (101 м) - Фото 1
    Помещение свободного назначения в Москва БК Прокшино тер., 3 (101 м) - Фото 2
    Лот 989853 Предложение от Собственника Делимся комиссией с коллегами Продажа нежилого помещения площадью 100,7 м2. БИЗНЕС-КВАРТАЛ ПРОКШИНО - Гарантированные стандарты строительства независимая международная сертификация LEED- Высокий уровень энергоэффективности...
    • 5/12 эт.
    26 495 177 Р
    Агент
    +7 (986) Показать номер
    Посмотреть контакты
    Помещение свободного назначения в Москва БК Прокшино тер., 3 (98 м) - Фото 1
    Помещение свободного назначения в Москва БК Прокшино тер., 3 (98 м) - Фото 2
    Лот 989855 Предложение от Собственника Делимся комиссией с коллегами Продажа помещения в новостройке площадью 98,3 м2. БИЗНЕС-КВАРТАЛ ПРОКШИНО - Гарантированные стандарты строительства независимая международная сертификация LEED- Высокий уровень энергоэффективности...
    • 5/12 эт.
    27 225 168 Р
    Агент
    +7 (986) Показать номер
    Посмотреть контакты
    Продажа ПСН, м. Октябрьская, ул. Якиманка Б. - Фото 1
    Продажа ПСН, м. Октябрьская, ул. Якиманка Б. - Фото 2
    Продажа ПСН, м. Октябрьская, ул. Якиманка Б. - Фото 3
    Продажа ПСН, м. Октябрьская, ул. Якиманка Б. - Фото 4
    Продажа ПСН, м. Октябрьская, ул. Якиманка Б. - Фото 5
    Продажа ПСН, м. Октябрьская, ул. Якиманка Б. - Фото 6
    Продажа ПСН, м. Октябрьская, ул. Якиманка Б. - Фото 7
    Продажа ПСН, м. Октябрьская, ул. Якиманка Б. - Фото 8
    общая площадь 35.5м², полезная площадь 35.5м²

    От собственника - арендный бизнес. ПСН общей площадью 35,5 м2, находится на ул.Большая Якиманка, ЦАО, район Якиманка. 1-я фасадная линия домов, в 4-х минутах пешком от метро Октябрьская. Сверхинтенсивный пешеходный и автомобильный трафик, респектабельное...
    • 35.5 м²
    • 1-й эт.
    27 750 000 Р
    Агент
    +7 (903) Показать номер
    Посмотреть контакты
    Продажа ПСН, м. Аэропорт, Ленинградский пр-кт. - Фото 1
    Продажа ПСН, м. Аэропорт, Ленинградский пр-кт. - Фото 2
    Продажа ПСН, м. Аэропорт, Ленинградский пр-кт. - Фото 3
    Продажа ПСН, м. Аэропорт, Ленинградский пр-кт. - Фото 4
    общая площадь 14.4м², полезная площадь 14.4м²

    Продажа помещения свободного назначения в САО, меньше 1 минуты до станции метро Аэропорт. 1-я линия домов, сверхинтенсивный пешеходный и автомобильный трафик, отличная визуализация, высокий рекламный потенциал и возможность размещения вывески на фасаде....
    • 14.4 м²
    • 1-й эт.
    26 400 000 Р
    Агент
    +7 (903) Показать номер
    Посмотреть контакты
    Продажа ПСН, м. Аэропорт, Ленинградский пр-кт. - Фото 1
    Продажа ПСН, м. Аэропорт, Ленинградский пр-кт. - Фото 2
    Продажа ПСН, м. Аэропорт, Ленинградский пр-кт. - Фото 3
    Продажа ПСН, м. Аэропорт, Ленинградский пр-кт. - Фото 4
    Продажа ПСН, м. Аэропорт, Ленинградский пр-кт. - Фото 5
    общая площадь 14.4м², полезная площадь 14.4м²

    Продажа помещения свободного назначения в САО, меньше 1 минуты до станции метро Аэропорт. 1-я линия домов, сверхинтенсивный пешеходный и автомобильный трафик, отличная визуализация, высокий рекламный потенциал. Общая площадь помещения 14,4 кв.м. (блок...
    • 14.4 м²
    • 1-й эт.
    26 400 000 Р
    Агент
    +7 (903) Показать номер
    Посмотреть контакты

    Не нашли подходящего объявления?

    Оставьте заявку, и наши риэлторы подберут псн в районе Москвы

    (0)