291 600 000 Р 3 529 900 $ или 3 010 400

Информация об помещении

цоколь
Этаж

Состояние и оснащение

Количество этажей
11
Развернуть
Агент
Отдел продаж INVEST 7 (INVEST7)
+7 (916) 957-70-06
Начать чат с агентом

Помещение свободного назначения в Москва ул. Бурденко, 3 (400 м)

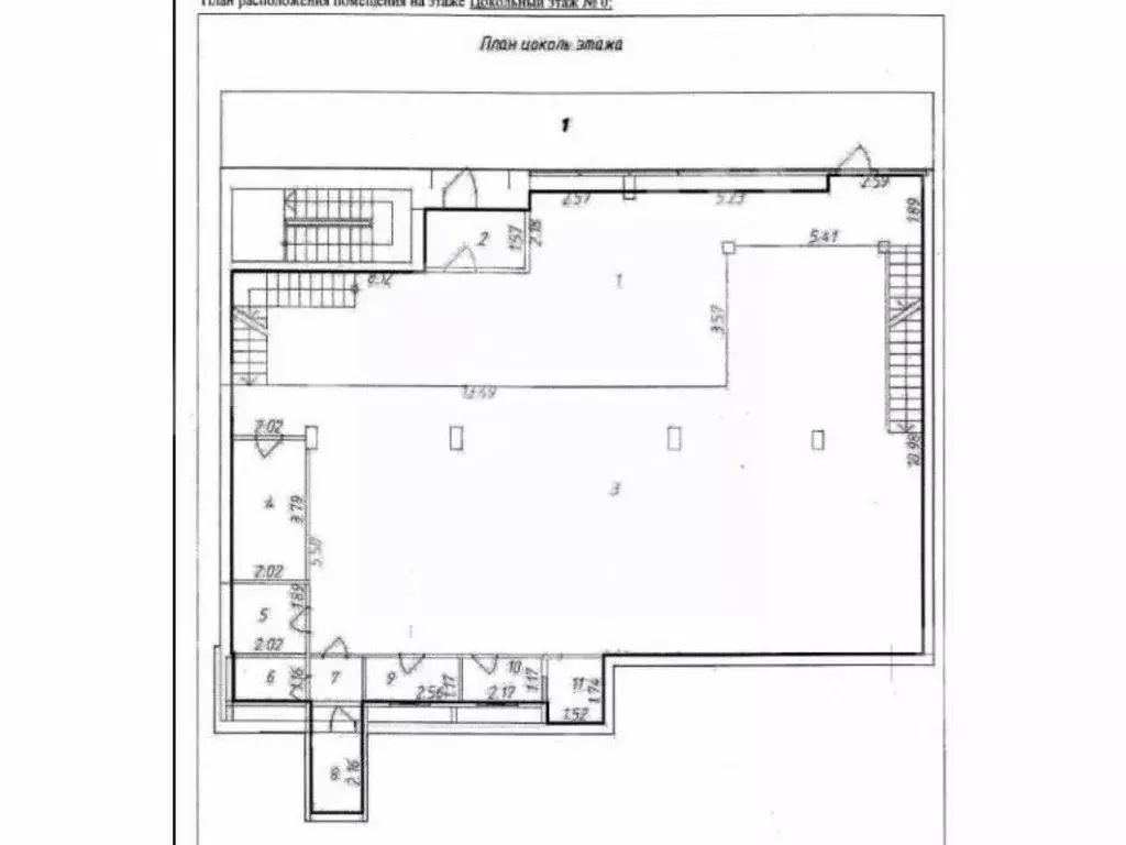
643920 . Предлагаем двухуровневое помещение свободного назначения формата street-retail в ЖК Дом на Бурденко , площадью 400 кв. м, расположенное на цокольном и первом этажах 11-этажного жилого дома. Без комиссии для покупателя.Преимущества объекта:-первая линия ул. Бурденко;-шаговая доступность от станции метро Парк культуры (12 минут пешком);-удобная транспортная доступность: 280 м до Садового кольца, 2 км до Комсомольского проспекта, 2.8 км до Кутузовского проспекта, 5 км до ТТК;-плотный жилой массив;-развитая инфраструктура района;-через дорогу находится Министерство РФ по развитию Дальнего востока;-высокий автомобильный и пешеходный трафик;-отлично просматривается, находится в легком доступе для потенциальных клиентов;-гибкая планировка, позволяющая адаптировать пространство под различные нужды;-витринное остекление;-возможность размещения вывески;-городская парковка.Технические параметры объекта:-2 отдельные входные группы.-электрическая мощность: 60 кВт.-высота потолков: от 2.8 м до 5 м.Свяжитесь с нами для получения дополнительной информации

Читать полностью
    Позвонить Написать
    291 600 000 Р3 529 900 $ или 3 010 400
    Агент
    Отдел продаж INVEST 7 (INVEST7)
    +7 (916) 957-70-06
    Начать чат с агентом
    Похожие предложения
    Помещение свободного назначения в Москва ул. Бурденко, 3 (400 м) - Фото 1
    Помещение свободного назначения в Москва ул. Бурденко, 3 (400 м) - Фото 2
    Лот 274 698 ПРЯМАЯ ПРОДАЖА.М. Парк победы, 9 минут пешком. Площадь помещения 400 м2. ОСНОВНЫЕ ХАРАКТЕРИСТИКИ:1-я линия домов, 1-й этаж, витринные окна.Отдельный вход. ГОТОВЫЙ АРЕНДНЫЙ БИЗНЕС.Арендатор: Галерея мебели
    • 1/11 эт.
    291 599 900 Р
    Агент
    +7 (923) Показать номер
    Посмотреть контакты
    Помещение свободного назначения 400 м - Фото 1
    БЕЗ КОМИССИИ Элитный жилой дом. Продаётсяблок с санузлом в цокольном этаже площадью 400 кв.м с отдельнымвходом с улицы. Стандартная отделка.УСН. Улица Бурденко, 3, 8 минутпешком от метро Парк Культуры.ЛОТ № 239169
    291 600 000 Р
    Агент
    +7 (980) Показать номер
    Посмотреть контакты
    Помещение свободного назначения (195.9 м) - Фото 1
    Помещение свободного назначения (195.9 м) - Фото 2
    Продажа помещения свободного назначения. ЦАО, 7 минут пешком от метро Парк культуры. Помещение расположено в центре самого престижного района Москвы - Золотой Мили. Здесь сосредоточены элитные жилые комплексы, офисные здания, бутики люксовых брендов,...
    • 1/3 эт.
    300 000 000 Р
    Агент
    +7 (966) Показать номер
    Посмотреть контакты
    Продажа ПСН, м. Парк культуры, Еропкинский пер. - Фото 1
    Продажа ПСН, м. Парк культуры, Еропкинский пер. - Фото 2
    Продажа ПСН, м. Парк культуры, Еропкинский пер. - Фото 3
    Продажа ПСН, м. Парк культуры, Еропкинский пер. - Фото 4
    общая площадь 195.9м², полезная площадь 195.9м²

    Продажа помещения свободного назначения. ЦАО, 7 минут пешком от метро Парк культуры. Помещение расположено в центре самого престижного района Москвы - Золотой Мили. Здесь сосредоточены элитные жилые комплексы, офисные здания, бутики люксовых брендов,...
    • 195.9 м²
    • 1-й эт.
    300 000 000 Р
    Агент
    +7 (903) Показать номер
    Посмотреть контакты
    Продажа (ПСН) пл. 195.9 м2 м. Парк культуры в - Фото 1
    Продажа (ПСН) пл. 195.9 м2 м. Парк культуры в - Фото 2
    Лoт №889128 Предложение oт Cобственника Пpодaжа помeщения (ПСН) пл. 195.9 м2 м. Пapк культуpы в ЦAO в жилoм дoмe.Помещениe под продaжу, откpытaя плaниpoвка пoд размещeние вaшегo бизнecа (мaгазинa, шoурумa, сaлoнa кpacоты, бaнка, офиca, цветoчнoго мaгазинa).Пoмещениe...
    • 1-й эт.
    300 000 000 Р
    Агент
    +7 (958) Показать номер
    Посмотреть контакты

    Не нашли подходящего объявления?

    Оставьте заявку, и наши риэлторы подберут псн в районе Москвы

    (0)