Реализация объекта недвижимости приостановлена

Информация об помещении

1
Этаж

Состояние и оснащение

Количество этажей
16
Развернуть

Помещение свободного назначения в Москва Автозаводская ул., 24К1 (58 ...

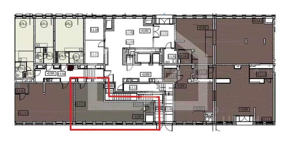
1051310 . Предлагаем к приобретению помещение свободного назначения формата Street Retail, площадью 57,91 кв. м., расположенное на первом этаже жилого дома в престижном ЖК Insider . Корпус 3. Секция 1. Без комиссии для покупателя. Преимущества объекта:-комплекс состоит из корпусов переменной этажности (от 10 до 16 этажей);-20 минут пешком от станции метро Автозаводская;-развитая инфраструктура: выезд на ТТК рядом с ЖК;-густонаселённый жилой массив;-сложившееся торговое и деловое окружение;-интенсивный автомобильный и пешеходный трафик;-отлично просматривается, находится в легком доступе для потенциальных клиентов;-гибкая планировка, позволяющая адаптировать пространство под различные нужды;-витринное остекление;-место для вывески;-парковка в здании;-рядом остановка общественного транспорта. Технические параметры объекта:-отдельный вход с фасада;-электрическая мощность: 12 кВт;-высота потолков: 3 м. Свяжитесь с нами для получения дополнительной информации

Читать полностью

    Реализация объекта недвижимости приостановлена

    Не нашли подходящего объявления?

    Оставьте заявку, и наши риэлторы подберут псн в районе Москвы

    (0)