Россия, Москва, Средняя Первомайская ул., 4

Реализация объекта недвижимости приостановлена

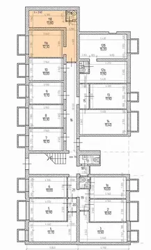
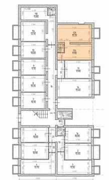
Информация об помещении

3
Этаж

Состояние и оснащение

Количество этажей
3
Развернуть

Помещение свободного назначения в Москва Средняя Первомайская ул., 4 ...

Помещение 14.4 м2 50 м от м. Первомайская Продажа ОФИСНЫХ и ТОРГОВЫХ помещений Строго. Не предназначено для проживания ШИКАРНАЯ ИНВЕСТИЦИЯ ДОХОДОСТЬ ОТ СДАЧИ В АРЕНДУ 15 ГОДОВЫХ.Прямая продажа от Собственника (ИП)Документы готовы, БЫСТРАЯ СДЕЛКА.Предлагаются к приобретению помещения свободного назначенияв современном многофункциональном комплексе на Первомайской. Идеальный формат для инвестиций в недвижимостьили развития бизнеса. Очень удачно расположен в районе Восточное Измайлово,ВАО по адресу: г. Москва, ул. Средняя Первомайская, д. 4.Время в пути от метро Первомайская занимает меньше 1 минуты.Помещения с отдельным кадастровым номером.Кабинетная планировка. Вид использования: офисное, торговое или свободного назначения (не для проживания). Полностью новые коммуникации: водопровод, электропроводка, вентиляция, противопожарная система, домофонная система.3-этажное кирпичное здание в традиционном английском стиле с огороженной территорией. Проведена полная реновация. Стильный внутренний интерьер общих зон в лофт-стиле.Высота потолков 2.6 м.Круглосуточная охрана.На территории действует собственная парковка на 30 м/м. Земельный участок в долгосрочной аренде. Высокоразвитая инфраструктура района, идеальная локация, интенсивный пешеходный и автомобильный трафик, является несомненным плюсом для владельцев бизнеса, а также гарантирует высокие ставки для тех, кто хочет получать доход от сдачи коммерческой недвижимости в аренду: - всего 50 метров от ст.м. Первомайская;- БЦ окружен плотным жилым массивом;- рядом отделение Сбербанка, ВТБ, страховые и юридические агентства, Центр услуг для бизнеса ВАО;- образовательные учреждения (школа и детский сад), аптеки и поликлиники, продовольственные и хозяйственные магазины.Торопитесь стать владельцем недвижимости, которая приносит доход уже сегодня и обеспечит ваше будущее Отличное решение для вашего бизнеса. Не упустите возможность стать частью современного и функционального БЦ на Первомайской. Ежедневный показ. Онлайн показ. ЗВОНИТЕ С удовольствием ответим на все ваши вопросы.

Читать полностью

    Реализация объекта недвижимости приостановлена

    Не нашли подходящего объявления?

    Оставьте заявку, и наши риэлторы подберут псн в районе Москвы

    (0)