92 015 000 Р 1 213 100 $ или 1 030 900

Информация об помещении

2
Этаж

Состояние и оснащение

Количество этажей
23
Развернуть
Агент
+7 (964) 567-55-31
Начать чат с агентом

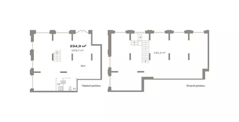
Помещение свободного назначения (239 м)

Готовность 2026 год. Предлагается в продажу ритейл 239 м2 (2 этаж) в новом Бизнес-центре «А класса Stone Дмитровский по адресу: Дмитровское шоссе, д. 1Описание:- Отделка shell core, open space.- Высота потолков 3,65 м.- Глубина этажа 10 м.- Панорамные остекление с возможностью естественного проветривания.- Функциональное планировочное решение.- Микроклимат в помещении обеспечат современные системы приточно-вытяжной вентиляции, кондиционирования и многоступенчатой очистки воздуха- Дизайнерское двусветное лобби и лаунж зоны- Высокий уровень благоустройства прилегающей территории с созданием качественной инфраструктуры.Расположение:- Бизнес-центр расположен в трёх минутах ходьбы находится метро «Дмитровская и станция МЦД-2, рядом с Ленинградским проспектом и «Белорусской - одними из самых востребованных офисных кластеров Москвы, что позволит резидентам комфортно выстраивать бизнес-связи.Преимущества ритейла в составе бизнес-центров:• Шаговая доступность от метро обеспечит стабильный пешеходный трафик• Объект нового строительства с современной инженерией• Двойной трафик за счёт сотрудников и гостей бизнес-центра, а также жителей района• Рост спроса на локальный ритейл — сотрудники будут активно пользоваться инфраструктурой бизнес-центраВозмещение НДС на оплаченную сумму уже в начале 2024 г.Успейте приобрести помещение в декабре, заплатив только 10 от стоимости лота

Читать полностью
    Позвонить Написать
    92 015 000 Р1 213 100 $ или 1 030 900
    Агент
    +7 (964) 567-55-31
    Начать чат с агентом
    Похожие предложения
    Помещение свободного назначения в Москва Дмитровский проезд, вл1Г (239 ... - Фото 1
    Помещение свободного назначения в Москва Дмитровский проезд, вл1Г (239 ... - Фото 2
    Готовность 2026 год. Предлагается в продажу ритейл 239 м2 (2 этаж) в новом Бизнес-центре А класса Stone Дмитровский по адресу: Дмитровское шоссе, д. 1Описание:- Отделка shell core, open space.- Высота потолков 3,65 м.- Глубина этажа 10 м.- Панорамные...
    • 2/23 эт.
    92 015 000 Р
    Агент
    +7 (915) Показать номер
    Посмотреть контакты
    Помещение свободного назначения в Москва просп. Мира, 54 (155 м) - Фото 1
    Помещение свободного назначения в Москва просп. Мира, 54 (155 м) - Фото 2
    1018536. Предлагаем помещение свободного назначения, площадью 155.4 кв. м, расположенное на первом этаже и антресоли 8-этажного жилого дома. Без комиссии для покупателя.Преимущества объекта:-первая линия проспекта Мира;-шаговая доступность от станции...
    • 1/8 эт.
    92 400 000 Р
    Агент
    +7 (938) Показать номер
    Посмотреть контакты
    Помещение свободного назначения в Москва Складочная ул., 6С36 (134 м) - Фото 1
    Помещение свободного назначения в Москва Складочная ул., 6С36 (134 м) - Фото 2
    1003955. Предлагаем к приобретению торговое помещение в бизнес-квартале Gustav , площадью 134 кв. м., расположенное на первом этаже 7-этажного здания. Помещение 1.Р.8. Без комиссии для покупателя.Преимущества объекта:-первая линия ул. Складочная;-10...
    • 1/7 эт.
    91 857 000 Р
    Агент
    +7 (938) Показать номер
    Посмотреть контакты
    Помещение свободного назначения в Москва Складочная ул., 6С36 (131 м) - Фото 1
    Помещение свободного назначения в Москва Складочная ул., 6С36 (131 м) - Фото 2
    904108. Предлагаем к приобретению торговое помещение в бизнес-квартале Gustav , площадью 131.12 кв. м., расположенное на первом этаже 7-этажного здания. Без комиссии для покупателя.Преимущества объекта:-первая линия ул. Складочная;-10 минут пешком от...
    • 1/7 эт.
    91 954 456 Р
    Агент
    +7 (938) Показать номер
    Посмотреть контакты
    Помещение свободного назначения в Москва Кутузовский просп., 30 (320 ... - Фото 1
    Помещение свободного назначения в Москва Кутузовский просп., 30 (320 ... - Фото 2
    Прочитайте объявление до конца, пожалуйста.Полная стоимость помещения - . При покупке ООО, Вы платите сразу и становитесь полноценным владельцем. Оставшуюся часть Вы платите самостоятельно. Она составляет . Ее можно выплачивать равными долями в течении...
    • 1/1 эт.
    93 000 000 Р
    Агент
    +7 (985) Показать номер
    Посмотреть контакты

    Не нашли подходящего объявления?

    Оставьте заявку, и наши риэлторы подберут псн в районе Москвы

    (0)