Россия, Москва, Зиларт жилой комплекс, 18/19/27

Реализация объекта недвижимости приостановлена

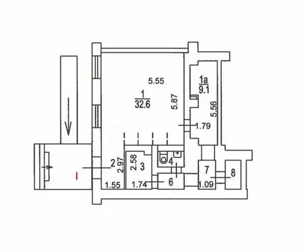
Информация об помещении

3
Этаж

Состояние и оснащение

Количество этажей
28
Развернуть

Помещение свободного назначения в Москва Зиларт жилой комплекс, ...

Группа ЛСР предлагает нежилое помещение с чистовой отделкой 34,1 кв.м в ЖК ЗИЛАРТ GRAND , Дом 18, помещение НП_203Н. Срок сдачи 2025г. ЗИЛАРТ GRAND новый дом в сердце квартала ЗИЛАРТ . Он воплощает самые смелые мечты, сочетая уникальную архитектуру, передовые инженерные решения и беспрецедентную инфраструктуру. Чистовая отделка: дверные проемы, натяжные потолки, стены, полы, керамическая плитка в ванной, унитаз, раковина и тумба, смесители, душевая кабина с ограждением. В лобби ЗИЛАРТ GRAND красота окружает вас повсюду: стильная лаунж-зона, обставленная мягкой мебелью для приятного ожидания или важной встречи; дизайнерские картины, декоративные решения стен и подсветки. - Кладовая в подарок - м. Автозаводская, м. ЗИЛ. 5 км от Кремля; прямые выезды на ТТК; причалы для водного транспорта на набережной. - Помещения свободного назначения - Cкорое открытие инновационного кластера Технопарк ЗИЛ - Сложившаяся инфраструктура в шаговой доступности - Панорамное витринное остекление - Выгодная инвестиция: перспектива роста цены при перепродаже - В каждом помещении: вода, канализация, отопление. - Возможность оформления ипотеки

Читать полностью

    Реализация объекта недвижимости приостановлена

    Не нашли подходящего объявления?

    Оставьте заявку, и наши риэлторы подберут псн в районе Москвы

    (0)