196 485 066 Р 2 625 600 $ или 2 244 900

Информация об помещении

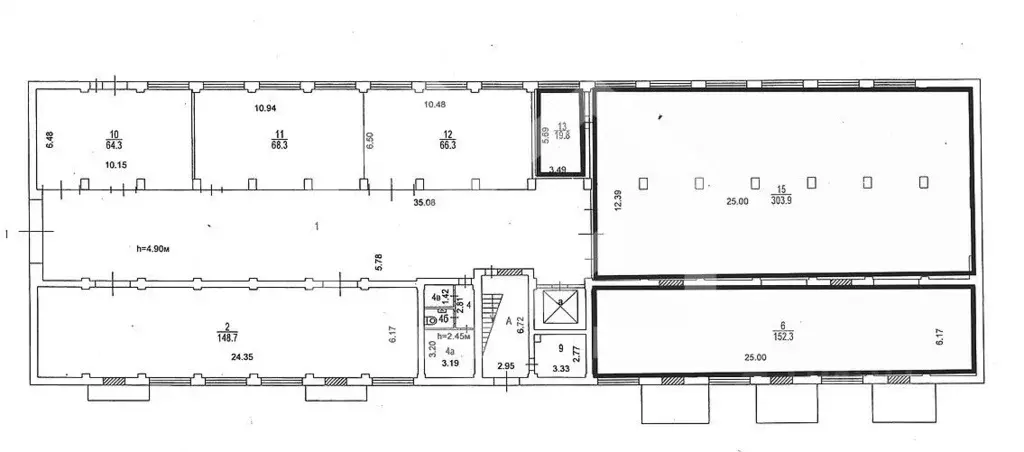
28328.2 м2
Площадь
1
Этаж

Состояние и оснащение

Количество этажей
2
Развернуть
Агент
Новикова Эльмира Раисовна
+7 (927) 088-15-35
Начать чат с агентом

Комплекс имущества по производству кирпича (в кол-ве 153 объекта)

Продается через электронные торги на площадке ЭТП ГПБ комплекс объектов по производству кирпича (в количестве 153 объекта).
Информация о земельном участке:
Имущественный комплекс расположен на земельном участке площадью 83 657 кв.м (кад.№ 86:22:0006001:1429).
Состав имущества:
- Склад готовой продукции - Площадь 2854,0 кв.м, длина 114,62 м, ширина 24,9 м, высота 10 м, объем 28540 куб.м. Фундамент ж/б сваи. Стены- колонны стальные, ж/б пнели высотой 4 м. Пол- ж/б плиты.
- Склад масел - Площадь общая 18,1 м2, площадь по наружному обмеру 20,3 кв. м., длина 6 ,12 м., ширина 3,32 м., высота 4,38 м. Фундамент ленточный, стены 'сэнгвич', перекрытия 'сэнгвич', кровля профнастил.
- Тепловой переход в АБК - Литер Ш тепловой переход в АБК, общая площадь 60,1 м2, площадь по наружному обмеру 68,9м2, высота 2,59 м, объем 178 м3, стены - железобетонные панели, перекрытия - ж/б плиты, полы бетонные, плитка.
- Цех по производству кирпича - Литера Б основное строение цех по производству кирпича, общая площадь - 24572 ,6 м2, площадь по наружному обмеру 25385 м2, высота- 19,2 м, объем - 436111 м3, фундамент - железобетонный сборный, стены - металлические каркас, перекрытия - стальные конструкции железобетонные плиты, крыша - рулонная с внутренним водостоком, полы - бетонные. Литера Б1 Дымовая та, площадь по наружному обмеру - 19,6 м2, высота - 45 м, объем - 882 м3, фундамент - кирпичный, стены - кирпичные.
- Склад ГСМ - Литер М, емкость 2х50 м3, стены и перегородки - металлические
- Железнодорожный рельсовый путь - Литера XII протяженность 581 м.
- Ограждение территории - Длина 1132 м. Высота 2 м. Материал столбов-та 159 мм., материал ограждения ж/б плита.
- Подъездные пути - Основание - щебеночное, средняя ширина 7 м, толщина 0,26 м. Покрытие - ж/б плиты, средняя ширина - 6 м, толщина 0,04 м. Общая площадь 15010 м2.
- Площадки и тротуары кирпичного цеха - Площадь покрытия _3 00 м2. Материал основания песок. Подстилающий слой: площадь - 1690,3 2 м2.
- Площадки для запаса глин кирпичного цеха - Площадь 3000 м2, ограждение - железобетонные плиты, длина - 220,0 м,
- Соединительный топровод - протяженность 89,58м, материал топроводов - сталь, диаметр 500мм.
- Соединительный топровод - Литера IХ соединительный топровод, протяженность 60,48м, диаметр 500мм, материал изоляции топроводов - металлич. короб.
- Соединительный топровод - Литера Х соединительный топровод, протяженность 83,92м, материал топроводов - сталь, диаметр 500мм.
- Водопроводная сеть кирпичного цеха, протяженность 756,05м.
- Топроводы технологические - Материал - сталь, протяженность - 848,5 пог.м, диаметр - 100 мм, смотровых колодцев 11 шт., материал изоляции - ГФИ.
- Благоустройство промплощадки кирпичного цеха - Подстилающий слой: площадь 4828,50 м2. Ж/бетонные плиты: площадь 48 28 ,50 м2.
- другое движимое/недвижимое имущество согласно перечню по запросу.

Читать полностью

    Для того, чтобы купить производственное помещение площадью 28328 кв. метров по адресу: ЦАО, м. Полянка, Якиманская наб., 2, позвоните по телефону +7 (927) 088-15-35. Торопитесь! Объявление №901105408 о продаже производственного помещения площадью 28328 кв. метров опубликовано Сегодня.

    Позвонить Написать
    196 485 066 Р2 625 600 $ или 2 244 900
    Агент
    Новикова Эльмира Раисовна
    +7 (927) 088-15-35
    Начать чат с агентом
    Похожие предложения
    Производственное помещение в Москва 2-я Кабельная ул., 2С50 (2200 м) - Фото 1
    Производственное помещение в Москва 2-я Кабельная ул., 2С50 (2200 м) - Фото 2
    761187. Предлагается складской комплекс общей площадью 2 200 кв.м в районе Лефортово. Преимущества:Объект расположен на территории завода Москабельмет .15 минут пешком от ст. метро Авиамоторная .Выезд на Шоссе Энтузиастов, Рязанский проспект и ЮВХ.Сложившееся...
    • 1/2 эт.
    200 000 000 Р
    Агент
    +7 (938) Показать номер
    Посмотреть контакты
    Производственное помещение в Москва 2-я Кабельная ул., 2С50 (2200 м) - Фото 1
    Производственное помещение в Москва 2-я Кабельная ул., 2С50 (2200 м) - Фото 2
    761187. Предлагается складской комплекс общей площадью 2 200 кв.м в районе Лефортово. Преимущества:Объект расположен на территории завода Москабельмет .15 минут пешком от ст. метро Авиамоторная .Выезд на Шоссе Энтузиастов, Рязанский проспект и ЮВХ.Сложившееся...
    • 1/2 эт.
    200 000 000 Р
    Агент
    +7 (938) Показать номер
    Посмотреть контакты
    Имущественный комплекс по производству кирпича - Фото 1
    Имущественный комплекс по производству кирпича - Фото 2
    Имущественный комплекс по производству кирпича - Фото 3
    Имущественный комплекс по производству кирпича - Фото 4
    Имущественный комплекс по производству кирпича - Фото 5
    Имущественный комплекс по производству кирпича - Фото 6
    Имущественный комплекс по производству кирпича - Фото 7
    Имущественный комплекс по производству кирпича - Фото 8
    полезная площадь 28328.2м²

    Продается через электронные торги на площадке ЭТП ГПБ комплекс объектов по производству кирпича (в количестве 153 объекта). Имущественный комплекс расположен на земельном участке площадью 83 657 кв.м (кад.№ 86:22:0006001:1429). Состав имущества: - Склад...
    • 28 328.2 м²
    • 1/2 эт.
    196 485 066 Р
    Агент
    +7 (927) Показать номер
    Посмотреть контакты
    Производственное помещение в Пензенская область, Сердобский район, ... - Фото 1
    Производственное помещение в Пензенская область, Сердобский район, ... - Фото 2
    Выгодное предложение для инвесторов и предпринимателей Продается завод по производству растительных масел с готовой командой сотрудников.Ищете перспективный бизнес с налаженным производством и потенциалом для развития? Представляем вашему вниманию уникальное...
    • 1/1 эт.
    200 000 000 Р
    Агент
    +7 (986) Показать номер
    Посмотреть контакты
    Производственное помещение в Саратовская область, Саратов ш. ... - Фото 1
    Производственное помещение в Саратовская область, Саратов ш. ... - Фото 2
    Продается производственная база, расположенная в Заводском районе города Саратова. Удобный подъезд для фур. Первая линия от дороги. Расположение в черте города. Огороженная территория. Проходная.База включает: - 3-х этажное нежилое здание котельной площадью...
    • 1/2 эт.
    190 000 000 Р
    Агент
    +7 (917) Показать номер
    Посмотреть контакты

    Не нашли подходящего объявления?

    Оставьте заявку, и наши риэлторы подберут производственное помещение в районе Москвы

    (0)