Россия, Москва, квартал № 80
113 322 700 Р 1 428 800 $ или 1 220 300

Информация об помещении

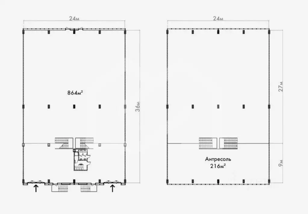
812 м2
Площадь
1
Этаж

Состояние и оснащение

Общая площадь складского комплекса, м2
812
Развернуть
Агент
Анна Данилина
+7 (929) 673-74-02
Начать чат с агентом

Продажа производственного помещения, квартал № 80

Продажа складского/производственного помещения, 812 кв.м.в современном промышленном парке на Юге г. Москвы.

Есть услуга покупки готового арендного бизнеса в данном промпарке.

Объект для развития бизнеса в рамках первой очереди нового промышленного парка, расположенного в Москве, поселение Краснопахорское.

Основные характеристики объектов:


Площадь и планировка: Предлагаемое помещение имеет общую площадь 812 м Дополнительно доступны помещения до 6400 м, включающие производственно-складские блоки, двухуровневые офисные зоны и грузовые мезонины.
Высота потолков: В производственных помещениях рабочая высота потолков достигает 8 метров.
Шаг колонн: Оптимальный шаг колонн 12x18 метров, позволяющий максимально эффективно использовать пространство без вертикальных ограничений.
Пол: Бетонное покрытие с антипылевой обработкой выдерживает нагрузку до 5 тонн/м.
Электроснабжение: по запросу!
Система безопасности: Современные системы пожаротушения и сигнализации обеспечивают надежную защиту имущества и персонала.


Комфорт и удобство использования:


Отдельный вход: Каждое помещение оборудовано собственным отдельным входом, обеспечивая независимость и конфиденциальность.
Автономные коммуникации: Все блоки имеют независимые инженерные системы, адаптированные под нужды производственного процесса.
Управляющая компания: На территории парка функционирует профессиональная управляющая компания, которая заботится о поддержании высокого уровня комфорта и безопасности для всех арендаторов и владельцев.
Отделка офисных помещений: Офисы передаются с выполненной качественной отделкой, готовой к использованию.


Местоположение и транспортная доступность:


Выгодное расположение: Промышленный парк расположен вдоль ЦКАД, в непосредственной близости от федеральных трасс (Киевское и Калужское шоссе), что обеспечивает быстрый доступ к основным транспортным артериям региона.
Транспортная инфраструктура: До Москвы можно доехать всего за 40 минут, а на территории парка активно развиваются маршруты общественного транспорта. Промышленный парк предоставляет исключительные возможности для успешного роста вашего бизнеса благодаря современной инфраструктуре, удобному местоположению и выгодным условиям сотрудничества.


Звоните !!! Отвечу на все вопросы и запишу на просмотр!

Читать полностью

    Для того, чтобы купить производственное помещение площадью 812 кв. метра по адресу: квартал № 80, позвоните по телефону +7 (929) 673-74-02. Торопитесь! Объявление №901102829 о продаже производственного помещения площадью 812 кв. метра опубликовано Сегодня.

    Позвонить Написать
    113 322 700 Р1 428 800 $ или 1 220 300
    Агент
    Анна Данилина
    +7 (929) 673-74-02
    Начать чат с агентом
    Похожие предложения
    Производственное помещение в Калининградская область, Светловский ... - Фото 1
    Производственное помещение в Калининградская область, Светловский ... - Фото 2
    Арт.Продаются производственно-складское здание площадью 5734,7 кв.м., высота потолков 4,5 м., находящееся на земельном участке 1,58 ГА в собственности, состоящее из двух производственно-складских и вспомогательных помещений по 2500 кв.м.. В здании находится...
    • 1/2 эт.
    120 000 000 Р
    Агент
    +7 (911) Показать номер
    Посмотреть контакты
    Производственное помещение в Калининградская область, Зеленоградск ул. ... - Фото 1
    Производственное помещение в Калининградская область, Зеленоградск ул. ... - Фото 2
    Арт.Продается административно-производственный комплекс общей площадью 1960,3 м. на земельном участке 60 сот. Все объекты капитального строительства в собственности, земельный участок в долгосрочной аренде на 49 лет. Территориальная зона : Коммунально...
    • 1/3 эт.
    112 000 000 Р
    Агент
    +7 (911) Показать номер
    Посмотреть контакты
    Производственное помещение в Оренбургская область, Оренбург ул. ... - Фото 1
    Производственное помещение в Оренбургская область, Оренбург ул. ... - Фото 2
    Арт.Продается производственная база - комплекс производственно-офисных помещений на своем земельном участке общей площадью 0,9 га земли ( 8875 м.кв)Характеристики объекта: Общая площадь земельного участка: 8 875 кв.мЗемля в собственности, на участке...
    • 2/2 эт.
    110 000 000 Р
    Агент
    +7 (987) Показать номер
    Посмотреть контакты
    Производственное помещение в Краснодарский край, Геленджик ... - Фото 1
    Производственное помещение в Краснодарский край, Геленджик ... - Фото 2
    Продается производственная база по адресу: г. Геленджик, ул. Новороссийская, Северо-Восточная промзона.Производственная база расположена на земельном участке площадью 3357 кв.м. Категория земель: земли населенных пунктов, вид разрешенного использования:...
    • 2/2 эт.
    100 000 000 Р
    Агент
    +7 (953) Показать номер
    Посмотреть контакты
    Производственное помещение в Нижегородская область, Нижний Новгород ... - Фото 1
    Производственное помещение в Нижегородская область, Нижний Новгород ... - Фото 2
    Приокский район, рядом с пр.Гагарина, ул.Ларина, Шапошникова, Петровского, заводами Термаль, Нител, им.Фрунзе. В продаже 2-этажный производственный корпус на собственной охраняемой территории. Материал стен - красный кирпич, в 2012 году была произведена...
    • 1/2 эт.
    115 000 000 Р
    Агент
    +7 (910) Показать номер
    Посмотреть контакты

    Не нашли подходящего объявления?

    Оставьте заявку, и наши риэлторы подберут производственное помещение в районе Москвы

    (0)