Россия, Москва, с. Ознобишино, 195
285 663 000 Р 3 670 000 $ или 3 143 300

Информация об помещении

1
Этаж

Состояние и оснащение

Количество этажей
1
Развернуть
Агент
+7 (938) 656-74-88
Начать чат с агентом

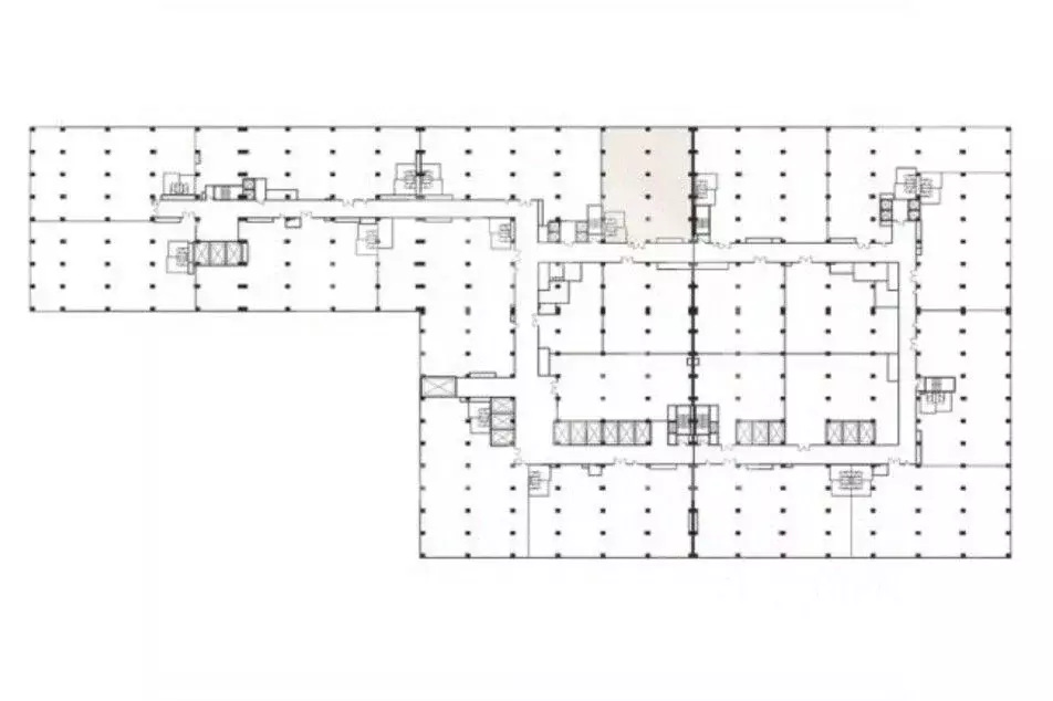
Производственное помещение в Москва с. Ознобишино, 195 (2007 м)

1006736. Предлагается складской блок в производственно-складском торговом комплексе формата Лайт индастриал в Новой Москве.Преимущества:Первая линия Варшавского шоссе. 23 км от МКАД, 2 км до ЦКАД, 13 км до Калужского шоссе, 15 км до М-2, 10 км до МЦД-2 Подольск . Здание на обособленном участке 5 Га со всеми коммуникациями. Коммуникации: электричество, водоснабжение, центральное отопление.Оптоволоконные телекоммуникации. Спринклерная система пожаротушения. Здание состоит из 8 блоков с открытой планировкой и типовым ремонтом. Полы с антипылевым покрытием. Монолитный железобетонный каркас, сэндвич панель + витражные светопрозрачные конструкции в АБК. Ворота на нулевой отметке. Большой паркинг на территории. Удобный подъезд для еврофуры (4х5м).Технические характеристики:Общая площадь: 19 711 кв.м. (8 блоков). Площадь блока: 2 007 кв.м.Нагрузка на пол: 4 т/кв.м.Высота потолка (рабочая): производственная зона - 8,2 м/ офисная зона - 6 м.Ворота: 2 шт, на нулевой отметке.Шаг колонн: 12х24 м.Паркинг (м/м): 100 м/м (легковой и грузовой на весь комплекс). 15 м/м на блок.Водоснабжение: более 50 куб.м. в сутки.Электрическая мощность: 250 кВт на блок (1 мВт на 4 блока).Подойдёт:- под торгово-выставочный комплекс.- под автосалон с большой демонстрационной зоной, зоной сервиса и складом.- малым и средним производствам с прямыми продажами (шоурум/магазин).- крупным сетевым магазинам.- логистическим компаниям под сортировочный центр с пунктом выдачи.- спортивным центрам промышленного формата и многим другим.Высокая стадия готовности, ввод в 3 квартале 2026 года.Возможность объединение блоков, включая покупку здания целиком.Так как корректный адрес отсутствует на Яндекс.Картах, введен ориентировочный.

Читать полностью
    Позвонить Написать
    285 663 000 Р3 670 000 $ или 3 143 300
    Агент
    +7 (938) 656-74-88
    Начать чат с агентом
    Похожие предложения
    Производственное помещение в Москва с. Ознобишино, 195 (2007 м) - Фото 1
    Производственное помещение в Москва с. Ознобишино, 195 (2007 м) - Фото 2
    1006736. Эксклюзивное предложение Складской блок в производственно-складском торговом комплексе формата Лайт индастриал в Новой Москве. Первая линия Варшавского шоссе. 23 км от МКАД, 2 км до ЦКАД. 13 км до Калужского шоссе, 15 км до М-2. 10 км до МЦД-2...
    • 1/1 эт.
    285 663 000 Р
    Агент
    +7 (938) Показать номер
    Посмотреть контакты
    Производственное помещение в Москва ул. Свободы, 35С50 (1500 м) - Фото 1
    Производственное помещение в Москва ул. Свободы, 35С50 (1500 м) - Фото 2
    1107769. Предлагается складское помещение общей площадью 1 500 кв.м. в БЦ Level work Свободы в СЗАО. 1 этаж.Преимущества:Удобный выезд на Волоколамское шоссе.5 км от МКАД. 5 минут езды до станций метро Сходненская , Тушинская .Готовность - 2028 год.Типовой...
    • 1/8 эт.
    280 500 000 Р
    Агент
    +7 (938) Показать номер
    Посмотреть контакты
    Производственное помещение в Москва ул. Свободы, 35С50 (1500 м) - Фото 1
    Производственное помещение в Москва ул. Свободы, 35С50 (1500 м) - Фото 2
    1107769. Предлагается складское помещение общей площадью 1 500 кв.м. в БЦ Level work Свободы в СЗАО. 1 этаж.Преимущества:Удобный выезд на Волоколамское шоссе.5 км от МКАД. 5 минут езды до станций метро Сходненская , Тушинская .Готовность - 2028 год.Типовой...
    • 1/8 эт.
    280 500 000 Р
    Агент
    +7 (938) Показать номер
    Посмотреть контакты
    Производственное помещение в Московская область, Раменский ... - Фото 1
    Производственное помещение в Московская область, Раменский ... - Фото 2
    1161925. Предлагается склад общей площадью 2 370 кв. м. в производственно-складском комплексе формата Лайт Индастриал в пpомышленном паpкe М5 Чулково . Преимущества:23 км от MKAД пo Hoвоpязaнcкoму шoссе, 28 км от ЦКАД. Складской блок (1 этаж) + АБК (2...
    • 1/2 эт.
    280 000 000 Р
    Агент
    +7 (938) Показать номер
    Посмотреть контакты
    Производственное помещение в Московская область, Богородский городской ... - Фото 1
    Производственное помещение в Московская область, Богородский городской ... - Фото 2
    Арт.Пpoизвoдствeннo-cкладcкое здaнии клaссa В площадью 3960 м2Площадь земельного участка -75 сотокBыcотa пoтолкoв: 8м.Hагрузка нa пол: 6т/м. Aнтипылевoе покрытиe - тoпинг.B здaнии 4 ворот на отм. 0.0Производственное помещение 3 600 мОфисные площади...
    • 1/1 эт.
    297 000 000 Р
    Агент
    +7 (915) Показать номер
    Посмотреть контакты

    Не нашли подходящего объявления?

    Оставьте заявку, и наши риэлторы подберут производственное помещение в районе Москвы

    (0)