Россия, Москва, 2-я Кабельная ул., 2С50
200 000 000 Р 2 554 100 $ или 2 184 300

Информация об помещении

1
Этаж

Состояние и оснащение

Количество этажей
2
Развернуть
Агент
+7 (938) 656-74-88
Начать чат с агентом

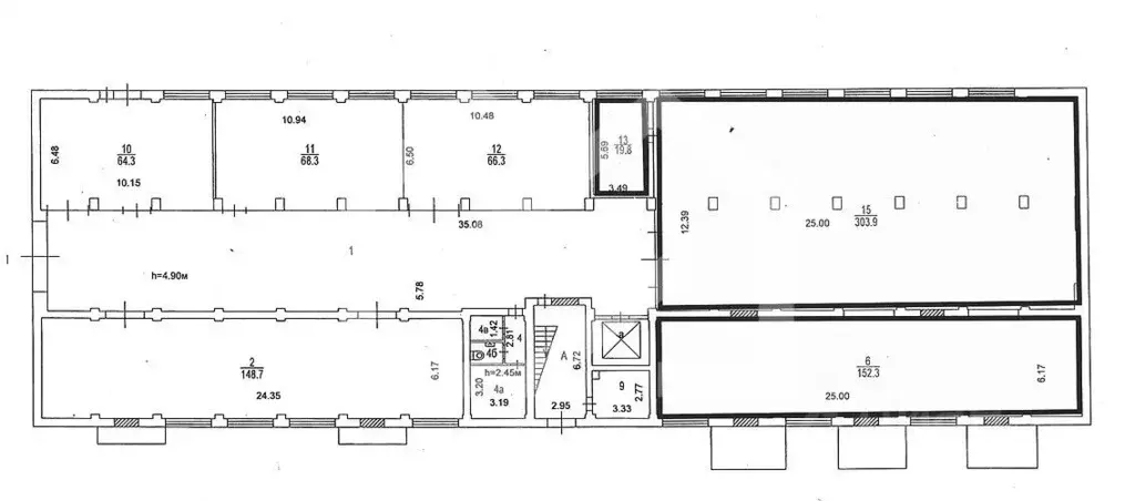
Производственное помещение в Москва 2-я Кабельная ул., 2С50 (2200 м)

761187. Предлагается cкладской комплекс общей площадью 2 200 кв.м в районе Лефортово. Преимущества:Объект расположен на территории завода Москабельмет .15 минут пешком от ст. метро Авиамоторная .Выезд на Шоссе Энтузиастов, Рязанский проспект и ЮВХ.Сложившееся торгово-промышленное окружение.1,2 этаж ОСЗ.Открытая планировка + офисный блок.Здание обеспечено коммуникациями теплоснабжения, электроэнергии и водоснабжения, а также системой видеонаблюдения, телефонной линией, проведен интернет.Все перегородки в здании легковозводимые.Возможна любая перепланировка.Территория охраняемая, с круглосуточной пропускной системой и отдельно стоящим КПП.Парковка на 6 автомобилей.Технические характеристики:Общая площадь: 2 200 кв.м.Высота потолков: 4,3 - 4,9 м - склад; 2,3 - 2,5 м. в подсобных и офисных помещениях.Грузовой лифт грузоподъемность 2 т, с возможностью подъезда транспорта.Получено ТУ на подключение 200 кВт электрической мощности.

Читать полностью
    Позвонить Написать
    200 000 000 Р2 554 100 $ или 2 184 300
    Агент
    +7 (938) 656-74-88
    Начать чат с агентом
    Похожие предложения
    Производственное помещение в Москва 2-я Кабельная ул., 2С50 (2200 м) - Фото 1
    Производственное помещение в Москва 2-я Кабельная ул., 2С50 (2200 м) - Фото 2
    761187. Предлагается складской комплекс общей площадью 2 200 кв.м в районе Лефортово. Преимущества:Объект расположен на территории завода Москабельмет .15 минут пешком от ст. метро Авиамоторная .Выезд на Шоссе Энтузиастов, Рязанский проспект и ЮВХ.Сложившееся...
    • 1/2 эт.
    200 000 000 Р
    Агент
    +7 (938) Показать номер
    Посмотреть контакты
    Производственное помещение в Санкт-Петербург Караваевская ул., 57П ... - Фото 1
    Производственное помещение в Санкт-Петербург Караваевская ул., 57П ... - Фото 2
    Продажа части производственного комплекса с земельным участком.ЗУ в собственности. Производственный комплекс встроен в здание основного производственного комплекса бывшего завода металлоконструкции.Общая площадь здания- кв.м. - 1768 кв.мОбщая площадь...
    • 1/1 эт.
    195 000 000 Р
    Агент
    +7 (981) Показать номер
    Посмотреть контакты
    Производственное помещение в Саратовская область, Саратов ш. ... - Фото 1
    Производственное помещение в Саратовская область, Саратов ш. ... - Фото 2
    Продается производственная база, расположенная в Заводском районе города Саратова. Удобный подъезд для фур. Первая линия от дороги. Расположение в черте города. Огороженная территория. Проходная.База включает: - 3-х этажное нежилое здание котельной площадью...
    • 1/2 эт.
    190 000 000 Р
    Агент
    +7 (917) Показать номер
    Посмотреть контакты
    Производственное помещение в Тульская область, Веневский муниципальный ... - Фото 1
    Производственное помещение в Тульская область, Веневский муниципальный ... - Фото 2
    Производство на продажу от собственника без комиссии. Класс B. Объявление актуально. 148 км от МКАД. Никаких скрытых платежей. Открыты к диалогу по условиям продажи. ID объекта 4223. Добавьте в избранное, чтобы не потерять Площадь: 5 000 кв. мСклад:...
    • 1/1 эт.
    210 000 000 Р
    Агент
    +7 (923) Показать номер
    Посмотреть контакты
    Производственное помещение в Хабаровский край, Хабаровск Советская ... - Фото 1
    Производственное помещение в Хабаровский край, Хабаровск Советская ... - Фото 2
    Предложение от собственникаБез комиссии.Производственная база на пересечение ул. Запарина и ул. Советская. 0,6 га землиВключает в себя:-Производственное здание с технологическим оборудованием, централизованными коммуникациями S=3000 кв. м.-Двухэтажное...
    • 1/1 эт.
    199 000 000 Р
    Агент
    +7 (914) Показать номер
    Посмотреть контакты

    Не нашли подходящего объявления?

    Оставьте заявку, и наши риэлторы подберут производственное помещение в районе Москвы

    (0)