Россия, Москва, пер. Любучанский, 1к3
368 783 125 Р 4 709 600 $ или 4 027 600

Информация об помещении

1
Этаж

Состояние и оснащение

Количество этажей
3
Развернуть
Агент
+7 (938) 656-74-88
Начать чат с агентом

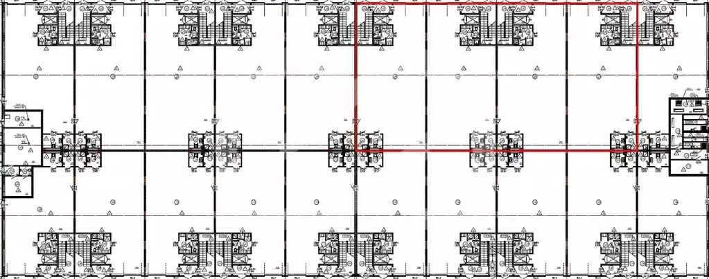
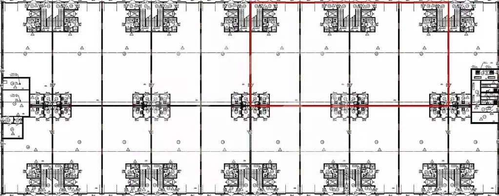
Производственное помещение в Москва пер. Любучанский, 1к3 (2845 м)

991969. Предлагается складское помещение общей площадью 2845 кв. м. находящееся в составе производственно-складского комплекса в НАО. 1, 2, 3 этаж.Преимущества: Объект расположен в Новой Москве вблизи аэропорта Остафьево. 14 км от МКАД и 3 км от Варшавского шоссе. Рядом со станцией метро Бунинская аллея и станциями МЦД-2 Щербинка и Остафьево . Полы антипыль . Монолитный железобетонный каркас, сэндвич-панель + витражные светопрозрачные конструкции. Удобный подъезд для еврофуры. Паркинг на 61 машиноместо.Характеристики:-Общая площадь блоков (А6+А7+А8+А9) - 2845 кв.м:1 этаж - 1112 кв.м; 2 этаж - 1264 кв.м; 3 этаж - 469 кв.м.-Нагрузка на пол: 1 этаж - 3 т/м2; 2 этаж - 1,2 т/м2; 3 этаж - 0,3 т/м2.-Высота потолка (рабочая): 1 этаж - 6 м; 2 этаж - 4,4 м; 3 этаж - 2,8 м.-4 грузовых лифта на 2 т (по 1-му на блок).-4 автоматических ворота в ноль .Полный пакет централизованных коммуникаций:-300 кВт электричества на блок.-Водоснабжение более 11 м3 в сутки на блок.-Оптоволоконные телекоммуникации.Так как корректный адрес отсутствует на Яндекс.Картах, введен ориентировочный. Лайт индастриал - трендовый формат помещения для совместного размещения производства с хранением, лабораторий, офисов. Комплекс расположен в окружении плотной жилой застройки, чтобы позволяет легко находить необходимый квалифицированный персонал для вашего бизнеса. А для ваших сотрудников это максимально удобная логистика от дома до работы.

Читать полностью
    Позвонить Написать
    368 783 125 Р4 709 600 $ или 4 027 600
    Агент
    +7 (938) 656-74-88
    Начать чат с агентом
    Похожие предложения
    Производственное помещение в Москва пер. Любучанский, 1к3 (2845 м) - Фото 1
    Производственное помещение в Москва пер. Любучанский, 1к3 (2845 м) - Фото 2
    991969. Предлагается складское помещение общей площадью 2845 кв. м. находящееся в составе производственно-складского комплекса в НАО. 1, 2, 3 этаж.Преимущества: Объект расположен в Новой Москве вблизи аэропорта Остафьево. 14 км от МКАД и 3 км от Варшавского...
    • 1/3 эт.
    368 783 125 Р
    Агент
    +7 (938) Показать номер
    Посмотреть контакты
    Производственное помещение в Москва пер. Любучанский, 1к3 (2845 м) - Фото 1
    Производственное помещение в Москва пер. Любучанский, 1к3 (2845 м) - Фото 2
    991969. Предлагается складское помещение общей площадью 2845 кв. м. находящееся в составе производственно-складского комплекса в НАО. 1, 2, 3 этаж.Преимущества: Объект расположен в Новой Москве вблизи аэропорта Остафьево. 14 км от МКАД и 3 км от Варшавского...
    • 1/3 эт.
    368 783 125 Р
    Агент
    +7 (938) Показать номер
    Посмотреть контакты
    Производственное помещение в Московская область, Солнечногорск ... - Фото 1
    Производственное помещение в Московская область, Солнечногорск ... - Фото 2
    Производство на продажу от собственника без комиссии. Класс B+. Объявление актуально. 33 км от МКАД. Никаких скрытых платежей. Открыты к диалогу по условиям продажи. ID объекта 3147. Добавьте в избранное, чтобы не потерять Общая площадь: 4 494 кв. м...
    • 1/1 эт.
    360 000 000 Р
    Агент
    +7 (923) Показать номер
    Посмотреть контакты
    Производственное помещение в Москва наб. Пресненская, 2 (300000 м) - Фото 1
    Производственное помещение в Москва наб. Пресненская, 2 (300000 м) - Фото 2
    Продам работающий карьер в г. ЧЕЛЯБИНСК Добыча строительного камня.Сфера использования:- промышленное строительство;- гражданское строительство;- логистическое строительство;- строительство и реконструкция дорог;- производство бетона, растворов, асфальта...
    • 1/1 эт.
    360 000 000 Р
    Агент
    +7 (912) Показать номер
    Посмотреть контакты
    Производственное помещение в Московская область, Люберцы городской ... - Фото 1
    Производственное помещение в Московская область, Люберцы городской ... - Фото 2
    Уникальный номер помещения.Строительство современного производственно-складского комплекса класса В формата Light industrial в Томилино.Удобное расположение: 8 км. до МКАД.Добавьте объявление в избранное, чтобы не упустить выгодное предложение Рабочая...
    • 1/1 эт.
    360 000 000 Р
    Агент
    +7 (980) Показать номер
    Посмотреть контакты

    Не нашли подходящего объявления?

    Оставьте заявку, и наши риэлторы подберут производственное помещение в районе Москвы

    (0)