935 000 000 Р 11 131 200 $ или 9 610 600

Информация об помещении

1
Этаж

Состояние и оснащение

Количество этажей
8
Развернуть
Агент
+7 (938) 656-74-88
Начать чат с агентом

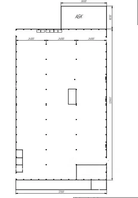
Производственное помещение в Москва ул. Свободы, 35С50 (5000 м)

1107770. Предлагается складское помещение общей площадью 5 000 кв.м. в БЦ Level work Свободы в СЗАО. 1 этаж.Преимущества:Удобный выезд на Волоколамское шоссе.5 км от МКАД. 5 минут езды до станций метро Сходненская , Тушинская .Готовность - 2028 год.Типовой ремонт.Производственный комплекс оснащён 36 погрузочно-разгрузочными доками, промышленными лифтами с грузоподъёмностью до 8 тонн.Многоуровневый крытый паркинг.В пешей доступности остановки общественного транспорта, пешеходный переход.Паркинг (м/м): 350.Технические характеристики:Площадь: 5 000 кв.м.Высота потолков: 4,5 - 8 м.Нагрузка на пол: 1,5 - 6 т/кв.м.Электрическая мощность: 90 - 120 Вт/кв.м.

Читать полностью
    Позвонить Написать
    935 000 000 Р11 131 200 $ или 9 610 600
    Агент
    +7 (938) 656-74-88
    Начать чат с агентом
    Похожие предложения
    Производственное помещение в Москва ул. Свободы, 35С50 (5000 м) - Фото 1
    Производственное помещение в Москва ул. Свободы, 35С50 (5000 м) - Фото 2
    1107770. Предлагается складское помещение общей площадью 5 000 кв.м. в БЦ Level work Свободы в СЗАО. 1 этаж.Преимущества:Удобный выезд на Волоколамское шоссе.5 км от МКАД. 5 минут езды до станций метро Сходненская , Тушинская .Готовность - 2028 год.Типовой...
    • 1/8 эт.
    935 000 000 Р
    Агент
    +7 (938) Показать номер
    Посмотреть контакты
    Производственное помещение в Нижегородская область, Семенов ул. ... - Фото 1
    Производственное помещение в Нижегородская область, Семенов ул. ... - Фото 2
    Прямая продажа от собственника производственно-складской площадки в г. Семенов:большие электрические мощности 10 000 мВтцена электроэнергии -уб/квт (уровень напряжения ВН1)собственная железнодорожная ветка (L - 490 м, вместимость - 20 вагонов, эстакады...
    • 1/1 эт.
    934 906 050 Р
    Агент
    +7 (987) Показать номер
    Посмотреть контакты
    Производственное помещение в Московская область, Серпухов Пролетарская ... - Фото 1
    Производственное помещение в Московская область, Серпухов Пролетарская ... - Фото 2
    Код объекта: 2041971.Продажа кожевенного завода целиком. Совокупность кирпичных и бетонных построек (этажность здании 1-2, плотность застроики 34,8 ), а так же всего оборудования.Расположение в границах сложившеися жилои застроики г. Серпухова на территории...
    • 1/2 эт.
    950 000 000 Р
    Агент
    +7 (915) Показать номер
    Посмотреть контакты

    Не нашли подходящего объявления?

    Оставьте заявку, и наши риэлторы подберут производственное помещение в районе Москвы

    (0)