Россия, Москва, с. Ознобишино, 195
285 663 000 Р 3 367 200 $ или 2 947 500

Информация об помещении

1
Этаж

Состояние и оснащение

Количество этажей
1
Развернуть
Агент
+7 (938) 656-74-88
Начать чат с агентом

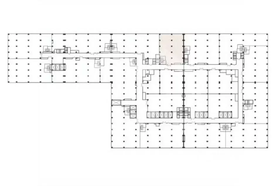
Производственное помещение в Москва с. Ознобишино, 195 (2007 м)

1006736. Эксклюзивное предложение Складской блок в производственно-складском торговом комплексе формата Лайт индастриал в Новой Москве. Первая линия Варшавского шоссе. 23 км от МКАД, 2 км до ЦКАД. 13 км до Калужского шоссе, 15 км до М-2. 10 км до МЦД-2 Подольск . Так как корректный адрес отсутствует на Яндекс.Картах, введен ориентировочный.Здание на обособленном участке 5 Га со всеми коммуникациями. Состоит из 8 блоков. Открытая планировка блока. Типовой ремонт. Полы с антипылевым покрытием. Монолитный железобетонный каркас, сэндвич панель + витражные светопрозрачные конструкции в АБК. Электричество. Водоснабжение. Оптоволоконные телекоммуникации. Центральное отопление. Спринклерная система пожаротушения. Ворота на нулевой отметке. Удобный подъезд для еврофуры (4х5м). Большой паркинг на территории.Технические характеристики: Общая площадь: 19711 м2 (8 блоков).Площадь продаваемого блока: 2007 м2.Нагрузка на пол: 4 т/м2.Высота потолка (рабочая): производственная зона - 8,2 м/офисная зона - 6 м.Ворота: 2 шт, на нулевой отметке.Шаг колонн: 12х24 м.Паркинг (м/м): 100 мм (легковой и грузовой на весь комплекс). 15 мм на блок.Электрическая мощность: 250 кВт на блок.Водоснабжение: более 50 м3 в сутки.Возможность объединение блоков, включая покупку здания целиком.Высокая стадия готовности, ввод в 3 квартале 2026 года. Идеально для B2B/B2C ритейла высокими требованиями к хранению и доступностью для клиентов (цветы, мебель, бытовая техника, автозапчасти....).При объединении соседних блоков также подойдёт автосалонам/автодилерам с большой демонстрационной зоной, зоной сервиса и складом. Малым и средним производствам с прямыми продажами (с организацией шоу-рума/магазина). Крупным сетевым магазинам. Логистическим компаниям под сортировочный центр с пунктом выдачи.

Читать полностью
    Позвонить Написать
    285 663 000 Р3 367 200 $ или 2 947 500
    Агент
    +7 (938) 656-74-88
    Начать чат с агентом
    Похожие предложения
    Производственное помещение в Москва с. Ознобишино, 195 (2007 м) - Фото 1
    Производственное помещение в Москва с. Ознобишино, 195 (2007 м) - Фото 2
    1006736. Эксклюзивное предложение Складской блок в производственно-складском торговом комплексе формата Лайт индастриал в Новой Москве. Первая линия Варшавского шоссе. 23 км от МКАД, 2 км до ЦКАД. 13 км до Калужского шоссе, 15 км до М-2. 10 км до МЦД-2...
    • 1/1 эт.
    285 663 000 Р
    Агент
    +7 (938) Показать номер
    Посмотреть контакты
    Номер ЛОТА: 1841. Продается 4000кв.м. расположенные на участке 2,5ГА продажа с участком. Электричество 150кВт подведено, есть газ, территория ограждена. Помещение требует реконструкции или ремонта.Назначение участка - Производственное, в том числе пищевое...
    • 1/2 эт.
    300 000 000 Р
    Агент
    +7 (980) Показать номер
    Посмотреть контакты
    Производственное помещение в Москва ул. Свободы, 35С50 (1500 м) - Фото 1
    Производственное помещение в Москва ул. Свободы, 35С50 (1500 м) - Фото 2
    1107769. Предлагается складское помещение общей площадью 1 500 кв.м. в БЦ Level work Свободы в СЗАО. 1 этаж.Преимущества:Удобный выезд на Волоколамское шоссе.5 км от МКАД. 5 минут езды до станций метро Сходненская , Тушинская .Готовность - 2028 год.Типовой...
    • 1/8 эт.
    280 500 000 Р
    Агент
    +7 (938) Показать номер
    Посмотреть контакты
    Производственное помещение в Москва ул. Свободы, 35С50 (1500 м) - Фото 1
    Производственное помещение в Москва ул. Свободы, 35С50 (1500 м) - Фото 2
    1107769. Предлагается складское помещение общей площадью 1 500 кв.м. в БЦ Level work Свободы в СЗАО. 1 этаж.Преимущества:Удобный выезд на Волоколамское шоссе.5 км от МКАД. 5 минут езды до станций метро Сходненская , Тушинская .Готовность - 2028 год.Типовой...
    • 1/8 эт.
    280 500 000 Р
    Агент
    +7 (938) Показать номер
    Посмотреть контакты
    Производственное помещение в Москва Рябиновая ул., 47к2 (2403 м) - Фото 1
    Производственное помещение в Москва Рябиновая ул., 47к2 (2403 м) - Фото 2
    Продается имущественный комплекс на земельном участке 0,2406 га, по адресу улица Рябиновая. Удобное расположение рядом с ключевыми транспортными магистралями, включая МКАД. Статус земельного участка договор аренды до 2059 года.На участке одно здание...
    • 3/3 эт.
    280 000 000 Р
    Агент
    +7 (933) Показать номер
    Посмотреть контакты

    Не нашли подходящего объявления?

    Оставьте заявку, и наши риэлторы подберут производственное помещение в районе Москвы

    (0)