135 796 167 Р 1 692 700 $ или 1 476 300

Информация об помещении

1
Этаж

Состояние и оснащение

Количество этажей
2
Развернуть
Агент
+7 (938) 656-74-88
Начать чат с агентом

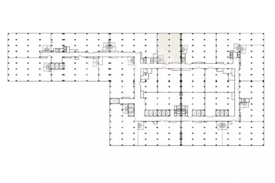
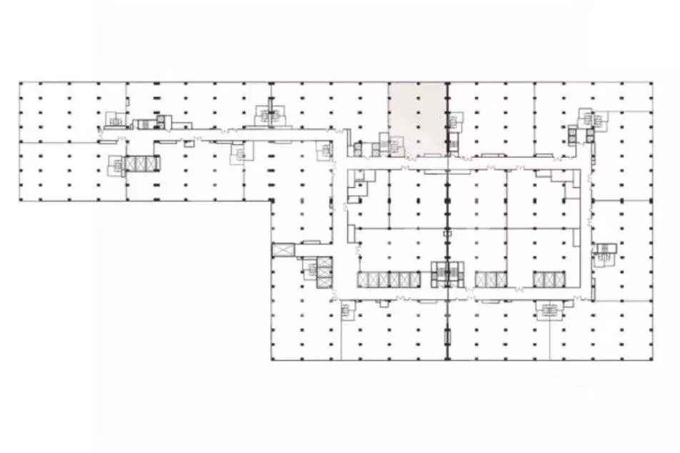
Производственное помещение в Москва Остаповский проезд, 18С2 (1336 м)

1095084. Продажа производственного здания с офисом общей площадью 1 335,7 кв. м.Преимущества:Центр крупной промышленной зоны.Удобный выезд на ТТК.Остановки общественного транспорта в шаговой доступности.Капитальное, отапливаемое, двухэтажное здание.Здание и участок в собственности.Все коммуникации от города.Бетонный пол.ВРИ - склад/производство. Кроме пищевого.Технические характеристики:Общая площадь: 1 335,7 кв. м.Высота потолка на 1 этаже: от 4 до 7,5 м.Высота потолка на 2 этаже: 3,5 м.Нагрузка на пол: 5 т/м.Кран балка на 3,2 тонны.Электрическая мощность: 250 кВт.Общая площадь земельного участка: 0,1197 га.Формат продажи - продажа Юр. Лица.

Читать полностью
    Позвонить Написать
    135 796 167 Р1 692 700 $ или 1 476 300
    Агент
    +7 (938) 656-74-88
    Начать чат с агентом
    Похожие предложения
    Производственное помещение в Москва Остаповский проезд, 18С2 (1336 м) - Фото 1
    Производственное помещение в Москва Остаповский проезд, 18С2 (1336 м) - Фото 2
    1095084. Продажа производственного здания с офисом общей площадью 1 335,7 кв. м.Преимущества:Центр крупной промышленной зоны.Удобный выезд на ТТК.Остановки общественного транспорта в шаговой доступности.Капитальное, отапливаемое, двухэтажное здание.Здание...
    • 1/2 эт.
    135 796 167 Р
    Агент
    +7 (938) Показать номер
    Посмотреть контакты
    Производственное помещение в Москва ул. Свободы, 35С50 (704 м) - Фото 1
    Производственное помещение в Москва ул. Свободы, 35С50 (704 м) - Фото 2
    993121. Предлагается склад общей площадью 704,4 кв. м. в БЦ Level work Свободы в СЗАО.Преимущества:Удобный выезд на Волоколамское шоссе.5 км от МКАД. 5 минут езды до станций метро Сходненская , Тушинская .Готовность - 2028 год.8-ой этаж.Типовой ремонт.Производственный...
    • 8/8 эт.
    131 722 800 Р
    Агент
    +7 (938) Показать номер
    Посмотреть контакты
    Производственное помещение в Московская область, Солнечногорск ... - Фото 1
    Производственное помещение в Московская область, Солнечногорск ... - Фото 2
    Лот: 17626. О ПРОЕКТЕПредлагаются современные помещения класса А для производства, хранения или быстрой организации арендного бизнеса в новом промышленном парке в г.о. Солнечногорск. Общая площадь застройки составит около 200 000 кв. м. Готовность к...
    • 1/1 эт.
    132 167 500 Р
    Агент
    +7 (980) Показать номер
    Посмотреть контакты
    Производственное помещение в Москва ул. Свободы, 35С50 (704 м) - Фото 1
    Производственное помещение в Москва ул. Свободы, 35С50 (704 м) - Фото 2
    993121. Предлагается склад общей площадью 704,4 кв. м. в БЦ Level work Свободы в СЗАО. Преимущества:Удобный выезд на Волоколамское шоссе. 5 км от МКАД. 5 минут езды до станций метро Сходненская , Тушинская . Готовность - 2028 год. 8-ой этаж. Типовой...
    • 8/8 эт.
    131 722 800 Р
    Агент
    +7 (938) Показать номер
    Посмотреть контакты
    Производственное помещение в Ярославская область, Ярославль ... - Фото 1
    Производственное помещение в Ярославская область, Ярославль ... - Фото 2
    Арт.. Предлагается к продаже производственная площадка на которой базируется завод лакокрасочных изделий.Предприятие располагается на земельном участке в 125 соток и состоит из восьми зданий, включающих в себя производственные площадки и склады, общая...
    • 1/2 эт.
    140 000 000 Р
    Агент
    +7 (917) Показать номер
    Посмотреть контакты

    Не нашли подходящего объявления?

    Оставьте заявку, и наши риэлторы подберут производственное помещение в районе Москвы

    (0)