Россия, Москва, 2-я Кабельная ул., 2С50
180 000 000 Р 2 313 600 $ или 1 983 600

Информация об помещении

1
Этаж

Состояние и оснащение

Количество этажей
2
Развернуть
Агент
+7 (938) 656-74-88
Начать чат с агентом

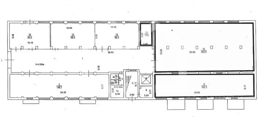
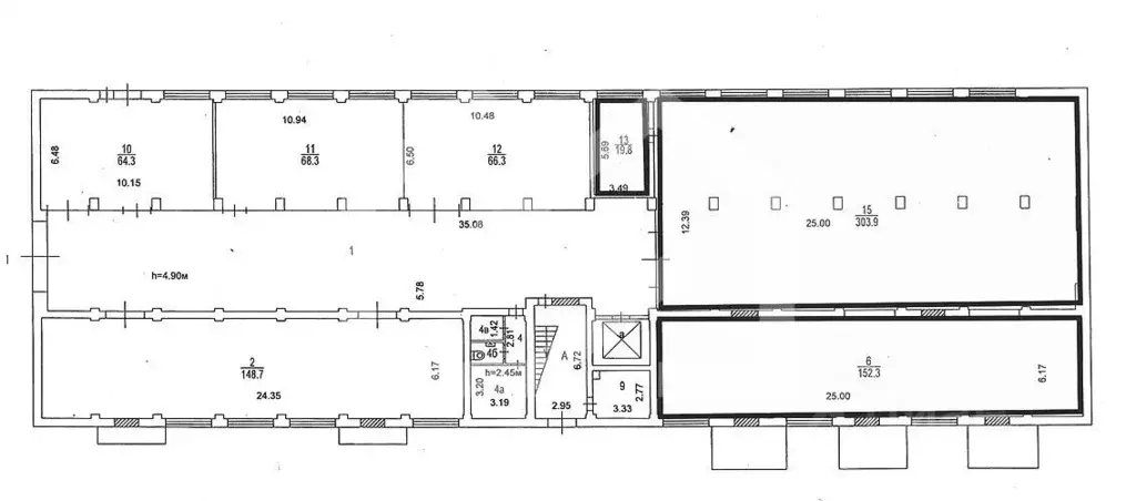
Производственное помещение в Москва 2-я Кабельная ул., 2С50 (2200 м)

761187-wi . Складской комплекс общей площадью 2 200 кв. м в районе Лефортово. Объект расположен на территории завода Москабельмет .Преимущества:15 минут пешком от ст. метро Авиамоторная .Выезд на Шоссе Энтузиастов, Рязанский проспект и ЮВХ.Сложившееся торгово-промышленное окружение.1,2 этаж ОСЗ.Открытая планировка + офисный блок.Здание обеспечено коммуникациями теплоснабжения, электроэнергии и водоснабжения, а также системой видеонаблюдения, телефонной линией, проведен интернет.Все перегородки в здании легковозводимые.Возможна любая перепланировка.Территория охраняемая, с круглосуточной пропускной системой и отдельно стоящим КПП.Парковка на 6 автомобилей.Технические характеристики:Общая площадь: 2 200 кв. м.Высота потолков: 4,3 - 4,9 м - склад, 2,3 - 2,5 м. в подсобных и офисных помещениях.Грузовой лифт грузоподъемность 2 т, с возможностью подъезда транспорта.Получено ТУ на подключение 200 кВт электрической мощности.

Читать полностью
    Позвонить Написать
    180 000 000 Р2 313 600 $ или 1 983 600
    Агент
    +7 (938) 656-74-88
    Начать чат с агентом
    Похожие предложения
    Производственное помещение в Москва 2-я Кабельная ул., 2С50 (2200 м) - Фото 1
    Производственное помещение в Москва 2-я Кабельная ул., 2С50 (2200 м) - Фото 2
    761187. Складской комплекс общей площадью 2 200 кв. м в районе Лефортово. Объект расположен на территории завода Москабельмет .Преимущества:15 минут пешком от ст. метро Авиамоторная .Выезд на Шоссе Энтузиастов, Рязанский проспект и ЮВХ.Сложившееся торгово-промышленное...
    • 1/2 эт.
    180 000 000 Р
    Агент
    +7 (938) Показать номер
    Посмотреть контакты
    Производственное помещение в Москва 2-я Кабельная ул., 2С50 (2200 м) - Фото 1
    Производственное помещение в Москва 2-я Кабельная ул., 2С50 (2200 м) - Фото 2
    761187-wi . Складской комплекс общей площадью 2 200 кв. м в районе Лефортово. Объект расположен на территории завода Москабельмет .Преимущества:15 минут пешком от ст. метро Авиамоторная .Выезд на Шоссе Энтузиастов, Рязанский проспект и ЮВХ.Сложившееся...
    • 1/2 эт.
    180 000 000 Р
    Агент
    +7 (938) Показать номер
    Посмотреть контакты
    Производственное помещение в Москва пер. Любучанский, 1к3 (1426 м) - Фото 1
    Производственное помещение в Москва пер. Любучанский, 1к3 (1426 м) - Фото 2
    991930. Предлагается складское помещение общей площадью 1426 кв. м. находящееся в составе производственно-складского комплекса в НАО. 1, 2, 3 этаж. Преимущества: Объект расположен в Новой Москве вблизи аэропорта Остафьево. 14 км от МКАД и 3 км от Варшавского...
    • 1/3 эт.
    184 845 250 Р
    Агент
    +7 (938) Показать номер
    Посмотреть контакты
    Производственное помещение в Московская область, Солнечногорск ... - Фото 1
    Производственное помещение в Московская область, Солнечногорск ... - Фото 2
    Уникальный номер помещения.Современный производственно-складской комплекс формата light industrialУдобное расположение: 41 км. до МКАД.Добавьте объявление в избранное, чтобы не упустить выгодное предложение Потолок 8 м.Ровный бетонный пол с антипылевым...
    • 1/1 эт.
    175 856 000 Р
    Агент
    +7 (980) Показать номер
    Посмотреть контакты
    Производственное помещение в Москва пер. Любучанский, 1к3 (1426 м) - Фото 1
    Производственное помещение в Москва пер. Любучанский, 1к3 (1426 м) - Фото 2
    991930-wi . Предлагается складское помещение общей площадью 1426 кв. м. находящееся в составе производственно-складского комплекса в НАО. 1, 2, 3 этаж. Преимущества: Объект расположен в Новой Москве вблизи аэропорта Остафьево. 14 км от МКАД и 3 км от...
    • 1/3 эт.
    184 845 250 Р
    Агент
    +7 (938) Показать номер
    Посмотреть контакты

    Не нашли подходящего объявления?

    Оставьте заявку, и наши риэлторы подберут производственное помещение в районе Москвы

    (0)