790 384 000 Р 10 178 800 $ или 8 589 900

Информация об помещении

3
Этаж

Состояние и оснащение

Количество этажей
4
Развернуть
Агент
+7 (986) 364-49-36
Начать чат с агентом

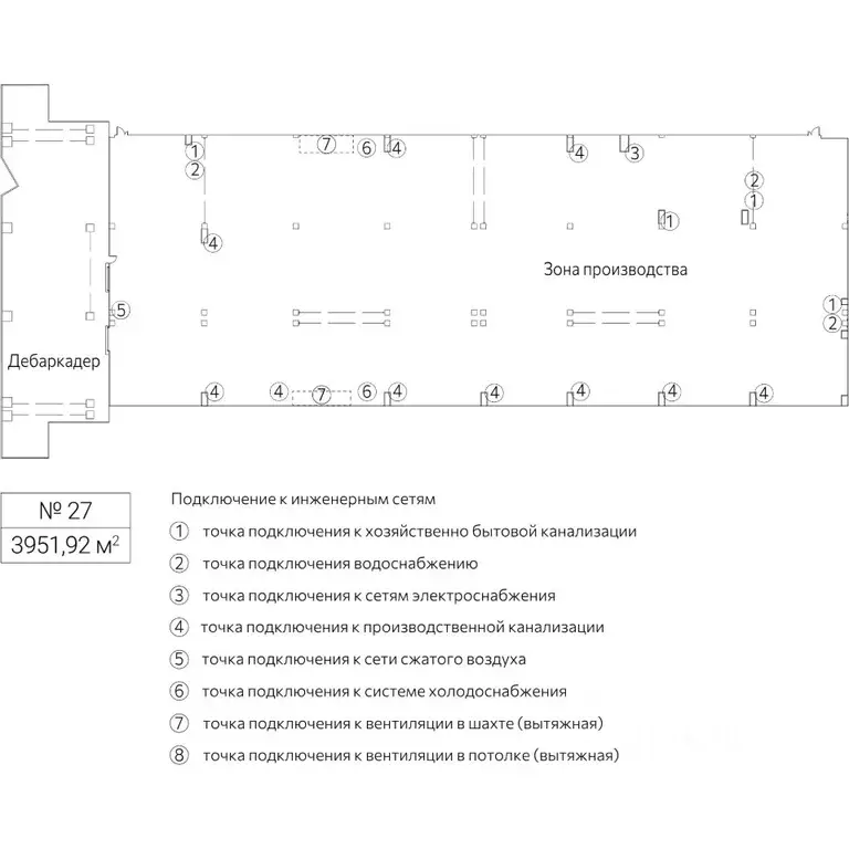
Производственное помещение в Москва Рябиновая ул., 42АС10 (3952 м)

Индустриальный парк Рябиновая 42 — современный производственно-логистический комплекс внутри МКАД, созданный для бизнеса пищевой и лёгкой промышленности. Удобное расположение рядом с ТТК, МКАД и федеральными трассами обеспечивает быстрый доступ из любой точки Москвы и области.Многоуровневые производственные и складские помещения позволяют заезд крупнотоннажного транспорта на второй этаж, а малотоннажного — до четвёртого. Продуманная парковка, умное светодиодное освещение и комфортная инфраструктура экономят время и повышают эффективность работы.Инвестиционная привлекательность: рост стоимости актива — 17,5 за первые два года, прогнозируемая доходность аренды — 8,75 годовых.Адрес: Москва, ул. Рябиновая, 42/1, 5 минут от м. Озёрная на автомобиле.Сдача — III квартал 2027 года.

Читать полностью
    Позвонить Написать
    790 384 000 Р10 178 800 $ или 8 589 900
    Агент
    +7 (986) 364-49-36
    Начать чат с агентом
    Похожие предложения
    Производственное помещение в Москва Рябиновая ул., 42АС10 (3252 м) - Фото 1
    Производственное помещение в Москва Рябиновая ул., 42АС10 (3252 м) - Фото 2
    Индустриальный парк Рябиновая 42 — современный производственно-логистический комплекс внутри МКАД, созданный для бизнеса пищевой и лёгкой промышленности. Удобное расположение рядом с ТТК, МКАД и федеральными трассами обеспечивает быстрый доступ из любой...
    • 1/4 эт.
    780 417 600 Р
    Агент
    +7 (986) Показать номер
    Посмотреть контакты
    Продажа производственного помещения, Новосходненское ш. - Фото 1
    Продажа производственного помещения, Новосходненское ш. - Фото 2
    Продажа производственного помещения, Новосходненское ш. - Фото 3
    Продажа производственного помещения, Новосходненское ш. - Фото 4
    Продажа производственного помещения, Новосходненское ш. - Фото 5
    Продажа производственного помещения, Новосходненское ш. - Фото 6
    Продажа производственного помещения, Новосходненское ш. - Фото 7
    Продажа производственного помещения, Новосходненское ш. - Фото 8
    Продажа производственного помещения, Новосходненское ш. - Фото 9
    Продажа производственного помещения, Новосходненское ш. - Фото 10
    общая площадь 5120м², полезная площадь 5120м²

    Арт. Предлагается к продаже современное производственно-складское помещение в новом производственном кластере (комплексе) формата «Light industrial» в 8 км от МКАД! Комплекс состоит из двух трехэтажных блоков, разделенных на отдельные трехэтажные помещения...
    • 5 120 м²
    • 1-й эт.
    793 600 000 Р
    PRO
    +7 (495) Показать номер
    Агентство
    ИП Захарова
    Посмотреть контакты
    Производственное помещение в Москва Новосходненское ш., 5А (5120 м) - Фото 1
    Производственное помещение в Москва Новосходненское ш., 5А (5120 м) - Фото 2
    Арт.Предлагается к продаже современное производственно-складское помещение в новом производственном кластере (комплексе) формата Light industrial в 8 км от МКАД Комплекс состоит из двух трехэтажных блоков, разделенных на отдельные трехэтажные помещения...
    • 1/3 эт.
    793 600 000 Р
    Агент
    +7 (915) Показать номер
    Посмотреть контакты
    Производственное помещение в Алтай, Усть-Коксинский район, с. ... - Фото 1
    Производственное помещение в Алтай, Усть-Коксинский район, с. ... - Фото 2
    Арт.Продаю мараловодческий комплекс. Земли 2700 ГА в собственности, поголовье 1500 маралов. Хозяйство расположено в одном из красивейших регионов Российской Федерации Республике Алтай. Цель выращивания и содержания марала - добыча панта. Пант это молодые...
    • 1/1 эт.
    793 000 000 Р
    Агент
    +7 (983) Показать номер
    Посмотреть контакты
    Производственное помещение в Московская область, Подольск Львовский ... - Фото 1
    Производственное помещение в Московская область, Подольск Львовский ... - Фото 2
    Арт.Продажа. Коммерческая недвижимость. Львовский, Варшавское ш, 30 км от МКАД. Производственно-складской комплекс 9.500 м2, тёплый, Н = 4 9 м.Электрич. 1 МВт. Отопление своя газовая котельная. Водопровод, канализация центральные.Кран-балки на 3,2...
    • 1/1 эт.
    790 000 000 Р
    Агент
    +7 (910) Показать номер
    Посмотреть контакты

    Не нашли подходящего объявления?

    Оставьте заявку, и наши риэлторы подберут производственное помещение в районе Москвы

    (0)