809 292 000 Р 10 422 300 $ или 8 795 400

Информация об помещении

1
Этаж

Состояние и оснащение

Количество этажей
4
Развернуть
Агент
+7 (986) 364-49-36
Начать чат с агентом

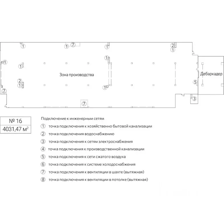
Производственное помещение в Москва Рябиновая ул., 42АС10 (3372 м)

Индустриальный парк Рябиновая 42 — современный производственно-логистический комплекс внутри МКАД, созданный для бизнеса пищевой и лёгкой промышленности. Удобное расположение рядом с ТТК, МКАД и федеральными трассами обеспечивает быстрый доступ из любой точки Москвы и области.Многоуровневые производственные и складские помещения позволяют заезд крупнотоннажного транспорта на второй этаж, а малотоннажного — до четвёртого. Продуманная парковка, умное светодиодное освещение и комфортная инфраструктура экономят время и повышают эффективность работы.Инвестиционная привлекательность: рост стоимости актива — 17,5 за первые два года, прогнозируемая доходность аренды — 8,75 годовых.Адрес: Москва, ул. Рябиновая, 42/1, 5 минут от м. Озёрная на автомобиле.Сдача — III квартал 2027 года.

Читать полностью
    Позвонить Написать
    809 292 000 Р10 422 300 $ или 8 795 400
    Агент
    +7 (986) 364-49-36
    Начать чат с агентом
    Похожие предложения
    Производственное помещение в Москва Рябиновая ул., 42АС10 (4031 м) - Фото 1
    Производственное помещение в Москва Рябиновая ул., 42АС10 (4031 м) - Фото 2
    Индустриальный парк Рябиновая 42 — современный производственно-логистический комплекс внутри МКАД, созданный для бизнеса пищевой и лёгкой промышленности. Удобное расположение рядом с ТТК, МКАД и федеральными трассами обеспечивает быстрый доступ из любой...
    • 3/4 эт.
    806 294 000 Р
    Агент
    +7 (986) Показать номер
    Посмотреть контакты
    Производственное помещение в Московская область, Ленинский городской ... - Фото 1
    Производственное помещение в Московская область, Ленинский городской ... - Фото 2
    Уникальный номер помещения.Строительство современного производственно-складского комплекса класса А формата light industrialУдобное расположение: 6 км. до МКАД.Добавьте объявление в избранное, чтобы не упустить выгодное предложение Высота потолка 8 м.Ровный...
    • 1/2 эт.
    807 472 050 Р
    Агент
    +7 (980) Показать номер
    Посмотреть контакты
    Производственное помещение в Челябинская область, Челябинск пос. ... - Фото 1
    Производственное помещение в Челябинская область, Челябинск пос. ... - Фото 2
    Арт.Предлагается на продажу производственно складской комплекс в г. Челябинск ( В объявлении адрес указан условный Все подробности по телефону.)Идеально подходящий для расширения вашего бизнеса или запуска нового производства.Комплекс состоит из:Общая...
    • 1/1 эт.
    820 000 000 Р
    Агент
    +7 (982) Показать номер
    Посмотреть контакты
    ID 22743Более 400 производственных объектов на сайте компании IRES GROUP.Бесплатно подберем производственные площади в любом регионе РФ.Реализуем объекты по ценам собственников. Без комиссии. Продается производственно-складской комплекс общей площадью...
    • 1/1 эт.
    800 000 000 Р
    Агент
    +7 (986) Показать номер
    Посмотреть контакты

    Не нашли подходящего объявления?

    Оставьте заявку, и наши риэлторы подберут производственное помещение в районе Москвы

    (0)