Россия, Москва, 6-й Новоподмосковный переулок, 3
м. Войковская, 3 мин. транспортом
68 000 000 Р 801 500 $ или 701 600

Информация о помещении и здании

250.5 м2
Площадь
1
Этаж
17
Этажность

Состояние и оснащение

Планировка
коридорно-кабинетная
Интернет
есть

Дополнительная информация

Интернет
есть
Развернуть
Агент
Татьяна Берестовская
+7 (933) 908-00-75
Начать чат с агентом

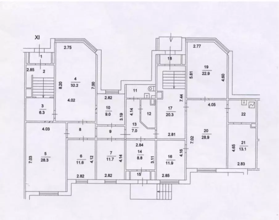
Продажа офиса 250.5 м2

Продается отличный офис 250,5 м2 у метро Войковская!
Идеально подходит для учебного центра, образовательной организации или другого бизнеса, требующего просторных помещений. Есть надежные арендаторы!
Характеристики:
- Площадь: 250,5 м2
- Этаж: 1-й, отдельный вход
- Высота потолков: 2,64 м
- Класс здания: B
- Ремонт: косметический
- Вентиляция: естественная
- Кондиционирование: местное
- Отопление: центральное
- Сигнализация: установлена
- Санузлы: 3
- Транспортная доступность: 12 минут пешком до метро Войковская, рядом остановки общественного транспорта.
Преимущества:
- Просторное помещение, легко адаптируемое под различные нужды.
- Отличный вариант для учебных заведений благодаря удобному расположению и планировке.
- Возможность приобрести готовый арендный бизнес.
- Развитая инфраструктура района.
Звоните прямо сейчас, чтобы узнать подробности и договориться о просмотре!

Читать полностью

    Для того, чтобы купить офис площадью 250 кв. метров по адресу: САО, м. Войковская, 6-й Новоподмосковный переулок, 3, позвоните по телефону +7 (933) 908-00-75. Торопитесь! Объявление №601864239 о продаже офиса площадью 250 кв. метров опубликовано Вчера.

    Позвонить Написать
    68 000 000 Р801 500 $ или 701 600
    Агент
    Татьяна Берестовская
    +7 (933) 908-00-75
    Начать чат с агентом
    Похожие предложения
    Продажа офиса 135.6 м2 - Фото 1
    Продажа офиса 135.6 м2 - Фото 2
    Продажа офиса 135.6 м2 - Фото 3
    Продажа офиса 135.6 м2 - Фото 4
    Продажа офиса 135.6 м2 - Фото 5
    Продажа офиса 135.6 м2 - Фото 6
    Продажа офиса 135.6 м2 - Фото 7
    Продажа офиса 135.6 м2 - Фото 8
    Продажа офиса 135.6 м2 - Фото 9
    Продажа офиса 135.6 м2 - Фото 10
    Продажа офиса 135.6 м2 - Фото 11
    Продажа офиса 135.6 м2 - Фото 12
    Продажа офиса 135.6 м2 - Фото 13
    Продажа офиса 135.6 м2 - Фото 14
    Продажа офиса 135.6 м2 - Фото 15
    Продажа офиса 135.6 м2 - Фото 16
    Продажа офиса 135.6 м2 - Фото 17
    реализуемая площадь 135.6м², 17-й этаж, всего 27 этажей

    Рассрочка 0% В проекте уже возведен монолит. Ведутся инженерные и фасадные работы. Продается офисное помещение класса «А» площадью 135,6 м2 в ультрасовременном комплексе бизнес-класса - ЭМОУШН от ГК ОСНОВА, расположенном в престижном районе Хорошёво-Мнёвники....
    • 135.6 м²
    • A
    • 17/27 эт.
    • парковка
    67 393 200 Р
    Агент
    +7 (495) Показать номер
    Посмотреть контакты
    Продажа офиса 145.9 м2 - Фото 1
    Продажа офиса 145.9 м2 - Фото 2
    Продажа офиса 145.9 м2 - Фото 3
    Продажа офиса 145.9 м2 - Фото 4
    Продажа офиса 145.9 м2 - Фото 5
    Продажа офиса 145.9 м2 - Фото 6
    Продажа офиса 145.9 м2 - Фото 7
    Продажа офиса 145.9 м2 - Фото 8
    Продажа офиса 145.9 м2 - Фото 9
    Продажа офиса 145.9 м2 - Фото 10
    Продажа офиса 145.9 м2 - Фото 11
    Продажа офиса 145.9 м2 - Фото 12
    Продажа офиса 145.9 м2 - Фото 13
    Продажа офиса 145.9 м2 - Фото 14
    Продажа офиса 145.9 м2 - Фото 15
    Продажа офиса 145.9 м2 - Фото 16
    Продажа офиса 145.9 м2 - Фото 17
    реализуемая площадь 145.9м², 8-й этаж, всего 27 этажей

    Рассрочка 0% В проекте уже возведен монолит. Ведутся инженерные и фасадные работы. Продается офисное помещение класса «А» площадью 145,9 м2 в ультрасовременном комплексе бизнес-класса - ЭМОУШН от ГК ОСНОВА, расположенном в престижном районе Хорошёво-Мнёвники....
    • 145.9 м²
    • A
    • 8/27 эт.
    • парковка
    68 573 000 Р
    Агент
    +7 (495) Показать номер
    Посмотреть контакты
    м. Чкаловская, Б. Полуярославский пер., 222 м2, часть здания (ном. ... - Фото 1
    м. Чкаловская, Б. Полуярославский пер., 222 м2, часть здания (ном. ... - Фото 2
    м. Чкаловская, Б. Полуярославский пер., 222 м2, часть здания (ном. ... - Фото 3
    м. Чкаловская, Б. Полуярославский пер., 222 м2, часть здания (ном. ... - Фото 4
    м. Чкаловская, Б. Полуярославский пер., 222 м2, часть здания (ном. ... - Фото 5
    общая площадь офисного здания 222м², реализуемая площадь 222м², 1-й этаж, всего 2 этажа

    Продается помещение первого этажа 222 м2 отдельного стоящего двухэтажного особняка. Год постройки - 1880, жб перекрытия, кирпичные стены. На данный момент помещение сдано в аренду. 7 минут от станции метро Чкаловская. Потолок 3 метра. Коммуникации: вода...
    • 222 м²
    • 1/2 эт.
    68 000 000 Р
    Агент
    +7 (968) Показать номер
    Агентство
    Телус
    Посмотреть контакты
    Офис (250.5 м) - Фото 1
    Офис (250.5 м) - Фото 2
    1-й этаж, всего 17 этажей

    Продается отличный офис 250,5 м2 у метро Войковская Идеально подходит для учебного центра, образовательной организации или другого бизнеса, требующего просторных помещений. Есть надежные арендаторы Характеристики:- Площадь: 250,5 м2- Этаж: 1-й, отдельный...
    • 1/17 эт.
    68 000 000 Р
    Агент
    +7 (984) Показать номер
    Посмотреть контакты
    Офис (250.5 м) - Фото 1
    Офис (250.5 м) - Фото 2
    1-й этаж, всего 17 этажей

    Продается отличный офис 250,5 м у метро Войковская Идеально подходит для учебного центра, образовательной организации или другого бизнеса, требующего просторных помещений. Есть надежные арендаторы Характеристики:- Площадь: 250,5 м- Этаж: 1-й, отдельный...
    • 1/17 эт.
    68 000 000 Р
    Агент
    +7 (966) Показать номер
    Посмотреть контакты

    Не нашли подходящего объявления?

    Оставьте заявку, и наши риэлторы подберут офис в районе Москвы

    (0)