600 000 000 Р 7 764 600 $ или 6 572 000

Информация о помещении и здании

2365.4 м2
Площадь
2365.4 м2
Общая площадь
2
Этаж
9
Этажность
Развернуть
Агент
Елена
+7 (903) 170-66-70
Начать чат с агентом

Продажа офиса, м. Павелецкая, ул. Летниковская

Продажа офиса в БЦ Святогор II. Класс В+
ЦАО, район Замоскворечье.
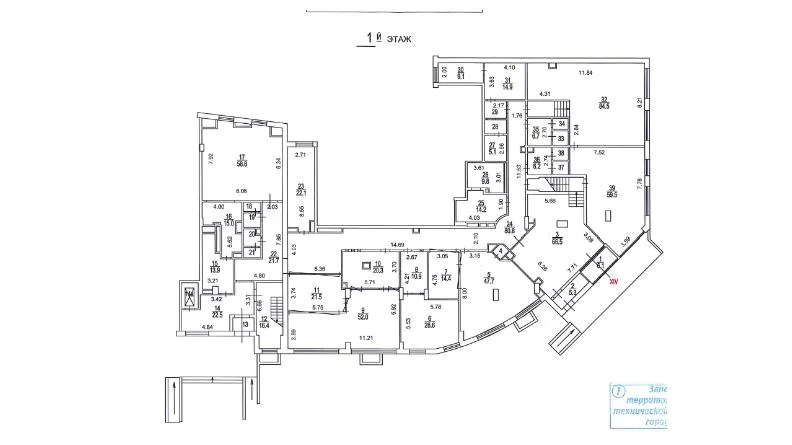
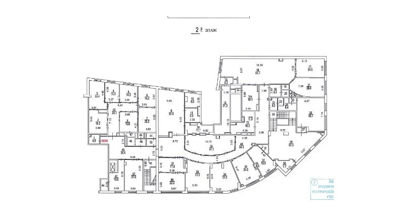
Предлагаются к продаже офисные помещения на 2-м и 3-м этажах, общая площадь 2365,4 кв.м.
2-й этаж - 1189 кв.м, 3-й этаж - 1176,4 кв.м. Планировка смешанная, все офисы - с полностью выполненной внутренней отделкой.
По состоянию на I квартал 2025 года офисы сданы в аренду нескольким арендаторам (КДА, возможно освобождение офисов в течение 1-3 месяцев)
Вакантные офисы отсутствуют.
БЦ имеет развитую инфраструктуру: конференц-зал, кафе, ресторан, салон красоты, фитнес-клуб, услуги, сопутствующие бизнесу, многоуровневый паркинг.
БЦ оборудован современными инженерными системами. Центральная система управления зданием: инженерная система управления зданием осуществляется с центрального диспетчерского пункта в автоматизированном режиме; круглосуточный контроль и управление параметрами жизнеобеспечения. Современные скоростные грузопассажирские лифты Schindler (4 шт): скорость движения 1.6 м/сек; грузоподъемность 630 и 1000 кг.
Интегрированная центральная система кондиционирования, вентиляции и отопления: система приточно-вытяжной вентиляции с двойной системой очистки, системой подогрева или охлаждения воздуха; центральная система кондиционирования с регулированием температуры в каждом отдельном помещении для поддержания комфортных условий в разные сезоны (температурный режим 18-24 °С); воздухообмен 60 м/час на 10 кв.м.
Мощность электроснабжения 50 Вт/ м; взаиморезервируемые кабельные линии.
Автоматизированные системы спринклерного пожаротушения. Система дымоудаления. Система оповещения в каждом помещении.
Многоуровневая охранная сигнализация и видеонаблюдение для всех входных групп.
Контроль и управление доступом в здание с использование электронных пропусков.
Современные телекоммуникации на основе оптико-волоконных кабельных линий связи.
БЦ находится рядом с основными транспортными узлами: Садовое кольцо - 1 км, ТТК - 5 км, кольцевая линия Московского метрополитена - 800 м, Павелецкий вокзал - 800 м.
Прямое сообщение с международным аэропортом Домодедово на скоростном поезде-экспрессе
Престижное месторасположение в одном из ведущих центров деловой и культурной активности столицы Замоскворечье.
Здание входит в состав современного делового квартала Святогор I-V. Объект № 551309Номер объекта: 5/551309/310

Читать полностью

    Для того, чтобы купить офис площадью 2365 кв. метров по адресу: ЦАО, Замоскворечье, м. Павелецкая, ул. Летниковская, 10 с2, позвоните по телефону +7 (903) 170-66-70. Торопитесь! Объявление №601863414 о продаже офиса площадью 2365 кв. метров опубликовано Сегодня.

    Позвонить Написать
    600 000 000 Р7 764 600 $ или 6 572 000
    Агент
    Елена
    +7 (903) 170-66-70
    Начать чат с агентом
    Похожие предложения
    Продажа офиса, м. Кропоткинская, Обыденский 1-й пер. - Фото 1
    Продажа офиса, м. Кропоткинская, Обыденский 1-й пер. - Фото 2
    Продажа офиса, м. Кропоткинская, Обыденский 1-й пер. - Фото 3
    Продажа офиса, м. Кропоткинская, Обыденский 1-й пер. - Фото 4
    Продажа офиса, м. Кропоткинская, Обыденский 1-й пер. - Фото 5
    Продажа офиса, м. Кропоткинская, Обыденский 1-й пер. - Фото 6
    Продажа офиса, м. Кропоткинская, Обыденский 1-й пер. - Фото 7
    общая площадь офисного здания 866м², реализуемая площадь 866м², 1-й этаж, всего 5 этажей

    ЦАО, р-н Хамовники. Продажа офисного помещения, расположенного в цоколе и на 1-ом этаже 5-ти этажного монолитно-кирпичного жилого комплекса 1999 г. постройки. Отличная транспортная доступность, 5 минут до станции метро Кропоткинская. Рядом пролегают такие...
    • 866 м²
    • 1/5 эт.
    600 000 000 Р
    Агент
    +7 (903) Показать номер
    Посмотреть контакты
    Офис в Москва наб. Пресненская, 6с2 (663 м) - Фото 1
    Офис в Москва наб. Пресненская, 6с2 (663 м) - Фото 2
    48-й этаж, всего 59 этажей

    Продаём офис в бизнес-центре Башня Империя по адресу: Москва, Пресненская набережная, 6с2. Рабочих мест: от 83 до 147*.Площадь: 663 м2.Планировка: смешанная.Состояние: готово к въезду.Цена за м2:Стоимость:Налог: УСН.Собственник: физ. лицо.Этаж: 47,...
    • 48/59 эт.
    596 700 000 Р
    Агент
    +7 (985) Показать номер
    Посмотреть контакты
    Офис в Москва наб. Пресненская, 6с2 (664 м) - Фото 1
    Офис в Москва наб. Пресненская, 6с2 (664 м) - Фото 2
    48-й этаж, всего 59 этажей

    Продаём офис в бизнес-центре Башня Империя по адресу: Москва, Пресненская набережная, 6с2. Рабочих мест: от 83 до 147*.Площадь: 664 м2.Планировка: открытая.Состояние: готово к въезду.Цена за м2:Стоимость:Налог: УСН.Собственник: физ. лицо.Этаж: 47, 48...
    • 48/59 эт.
    597 600 000 Р
    Агент
    +7 (985) Показать номер
    Посмотреть контакты
    Офис (1415.2 м) - Фото 1
    Офис (1415.2 м) - Фото 2
    8-й этаж, всего 31 этаж

    Продается офис в БЦ Omni Tower, общей площадью 1 415.2 м, на 8 этаже. Omni Tower - это флагманский бизнес-центр класса А от девелопера . Sense, создающего пространства будущего, где технологии, комфорт и эстетика формируют новое качество деловой среды....
    • 8/31 эт.
    597 738 048 Р
    Агент
    +7 (963) Показать номер
    Посмотреть контакты
    Продажа офиса 1727.5 м2 - Фото 1
    Продажа офиса 1727.5 м2 - Фото 2
    Продажа офиса 1727.5 м2 - Фото 3
    Продажа офиса 1727.5 м2 - Фото 4
    Продажа офиса 1727.5 м2 - Фото 5
    Продажа офиса 1727.5 м2 - Фото 6
    Продажа офиса 1727.5 м2 - Фото 7
    Продажа офиса 1727.5 м2 - Фото 8
    Продажа офиса 1727.5 м2 - Фото 9
    Продажа офиса 1727.5 м2 - Фото 10
    Продажа офиса 1727.5 м2 - Фото 11
    Продажа офиса 1727.5 м2 - Фото 12
    Продажа офиса 1727.5 м2 - Фото 13
    Продажа офиса 1727.5 м2 - Фото 14
    Продажа офиса 1727.5 м2 - Фото 15
    Продажа офиса 1727.5 м2 - Фото 16
    реализуемая площадь 1727.5м², 1-й этаж, всего 21 этаж, коридорно-кабинетная планировка

    Предложение, на которое стоит обратить Ваше внимание! Прямая продажа от собственника! Офис расположен в элитном ЖК "Корона Эйр" и имеет отдельный вход не только в здание, но и на территорию ЖК. Двухэтажный офис общей площадью 1727,5 кв.м. Высота потолков...
    • 1 727.5 м²
    • 1/21 эт.
    600 000 000 Р
    Агент
    +7 (932) Показать номер
    Посмотреть контакты

    Не нашли подходящего объявления?

    Оставьте заявку, и наши риэлторы подберут офис в районе Москвы

    (0)