298 276 000 Р 3 839 200 $ или 3 270 300

Информация о помещении и здании

677.9 м2
Площадь
677.9 м2
Общая площадь
3
Этаж
13
Этажность
Развернуть
Агент
Наталья
+7 (903) 170-18-68
Начать чат с агентом

Продажа офиса, м. Тульская, Холодильный пер.

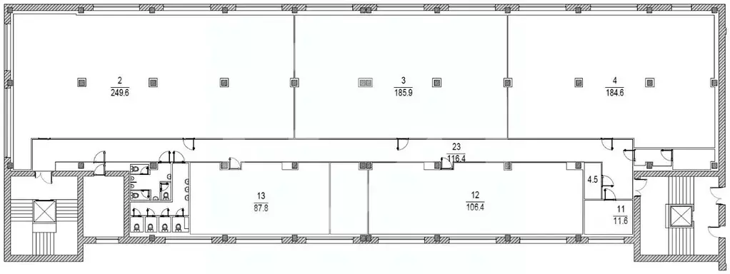
Продажа офиса в новом БЦ класса А, в 5 минутах пешком от м.Тульская. Площадь офиса 677,9 м2. Офис занимает половину 3-го этажа новой Башни Рябов на территории Товарищества Рябовской мануфактуры. Планировка свободная. Высота потолков 3,7 м. Панорамное остекление обеспечивает высокий уровень освещенности офиса. Наличие мокрой зоны с выведенными коммуникациями для обустройства кухни и с/у.
Офис подходит для размещения представительского офиса.
Башня Рябов – 13-ти этажное здание с современной инженерией, центральными коммуникациями, высокоскоростными лифтами. Наземная бесплатная парковка на 300 машиномест. Общая площадь бизнес-центра Башня Рябов 23 000 м2, арендопригодная площадь - 16 000 м2. Есть 3-х уровневый подземный паркинг на 150 м/м.
Деловой квартал Товарищество Рябовской Мануфактуры - это деловой и творческий кластер общей площадью более 55 000 м2, в состав которого входят 16 зданий переменной этажности. Среди арендаторов делового квартала – офисы, кафе и рестораны, шоу-румы одежды и мебели, мастерские и сервисный центр, салоны красоты и тату-салоны, интернет-магазины, логистическая компания, отель и т.д.
В ближайшем окружении находятся новые ЖК премиум и бизнес-класса, такие как Deco Residence, Данилов дом, Павелецкая Сити, ЖК Зиларт, ЖК Донской Олимп. Университеты, расположенные рядом - РЭУ им. Плеханова, Школа Дизайна, Институт экономики и бизнеса.
БЦ Башня Рябов вводится в эксплуатацию - 4 кв. 2026 г.
Объект № 550071Номер объекта: 5/550071/310

Читать полностью

    Для того, чтобы купить офис площадью 677 кв. метров по адресу: ЮАО, Даниловский, м. Тульская, Холодильный пер., 3 к 1 с 1, позвоните по телефону +7 (903) 170-18-68. Торопитесь! Объявление №601858227 о продаже офиса площадью 677 кв. метров опубликовано Вчера.

    Позвонить Написать
    298 276 000 Р3 839 200 $ или 3 270 300
    Агент
    Наталья
    +7 (903) 170-18-68
    Начать чат с агентом
    Похожие предложения
    Офис в Москва Холодильный пер., 3к1с1 (649 м) - Фото 1
    Офис в Москва Холодильный пер., 3к1с1 (649 м) - Фото 2
    3-й этаж, всего 13 этажей

    Показ в удобное время. С АГЕНТАМИ РАБОТАЕМ И ПЛАТИМ. Новый премиальный Бизнес-центр класса А расположен на территории бывшей мануфактуры. Непосредственная близость от метро - в 2-х минутах от Тульская, 10 минут до центра города и 450 метров до ТТК. Собственный...
    • 3/13 эт.
    292 050 000 Р
    Агент
    +7 (933) Показать номер
    Посмотреть контакты
    Офис в Москва Холодильный пер., 3к1с1 (677 м) - Фото 1
    Офис в Москва Холодильный пер., 3к1с1 (677 м) - Фото 2
    3-й этаж, всего 13 этажей

    Показ в удобное время. С АГЕНТАМИ РАБОТАЕМ И ПЛАТИМ. Новый премиальный Бизнес-центр класса А расположен на территории бывшей мануфактуры. Непосредственная близость от метро - в 2-х минутах от Тульская, 10 минут до центра города и 450 метров до ТТК. Собственный...
    • 3/13 эт.
    304 650 000 Р
    Агент
    +7 (933) Показать номер
    Посмотреть контакты
    Офис в Москва Новочеремушкинская ул., 71/32 (1209 м) - Фото 1
    Офис в Москва Новочеремушкинская ул., 71/32 (1209 м) - Фото 2
    1-й этаж, всего 21 этаж

    Элитный жилой комплекс расположен на юго-западе Москвы, район Черемушки. Район характеризуется благоприятной экологической обстановкой и развитой инфраструктурой. Рядом находится знаменитый Воронцовский парк.Налоговая: 27. Лифты: Есть. Вентиляция: Приточно-вытяжная....
    • 1/21 эт.
    290 160 000 Р
    Агент
    +7 (933) Показать номер
    Посмотреть контакты
    Офис в Москва Большая Новодмитровская ул., 23С1 (974 м) - Фото 1
    Офис в Москва Большая Новодмитровская ул., 23С1 (974 м) - Фото 2
    4-й этаж, всего 7 этажей

    1009347 . Предлагаем офисное помещение площадью 973,6 кв. м, расположенное на 4 этаже бизнес-центра Стрелецкая Слобода Преимущества объекта:- Бизнес-центр класса В+- Шаговая доступность от станции метро Савёловская и Дмитровская (10 минут пешком)- Этаж:...
    • 4/7 эт.
    292 080 000 Р
    Агент
    +7 (938) Показать номер
    Посмотреть контакты
    Офис в Москва ул. Бутлерова, 17 (900 м) - Фото 1
    Офис в Москва ул. Бутлерова, 17 (900 м) - Фото 2
    7-й этаж, всего 21 этаж

    Продаём Офис в бизнес-центре Нео Гео по адресу: Москва, улица Бутлерова, 17. Рабочих мест: от 113 до 200*.Площадь: 900 м2.Планировка: смешанная.Состояние: готово к въезду.Цена за м2:Стоимость:Налог: УСН.Собственник: физ. лицо.Этаж: 2, 5, 7 из 21.Охрана:...
    • 7/21 эт.
    301 157 500 Р
    Агент
    +7 (985) Показать номер
    Посмотреть контакты

    Не нашли подходящего объявления?

    Оставьте заявку, и наши риэлторы подберут офис в районе Москвы

    (0)