223 000 000 Р 2 748 200 $ или 2 386 900

Информация о помещении и здании

1228 м2
Площадь
3
Этажность
b
Класс здания
особняк
Тип здания

Состояние и оснащение

Помещений
1
Планировка
смешанная
Ремонт
стандартная офисная отделка
Развернуть
Копылов Роман Николаевич
PRO
+7 (909) 654-81-26
Профессионал AFY.ru с 2012 г.
Начать чат с агентом

Кирпичный особняк в готическом стиле

Здание продажа 1228 м2 в готическом стиле,
1 линия домов
м. Семеновская и ст.Измайлово (МЦК). Ул. Ткацкая
Представительное отдельно стоящее кирпичное здание 1905 года постройки, полная реконструкция была произведена в 2008 году.
Кабинетная планировка, типовой ремонт,
4 отдельных входа с первого этажа + 2 отдельных входа в цоколь. Здание полностью готово к въезду.
Земельный участок в аренде до 2065 года.
Приточно-вытяжная вентиляция, кондиционирование центральное, круглосуточная охрана, система пожаротушения, видеонаблюдение.
Цена 223 000 000 руб.
Продажа ЮЛ.

Читать полностью

    Для того, чтобы купить офис площадью 1228 кв. метров по адресу: м. Семеновская, ул. Ткацкая, позвоните по телефону +7 (909) 654-81-26. Торопитесь! Объявление №601855936 о продаже офиса площадью 1228 кв. метров опубликовано 15 марта 2026.

    Позвонить Написать
    223 000 000 Р2 748 200 $ или 2 386 900
    Копылов Роман Николаевич
    PRO
    +7 (909) 654-81-26
    Профессионал AFY.ru с 2012 г.
    Начать чат с агентом
    Похожие предложения
    Офис в Москва наб. Пресненская, 12 (300 м) - Фото 1
    Офис в Москва наб. Пресненская, 12 (300 м) - Фото 2
    24-й этаж, всего 97 этажей

    Продается офисное помещение на 24 этаже в МФК Башня Федерация Восток, А+ класса, которое находится по адресу: Пресненская наб., д. 12. Без комиссии для Покупателя ЛОКАЦИЯ:- Шаговая доступность от м. Деловой Центр, Выставочная. - МФК располагается в непосредственной...
    • 24/97 эт.
    225 000 000 Р
    Агент
    +7 (989) Показать номер
    Посмотреть контакты
    Офис в Москва Садовническая ул., 41С1 (900 м) - Фото 1
    Офис в Москва Садовническая ул., 41С1 (900 м) - Фото 2
    1-й этаж, всего 3 этажа

    Здание расположено в районе Замоскворечье, в пешей доступности от метро. Первая линия Садовнической улицы. Объект культурного наследия регионального значения. Городская купеческая усадьба Иконниковых-Н.П. Аваева, XIX век. Парковка во дворе здания, въезд...
    • 1/3 эт.
    225 000 000 Р
    Агент
    +7 (933) Показать номер
    Посмотреть контакты
    Офис в Москва Афи Парк Воронцовский жилой комплекс, 2 (487 м) - Фото 1
    Офис в Москва Афи Парк Воронцовский жилой комплекс, 2 (487 м) - Фото 2
    17-й этаж, всего 21 этаж

    Офисное помещение 487.3 кв. м в бизнес-центре AFI PARK. Прямая продажа, без комиссии. Объект на стадии активного строительства, готовность ко въезду уточняется по запросу. Округ: Юго-Западный (ЮЗАО). Район: Обручевский. Характеристики:- Класс: A; - Арендопригодная...
    • 17/21 эт.
    211 145 272 Р
    Агент
    +7 (915) Показать номер
    Посмотреть контакты
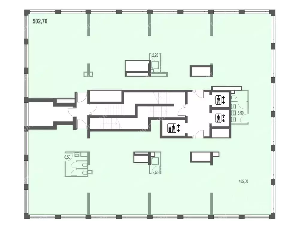
    Офис в Москва Афи Парк Воронцовский жилой комплекс, 2 (503 м) - Фото 1
    Офис в Москва Афи Парк Воронцовский жилой комплекс, 2 (503 м) - Фото 2
    21-й этаж, всего 21 этаж

    Офисное помещение 502.7 кв. м в бизнес-центре AFI PARK. Прямая продажа, без комиссии. Объект на стадии активного строительства, готовность ко въезду уточняется по запросу. Округ: Юго-Западный (ЮЗАО). Район: Обручевский. Характеристики:- Класс: A; - Арендопригодная...
    • 21/21 эт.
    222 068 142 Р
    Агент
    +7 (915) Показать номер
    Посмотреть контакты
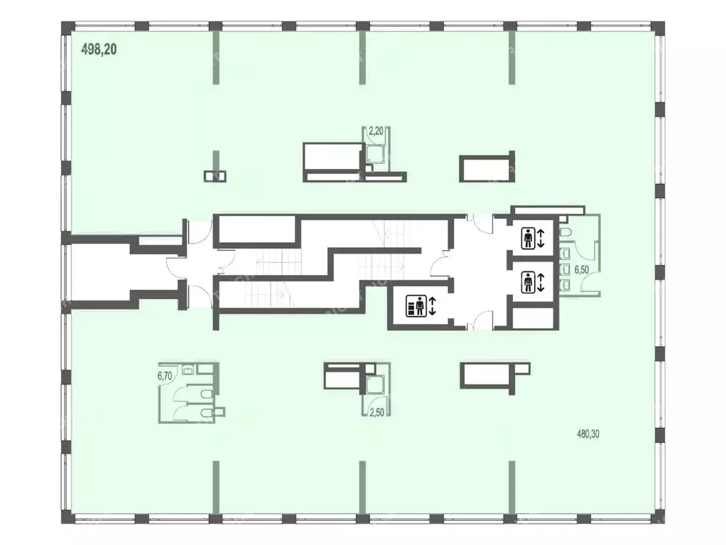
    Офис в Москва Афи Парк Воронцовский жилой комплекс, 2 (498 м) - Фото 1
    Офис в Москва Афи Парк Воронцовский жилой комплекс, 2 (498 м) - Фото 2
    19-й этаж, всего 21 этаж

    Офисное помещение 498.2 кв. м в бизнес-центре AFI PARK. Прямая продажа, без комиссии. Объект на стадии активного строительства, готовность ко въезду уточняется по запросу. Округ: Юго-Западный (ЮЗАО). Район: Обручевский. Характеристики:- Класс: A; - Арендопригодная...
    • 19/21 эт.
    217 974 233 Р
    Агент
    +7 (915) Показать номер
    Посмотреть контакты

    Не нашли подходящего объявления?

    Оставьте заявку, и наши риэлторы подберут офис в районе Москвы

    (0)