57 220 000 Р 764 100 $ или 651 900

Информация о помещении и здании

4
Этаж
4
Этажность
Развернуть
Агент
+7 (985) 633-34-29
Начать чат с агентом

Офис в Москва ул. Петра Алексеева, 12с1 (139 м)

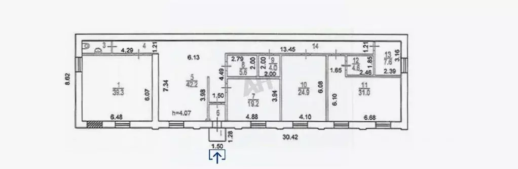
Просторный офис с антресолью общей площадью 138,6 кв. м. в камерном историческом здании из красного кирпича - здании Московской шерстоткацкой мануфактуры. 1 уровень - 99,5 кв.м. с высотой потолка 3,96 м. 2 уровень - 39,1 кв.м. с высотой потолка 3,08 м. Ориентирован на Северо-восток. Большие арочные окна, стены из оригинального красного кирпича, общая высота потолка 7,28 м. Предусмотрена мокрая точка. Офис оснащен современными системами комфорта - центральное кондиционирование, мощная приточно-вытяжная вентиляция.Креативный деловой центр Мануфактура XIX - это современные офисы и ретейл в камерном историческом здании на Кутузовском. Расположен в главном корпусе Московской шерстоткацкой мануфактуры 1900 года: сейчас это объект культурного наследия с самобытной архитектурой в сложившемся деловом районе. Широкий выбор офисов площадью от 29,1 до 246 кв. м со свободными планировками и потолками высотой от 4 м. Современный ретейл площадью от 24 кв. м со свободными планировками и потолками высотой от 3,2 до 4 м. У пространств на первом этаже отдельный вход с улицы и места для вывесок на фасаде. Девелопер проекта - Sminex, перфекционисты Fine Development. Компания создаёт совершенные дома: восхищающие, удобные, красивые, с наилучшим сервисом.

Читать полностью
    Позвонить Написать
    57 220 000 Р764 100 $ или 651 900
    Агент
    +7 (985) 633-34-29
    Начать чат с агентом
    Похожие предложения
    Офис в Москва Верейская ул., 29С29 (61 м) - Фото 1
    Офис в Москва Верейская ул., 29С29 (61 м) - Фото 2
    1-й этаж, всего 20 этажей

    Старт продаж Продаётся офисное помещение площадью 61.35 м на 1 этаже в новом бизнес-центре SET в башне K1. БЦ SET — современные офисы класса А от MR Office, расположенные в Можайском районе Западного административного округа Москвы на ул. Верейская. SET...
    • 1/20 эт.
    57 362 250 Р
    Агент
    +7 (985) Показать номер
    Посмотреть контакты
    Офис в Москва 4-й Рощинский проезд, 20С6 (205 м) - Фото 1
    Офис в Москва 4-й Рощинский проезд, 20С6 (205 м) - Фото 2
    1-й этаж, всего 2 этажа

    ЛотПредложение от Собственника Предлагается к продаже одноэтажное отдельно стоящее здание общей площадью 205,4 квадратных метра. Объект расположен на территории действующего офисно-складского комплекса. Земельный участок предоставляется на условиях аренды.Здание...
    • 1/2 эт.
    57 500 000 Р
    Агент
    +7 (968) Показать номер
    Посмотреть контакты
    м. Свиблово, Игарский Проезд, 520 м2, "Продажа офиса" (ном. объекта: ... - Фото 1
    м. Свиблово, Игарский Проезд, 520 м2, "Продажа офиса" (ном. объекта: ... - Фото 2
    м. Свиблово, Игарский Проезд, 520 м2, "Продажа офиса" (ном. объекта: ... - Фото 3
    м. Свиблово, Игарский Проезд, 520 м2, "Продажа офиса" (ном. объекта: ... - Фото 4
    м. Свиблово, Игарский Проезд, 520 м2, "Продажа офиса" (ном. объекта: ... - Фото 5
    м. Свиблово, Игарский Проезд, 520 м2, "Продажа офиса" (ном. объекта: ... - Фото 6
    общая площадь офисного здания 520м², реализуемая площадь 520м², 2-й этаж, всего 2 этажа

    Продаются офисные помещения общей площадью 520 м. кв. в расположенные на 2 этаже большого административного здания в Северо-Восточном Административном округе, в районе Свиблово, в шаговой доступности от метро, планировка смешанная, отделка офисная, своя...
    • 520 м²
    • 2/2 эт.
    57 200 000 Р
    Агент
    +7 (926) Показать номер
    Агентство
    Телус
    Посмотреть контакты
    Офис (205 м) - Фото 1
    Офис (205 м) - Фото 2
    1-й этаж, всего 2 этажа

    Лот №1085963 Предложение от Собственника Напишите нам в Ватсап, чтобы получить ПОДРОБНУЮ ПРЕЗЕНТАЦИЮ С ПЛАНИРОВКОЙ И ФОТОГРАФИЯМИ Предлагается к продаже одноэтажное отдельно стоящее здание общей площадью 205,4 квадратных метра. Объект расположен на...
    • 1/2 эт.
    57 500 000 Р
    Агент
    +7 (930) Показать номер
    Посмотреть контакты
    1-й этаж

    Продаётся офисное помещение общей площадью 205 кв.м. на Здание целиком этаже в бизнес-центре, расположенном по адресу Москва, проезд 4-й Рощинский, 20 стр 6, в 9 минутах пешком от метро Тульская. Планировка смешанная.Состояние помещения: Готово к въезду.Кондиционирование:...
    • 1-й эт.
    57 482 000 Р
    Агент
    +7 (966) Показать номер
    Посмотреть контакты

    Не нашли подходящего объявления?

    Оставьте заявку, и наши риэлторы подберут офис в районе Москвы

    (0)