873 135 000 Р 11 560 500 $ или 9 890 200

Информация о помещении и здании

7
Этаж
7
Этажность
Развернуть
Агент
+7 (985) 158-20-12
Начать чат с агентом

Офис в Москва Минская ул., 2Ж (1861 м)

Офис 1 861 м в бизнес-центре Виктори парк плаза (класс B+) - подходит для собственного бизнеса или сдачи в аренду.Рассчитаем доходность и поможем найти арендатора под этот объект.Ключевые параметры:Площадь: 1 861 м.Рабочие места: 156-413*.Планировка: кабинетная.Состояние: готов к въезду.Этаж: 3, 7 из 7.Налоговая: 29.Метро рядом: м. Минская в 6 минутах пешком, м. Поклонная в 15 минутах пешком. Помещение с функциональной кабинетной планировкой. Инженерные системы:Вентиляция: приточно-вытяжная.Кондиционирование: центральное.Охрана: круглосуточная охрана здания.Бизнес-центр Victory Park Plaza класса B+ расположен рядом с метро Минская.Удобный выезд на:Кутузовский проспект, Ломоносовский проспект, Мосфильмовская улица, улица Генерала Дорохова.Инфраструктура здания:Наземная парковка на 250 мест, кафе и несколько кофеен, 8 пассажирских лифтов.В пешей доступности:Парк Победы, набережная реки Сетунь.Юридические адреса обслуживаются в налоговой 29.Коммерческие условия:Стоимость:Цена за м:Налог: включая НДС.Тип договора: ДКПНБез комиссии.Этот лот состоит из нескольких помещений: 975 кв. м., 686 кв. м. и 200 кв. м.По данному объекту:Поможем рассчитать потенциальную доходность и окупаемость.Оценим возможный арендный поток по текущему рынку.При необходимости подберём арендатора.Если объект рассматривается для инвестиций:Подберём сопоставимые варианты в этом районе для сравнения.Поможем оценить ликвидность и перспективу перепродажи.Позвоните - организуем просмотр, пришлём презентацию и расчёты по доходности и вариантам использования объекта.*Количество рабочих мест рассчитано автоматически: от 4,5 до 8 м на человека.ID объекта: 040051

Читать полностью
    Позвонить Написать
    873 135 000 Р11 560 500 $ или 9 890 200
    Агент
    +7 (985) 158-20-12
    Начать чат с агентом
    Похожие предложения
    Офис в Москва Минская ул., 2Ж (2181 м) - Фото 1
    Офис в Москва Минская ул., 2Ж (2181 м) - Фото 2
    3-й этаж, всего 7 этажей

    Офис 2 181 м в бизнес-центре Виктори парк плаза (класс B+) - подходит для собственного бизнеса или сдачи в аренду.Рассчитаем доходность и поможем найти арендатора под этот объект.Ключевые параметры:Площадь: 2 181 м.Рабочие места: 182-484*.Планировка:...
    • 3/7 эт.
    877 150 000 Р
    Агент
    +7 (985) Показать номер
    Посмотреть контакты
    Офис в Москва наб. Пресненская, 8с1 (1143 м) - Фото 1
    Офис в Москва наб. Пресненская, 8с1 (1143 м) - Фото 2
    5-й этаж, всего 62 этажа

    832566. Предлагаем офисное помещение площадью 956.7 кв. м, расположенное в бизнес-центре Город Столиц Преимущества объекта: - Бизнес-центр класса А- Шаговая доступность от станции метро Деловой центр (2 минуты пешком)- Этаж: 5- Помещение предлагается...
    • 5/62 эт.
    880 000 000 Р
    Агент
    +7 (938) Показать номер
    Посмотреть контакты
    Офис в Москва ул. Нижние Мневники, 37Ас3 (1479 м) - Фото 1
    Офис в Москва ул. Нижние Мневники, 37Ас3 (1479 м) - Фото 2
    13-й этаж, всего 18 этажей

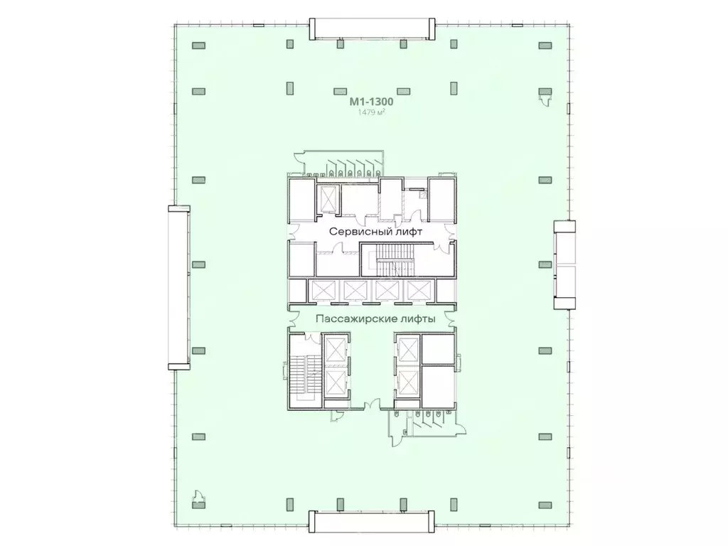
    Офисное помещение 1 479 кв. м в бизнес-центре STONE Мневники . Прямая продажа, без комиссии. Объект на стадии активного строительства, готовность ко въезду уточняется по запросу. Округ: Северо-Западный (СЗАО). Район: Хорошево-Мневники. Характеристики:-...
    • 13/18 эт.
    869 652 000 Р
    Агент
    +7 (915) Показать номер
    Посмотреть контакты
    Офис в Москва ул. Грузинский Вал, 3 (1246 м) - Фото 1
    16-й этаж, всего 24 этажа

    Офис площадью 1 246 м расположен на шестнадцатом этаже в бизнес-центре VALTRI. Помещение с открытой планировкой без отделки можно адаптировать под стиль любой компании. Установлены системы приточно-вытяжной вентиляции и центрального кондиционирования....
    • 16/24 эт.
    876 180 000 Р
    Агент
    +7 (986) Показать номер
    Посмотреть контакты
    Офис в Москва ул. Нижние Мневники, 37А (1479 м) - Фото 1
    Офис в Москва ул. Нижние Мневники, 37А (1479 м) - Фото 2
    13-й этаж, всего 18 этажей

    Уважаемый Покупатель, предлагаем Вам приобрести в БЦ STONE Мневники, башня М1 ( STONE Mnevniki, tower М1 ) офис 1479.0 м на 13 этаже в собственность на выгодных условиях.Приточно-вытяжная вентиляция. Центральное кондиционирование. Пожарная сигнализация....
    • 13/18 эт.
    869 652 000 Р
    Агент
    +7 (985) Показать номер
    Посмотреть контакты

    Не нашли подходящего объявления?

    Оставьте заявку, и наши риэлторы подберут офис в районе Москвы

    (0)