Россия, Москва, 1-й Варшавский проезд, 1Ас32
19 530 600 Р 258 600 $ или 221 200

Информация о помещении и здании

5
Этаж
13
Этажность
Развернуть
Агент
+7 (931) 889-01-32
Начать чат с агентом

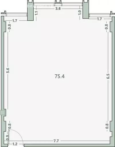
Офис (75.7 м)

В продаже офисное помещение площадью 75.70 кв. м. «Среда на Варшавском – это новый офисный комплекс класса А возле метро «Варшавская . Проект предлагает оптимальные условия для работы и развития стартапов, среднего или крупного бизнеса. Офисы будут встроены в будущий жилой кластер «Среда на Варшавском .Транспортная доступность и большое число жилых комплексов бизнес-класса вокруг обеспечивают интерес как к маленьким лотам для хоум-офисов, так и крупным площадям для бизнесов, которым надо разместить большое число сотрудников. Поэтому приобрести можно офисы от 38 кв. м и до целого этажа.Одновременная близость к транспортным артериям и природным объектам повышает ценность локации. Облик района будет обновляться и формироваться в ближайшие годы, а окружение Среды на Варшавском сформировано: строек вокруг не запланировано, пешеходный и автомобильный трафик будут только усиливаться.Транспортная доступность• 5 минут пешком до станции метро «Варшавская ;• Удобные выезды на Варшавское, Каширское шоссе и ЮВХ;• 15 минут на машине до ТТК;• Всего 20 минут до центра Москвы.БлагоустройствоОсобое преимущество бизнес-центра – благоустроенная территория с функциональными зонами: тихие лаунж-пространства, места для работы на свежем воздухе. Каждый сотрудник офиса или гость «Среды на Варшавском сможет с комфортом отдохнуть, не выходя за территорию комплекса. ИнфраструктураКлючевое преимущество БЦ — полное разделение потоков машин и людей. Въезды, паркинг, разгрузка, мусор и пожарные проезды — всё продумано. Для пешеходов предусмотрены зоны отдыха, зеленые барьеры из всесезонных насаждений.Помимо офисных зон, здесь будут представлены кафе и магазины, а первые этажи займут просторные лобби, сервисные компании и салоны. Площади на первых этажах также доступны для приобретения.Преимущества проекта• Современное и долговечное инженерное оснащение класса А.• Гибкая нарезка от 38 м. кв. до крупных лотов с окнами на две стороны.• 2 секции: 13 и 9 этажей.• Мокрые точки или полноценный санузлы в каждом помещении.• Архитектура от бюро IND.• 273 машино-места со станциями для электромобилей в 2-уровневом подземном паркинге.• 13 бесшумных лифтов, в том числе сервисные и пересадочные с паркинга.• Общественная терраса для отдыха с панорамным видом.• Стильные зоны лобби с высотой потолков до 8,6 метра.• Жилая застройка в ближайшем окружении и близость к метро: хороший потенциал спроса на коммерческие площади.

Читать полностью
    Позвонить Написать
    19 530 600 Р258 600 $ или 221 200
    Агент
    +7 (931) 889-01-32
    Начать чат с агентом
    Похожие предложения
    Офис (75.4 м) - Фото 1
    Офис (75.4 м) - Фото 2
    8-й этаж, всего 13 этажей

    В продаже офисное помещение площадью 75.40 кв. м. «Среда на Варшавском – это новый офисный комплекс класса А возле метро «Варшавская . Проект предлагает оптимальные условия для работы и развития стартапов, среднего или крупного бизнеса. Офисы будут встроены...
    • 8/13 эт.
    20 056 400 Р
    Агент
    +7 (931) Показать номер
    Посмотреть контакты
    Офис (75.4 м) - Фото 1
    Офис (75.4 м) - Фото 2
    6-й этаж, всего 13 этажей

    В продаже офисное помещение площадью 75.40 кв. м. «Среда на Варшавском – это новый офисный комплекс класса А возле метро «Варшавская . Проект предлагает оптимальные условия для работы и развития стартапов, среднего или крупного бизнеса. Офисы будут встроены...
    • 6/13 эт.
    19 604 000 Р
    Агент
    +7 (931) Показать номер
    Посмотреть контакты
    Офис (75.5 м) - Фото 1
    Офис (75.5 м) - Фото 2
    5-й этаж, всего 13 этажей

    В продаже офисное помещение площадью 75.50 кв. м. «Среда на Варшавском – это новый офисный комплекс класса А возле метро «Варшавская . Проект предлагает оптимальные условия для работы и развития стартапов, среднего или крупного бизнеса. Офисы будут встроены...
    • 5/13 эт.
    19 479 000 Р
    Агент
    +7 (931) Показать номер
    Посмотреть контакты
    Офис в Москва 1-й Варшавский проезд, 1АС32 (76 м) - Фото 1
    Офис в Москва 1-й Варшавский проезд, 1АС32 (76 м) - Фото 2
    5-й этаж, всего 13 этажей

    В продаже офисное помещение площадью 75.50 кв. м. Среда на Варшавском это новый офисный комплекс класса А возле метро Варшавская . Проект предлагает оптимальные условия для работы и развития стартапов, среднего или крупного бизнеса. Офисы будут встроены...
    • 5/13 эт.
    19 479 000 Р
    Агент
    +7 (916) Показать номер
    Посмотреть контакты
    Офис в Москва 1-й Варшавский проезд, 1АС32 (75 м) - Фото 1
    Офис в Москва 1-й Варшавский проезд, 1АС32 (75 м) - Фото 2
    6-й этаж, всего 13 этажей

    В продаже офисное помещение площадью 75.40 кв. м. Среда на Варшавском это новый офисный комплекс класса А возле метро Варшавская . Проект предлагает оптимальные условия для работы и развития стартапов, среднего или крупного бизнеса. Офисы будут встроены...
    • 6/13 эт.
    19 604 000 Р
    Агент
    +7 (916) Показать номер
    Посмотреть контакты

    Не нашли подходящего объявления?

    Оставьте заявку, и наши риэлторы подберут офис в районе Москвы

    (0)