Россия, Москва, улица Академика Семенихина, 2
29 125 212 Р 383 000 $ или 325 000

Информация о помещении и здании

13
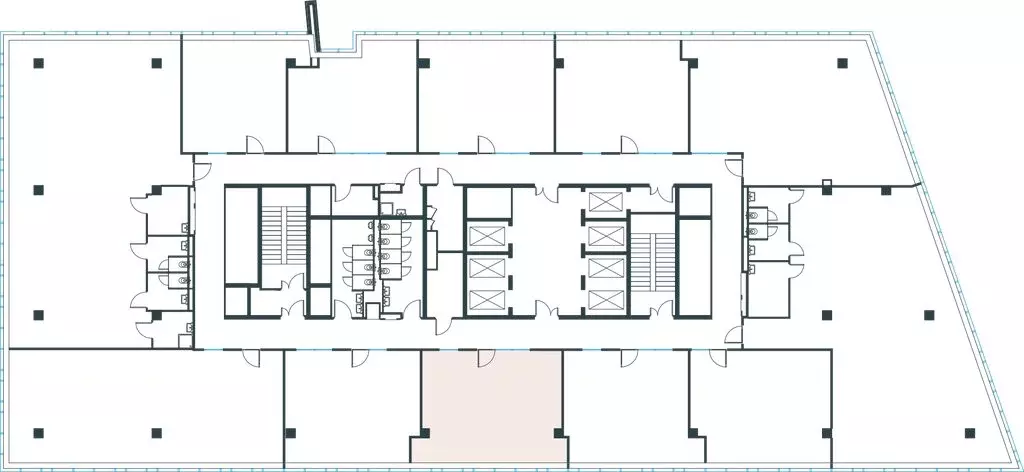
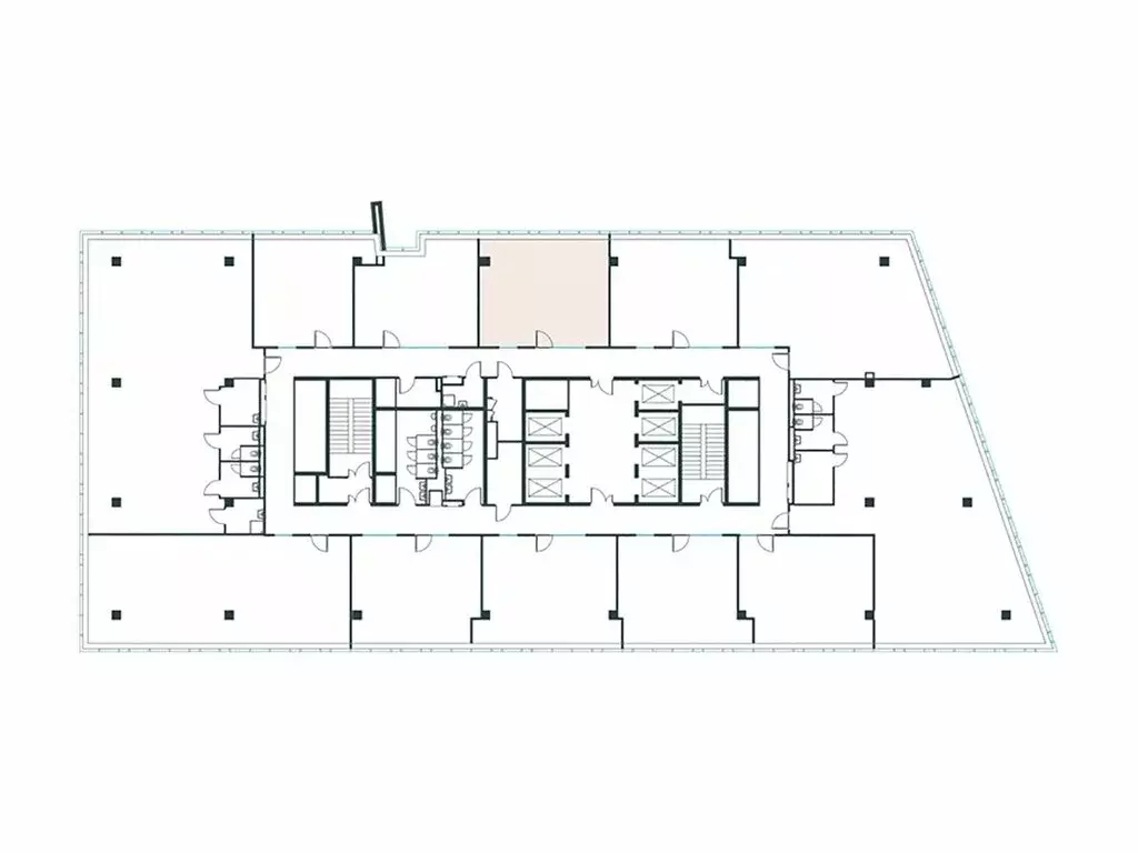
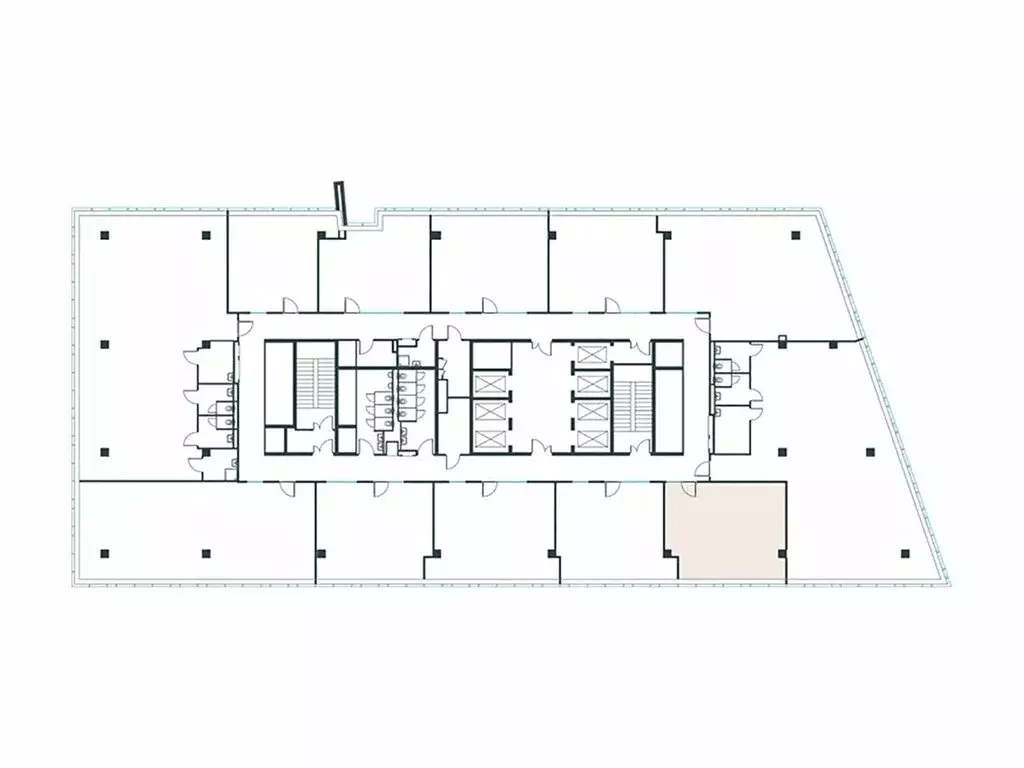
Этаж
23
Этажность
Развернуть
Агент
+7 (905) 719-39-85
Начать чат с агентом

Офис (63 м)

Цена указана с учётом скидки.Предложение действует при 100 оплате и рассрочке. Выгодный актив: 50 средний рост стоимости за период строительства. На проекте полностью завершены монолитные работы. Возможность возврата ндс после покупки. Продаётся офисное помещение площадью 63.00 кв. м в Level work Воронцовская (от компании Level Group), новом бизнес-центре класса A в престижном Обручевском районе Москвы (ЮЗАО). О проекте: - Отличная транспортная доступность: 6 минут пешком от метро Калужская, 1 минута пешком от станции БКЛ Воронцовская и 11 минут на автомобиле от ТТК; - 23 этажа и 149 офисов с разнообразными планировками; - Офисы площадью от 47 до 1357 кв. м. с возможностью объединения соседних лотов; - 7 лифтов скоростью 4 м/с в офисном блоке, включая сервисный; - Окна в пол и высокие потолки до 3,7 м; - Технологичный подземный паркинг на 179 машино-мест, включая места с зарядными станциями для электромобилей. Уникальная собственная инфраструктура: - Многофункциональный спортивный комплекс с теннисным кортом; - Фитнес-центр; - Фуд-холл и коворкинг; - Медицинский центр; - Торговый центр с супермаркетом. Благоустройство: - Озеленённая площадь у главного входа; - Пешеходные маршруты, повторяющие геометрию террас бизнес-центра; - Берёзовая роща для тихих прогулок; - Палисадники с уютными зонами отдыха. Окружение: - Воронцовский парк, Лес на реке Самородинке, Битцевский лес; - Усадьба Воронцово; - ТЦ РИО Ленинский и ТЦ Калужский ; - Гастромаркет Рынок на Ленинском ; - Офисы крупных нефтегазовых компаний и научно-исследовательские институты.Агентская комиссия 3 .

Читать полностью
    Позвонить Написать
    29 125 212 Р383 000 $ или 325 000
    Агент
    +7 (905) 719-39-85
    Начать чат с агентом
    Похожие предложения
    Офис (59.5 м) - Фото 1
    Офис (59.5 м) - Фото 2
    13-й этаж, всего 23 этажа

    Цена указана с учётом скидки.Предложение действует при 100 оплате и рассрочке. Выгодный актив: 50 средний рост стоимости за период строительства. На проекте полностью завершены монолитные работы. Возможность возврата ндс после покупки. Продаётся...
    • 13/23 эт.
    28 983 432 Р
    Агент
    +7 (905) Показать номер
    Посмотреть контакты
    Офис (59.9 м) - Фото 1
    Офис (59.9 м) - Фото 2
    13-й этаж, всего 23 этажа

    Цена указана с учётом скидки.Предложение действует при 100 оплате и рассрочке. Выгодный актив: 50 средний рост стоимости за период строительства. На проекте полностью завершены монолитные работы. Возможность возврата ндс после покупки. Продаётся...
    • 13/23 эт.
    28 073 874 Р
    Агент
    +7 (905) Показать номер
    Посмотреть контакты
    Офис в Москва Афи Парк Воронцовский жилой комплекс, 2 (58 м) - Фото 1
    Офис в Москва Афи Парк Воронцовский жилой комплекс, 2 (58 м) - Фото 2
    6-й этаж, всего 25 этажей

    Продается просторное коммерческое помещение общей площадью 57,6 на 6 этаже в готовом бизнес-центре AFI Park. Строительство комплекса завершено. 21-этажный бизнес-центр AFI Park — современный бизнес-центр класса A с мультифункциональной экосистемой для...
    • 6/25 эт.
    28 867 254 Р
    Агент
    +7 (916) Показать номер
    Посмотреть контакты
    Офис в Москва Афи Парк Воронцовский жилой комплекс, 2 (59 м) - Фото 1
    Офис в Москва Афи Парк Воронцовский жилой комплекс, 2 (59 м) - Фото 2
    4-й этаж, всего 25 этажей

    Продается просторное коммерческое помещение общей площадью 58,7 на 4 этаже в готовом бизнес-центре AFI Park. Строительство комплекса завершено. 21-этажный бизнес-центр AFI Park — современный бизнес-центр класса A с мультифункциональной экосистемой для...
    • 4/25 эт.
    29 115 255 Р
    Агент
    +7 (916) Показать номер
    Посмотреть контакты
    Офис в Москва Старокалужское ш., 62 (96 м) - Фото 1
    Офис в Москва Старокалужское ш., 62 (96 м) - Фото 2
    3-й этаж, всего 5 этажей

    Предлагается в продажу офисное помещение площадью 95.7 м2 на третьем этаже в бизнес центре ВАЛЛЕКС ОписаниеКабинетная планировка офисов. Высота потолков - 3 мПомещения оснащены климатическим оборудованием для комфортной работыПарковка наземная, круглосуточно...
    • 3/5 эт.
    28 710 000 Р
    Агент
    +7 (915) Показать номер
    Посмотреть контакты

    Не нашли подходящего объявления?

    Оставьте заявку, и наши риэлторы подберут офис в районе Москвы

    (0)