Россия, Москва, Кинематографический кв-л
111 285 000 Р 1 479 100 $ или 1 259 200

Информация о помещении и здании

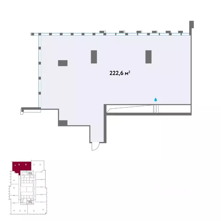
8
Этаж
33
Этажность
Развернуть
Агент
+7 (985) 243-08-86
Начать чат с агентом

Офис в Москва Кинематографический кв-л, (247 м)

Бизнес-парк Раменки - деловое пространство класса А, сочетающее технологичность с балансом между работой и жизнью. Здание расположено на границе ландшафтного заказника в Раменках, в 20 минутах от центра Москвы, в пешей доступности от станций метро и МЦД. Бизнес-парк соответствует высшим стандартам своего класса: ультрасовременный экстерьер, новейшие технологии в инженерии, комфортный паркинг, элегантные лобби, разнообразные планировки. ОФИСНЫЕ ПРОСТРАНСТВА Планировочные решения соответствуют высшим стандартам офисных зданий класса А. Геометрия лотов и расположение колонн обеспечивают высокую вариативность планировок и гибкую модификацию пространства. Представлены лоты площадьюм2: от домашнего офиса до офиса с террасой или штаб-квартиры. АРХИТЕКТУРА Концепция офисного центра разработана экспертами в создании жилых, общественных и промышленных проектов - бюро MARKS GROUP. Это эксклюзивный продукт, идеально вписанный в окружающий ландшафт и призванный стать архитектурной доминантой района. - Высота здания - 33 этажа; - Общая площадь здания - 81 509 м2; - Высота потолков на офисных этажах 3,7-4,5 м; - Панорамные виды на город, начиная с 3 этажа. ОБЩЕСТВЕННЫЕ ПРОСТРАНСТВА В бизнес-парке созданы все условия для гармоничной и продуктивной рабочей атмосферы. - Большой ресторан с просторной верандой - Корпоративное кафе, - Минимаркет, - Торговая галерея, - Фитнес-центр ДОНСПОРТ и другие сервисы. БЛАГОУСТРОЙСТВО Благоустройство выполнено на двух уровнях. Внизу - входная площадь с дроп-офф, садом камней, открытой террасой ресторана и павильоном для курения. На кровле второго этажа - общественная терраса-сад площадью почти 100 м с креативным озеленением, с зонами отдыха и общения. ПАРКИНГ Четырехуровневый отапливаемый подземный паркинг рассчитан на 243 машиноместа, включая 25 машиномест для электромобилей. Специальные места предусмотрены для мото- и велотранспорта. ИНФРАСТРУКТУРА Бизнес-парк расположен рядом с новым кварталом, в котором уже действует более 50 объектов инфраструктуры: рестораны и кафе, фитнес-центры и салоны красоты, супермаркеты и пункты выдачи заказов.

Читать полностью
    Позвонить Написать
    111 285 000 Р1 479 100 $ или 1 259 200
    Агент
    +7 (985) 243-08-86
    Начать чат с агентом
    Похожие предложения в Москве
    Офис в Москва Кинематографический кв-л,  (247 м) - Фото 1
    Офис в Москва Кинематографический кв-л,  (247 м) - Фото 2
    5-й этаж, всего 33 этажа

    Бизнес-парк Раменки - деловое пространство класса А, сочетающее технологичность с балансом между работой и жизнью. Здание расположено на границе ландшафтного заказника в Раменках, в 20 минутах от центра Москвы, в пешей доступности от станций метро и...
    • 5/33 эт.
    106 339 000 Р
    Агент
    +7 (985) Показать номер
    Посмотреть контакты
    Офис в Москва Кинематографический кв-л,  (233 м) - Фото 1
    Офис в Москва Кинематографический кв-л,  (233 м) - Фото 2
    5-й этаж, всего 33 этажа

    Бизнес-парк Раменки - деловое пространство класса А, сочетающее технологичность с балансом между работой и жизнью. Здание расположено на границе ландшафтного заказника в Раменках, в 20 минутах от центра Москвы, в пешей доступности от станций метро и...
    • 5/33 эт.
    102 608 000 Р
    Агент
    +7 (985) Показать номер
    Посмотреть контакты
    Офис в Москва Кинематографический кв-л,  (214 м) - Фото 1
    Офис в Москва Кинематографический кв-л,  (214 м) - Фото 2
    15-й этаж, всего 33 этажа

    Бизнес-парк Раменки - деловое пространство класса А, сочетающее технологичность с балансом между работой и жизнью. Здание расположено на границе ландшафтного заказника в Раменках, в 20 минутах от центра Москвы, в пешей доступности от станций метро и...
    • 15/33 эт.
    102 672 000 Р
    Агент
    +7 (985) Показать номер
    Посмотреть контакты
    Офис в Москва Кинематографический кв-л,  (254 м) - Фото 1
    Офис в Москва Кинематографический кв-л,  (254 м) - Фото 2
    15-й этаж, всего 33 этажа

    Бизнес-парк Раменки - деловое пространство класса А, сочетающее технологичность с балансом между работой и жизнью. Здание расположено на границе ландшафтного заказника в Раменках, в 20 минутах от центра Москвы, в пешей доступности от станций метро и...
    • 15/33 эт.
    114 165 000 Р
    Агент
    +7 (985) Показать номер
    Посмотреть контакты
    Офис в Москва Кинематографический кв-л,  (223 м) - Фото 1
    Офис в Москва Кинематографический кв-л,  (223 м) - Фото 2
    13-й этаж, всего 33 этажа

    Бизнес-парк Раменки - деловое пространство класса А, сочетающее технологичность с балансом между работой и жизнью. Здание расположено на границе ландшафтного заказника в Раменках, в 20 минутах от центра Москвы, в пешей доступности от станций метро и...
    • 13/33 эт.
    104 622 000 Р
    Агент
    +7 (985) Показать номер
    Посмотреть контакты

    Не нашли подходящего объявления?

    Оставьте заявку, и наши риэлторы подберут офис в районе Москвы

    (0)