Россия, Москва, 1-я Брестская ул., 64
411 065 000 Р 5 511 000 $ или 4 683 700

Информация о помещении и здании

3
Этаж
12
Этажность
Развернуть
Агент
+7 (985) 231-38-99
Начать чат с агентом

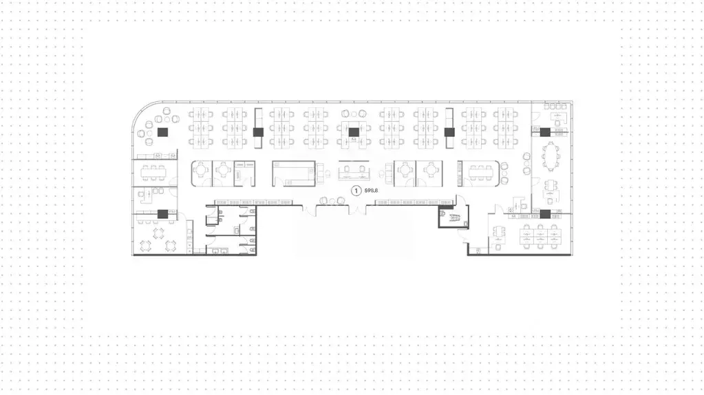
Офис в Москва 1-я Брестская ул., 64 (432 м)

Офисы с отделкой на Патриках Новый бизнес-центр класса PRIME на БелорусскойКомфортные условия сделки- беспроцентная рассрочка- скидка на акцииОкупаемость - 8-10 летДоходность - от 18 Офисный блок- потолок 3.5 м- открытая планировка- вентиляция с рекуперацией- центральное кондиционирование- подземный паркингБизнес центр — 12-этажный офисный центр класса PRIME. На 1 этаже размещены помещения под ритейл с отдельным входом, а на остальных этажах офисы с панорамным остеклением, откуда открываются виды на центр Москвы. Представлены как помещения с небольшой площадью, так и варианты для крупных компаний.

Читать полностью
    Позвонить Написать
    411 065 000 Р5 511 000 $ или 4 683 700
    Агент
    +7 (985) 231-38-99
    Начать чат с агентом
    Похожие предложения
    Офис в Москва ул. Грузинский Вал, 3 (574 м) - Фото 1
    Офис в Москва ул. Грузинский Вал, 3 (574 м) - Фото 2
    13-й этаж, всего 24 этажа

    Офис площадью 574 м расположен на 13 этаже в бизнес-центре VALTRI. Помещение с открытой планировкой без отделки можно адаптировать под стиль любой компании. Установлены системы приточно-вытяжной вентиляции и центрального кондиционирования. Вход осуществляется...
    • 13/24 эт.
    402 620 000 Р
    Агент
    +7 (917) Показать номер
    Посмотреть контакты
    Офис в Москва ул. Нижние Мневники, 3С1 (675 м) - Фото 1
    Офис в Москва ул. Нижние Мневники, 3С1 (675 м) - Фото 2
    17-й этаж, всего 18 этажей

    РАБОТАЕМ С АГЕНТАМИ И ПЛАТИМ РЕНТАВИК— участник ассоциации агентств КОКОН. STONE Мневники 3, Башня М3.2 - премиальный бизнес-центр на первой линии Москвы-реки. Проект расположен в престижном западном направлении столицы, где развивается новый деловой...
    • 17/18 эт.
    411 286 000 Р
    Агент
    +7 (933) Показать номер
    Посмотреть контакты
    Офис в Москва ул. Бутлерова, 17 (1176 м) - Фото 1
    Офис в Москва ул. Бутлерова, 17 (1176 м) - Фото 2
    3-й этаж, всего 21 этаж

    Готовый арендный бизнес площадью 1 176 м расположен на 3 этаже бизнес-центра Нео Гео. Пространство с отделкой и кабинетной планировкой размежёвано на 8 отдельных офисов. Помещения занимает арендатор — офис компании. Во всех блоках установлены приточно-вытяжная...
    • 3/21 эт.
    400 000 000 Р
    Агент
    +7 (916) Показать номер
    Посмотреть контакты
    Офис в Москва просп. Андропова, 18к7 (1267 м) - Фото 1
    Офис в Москва просп. Андропова, 18к7 (1267 м) - Фото 2
    8-й этаж, всего 11 этажей

    Офисный комплекс входит в состав технопарка Нагатино Айленд. Здание имеет удобную транспортную доступность - близкий выезд на ТТК, всего 2 километра, Нагатинскую набережную, Каширское, Варшавское шоссе и другие оживленные улицы.Налоговая: 25. Лифты: Есть....
    • 8/11 эт.
    418 110 000 Р
    Агент
    +7 (933) Показать номер
    Посмотреть контакты
    Офис в Москва просп. Андропова, 7Асоор1 (1267 м) - Фото 1
    Офис в Москва просп. Андропова, 7Асоор1 (1267 м) - Фото 2
    8-й этаж, всего 11 этажей

    Продажа офиса 1267 кв.м на 8 этаже в бизнес-центре Нагатино Айлэнд (корпус ЛОМОНОСОВ) по адресу Москва, просп. Андропова, 18 корп. 7.Помещение с отделкойПланировка кабинетнаяВход общий с улицыНазначение: ОфисЦена за кв.м:Цена за офис:Форма сделки: ДКПНалог:...
    • 8/11 эт.
    418 110 000 Р
    Агент
    +7 (915) Показать номер
    Посмотреть контакты

    Не нашли подходящего объявления?

    Оставьте заявку, и наши риэлторы подберут офис в районе Москвы

    (0)