8 768 672 Р 112 700 $ или 96 480

Информация о помещении и здании

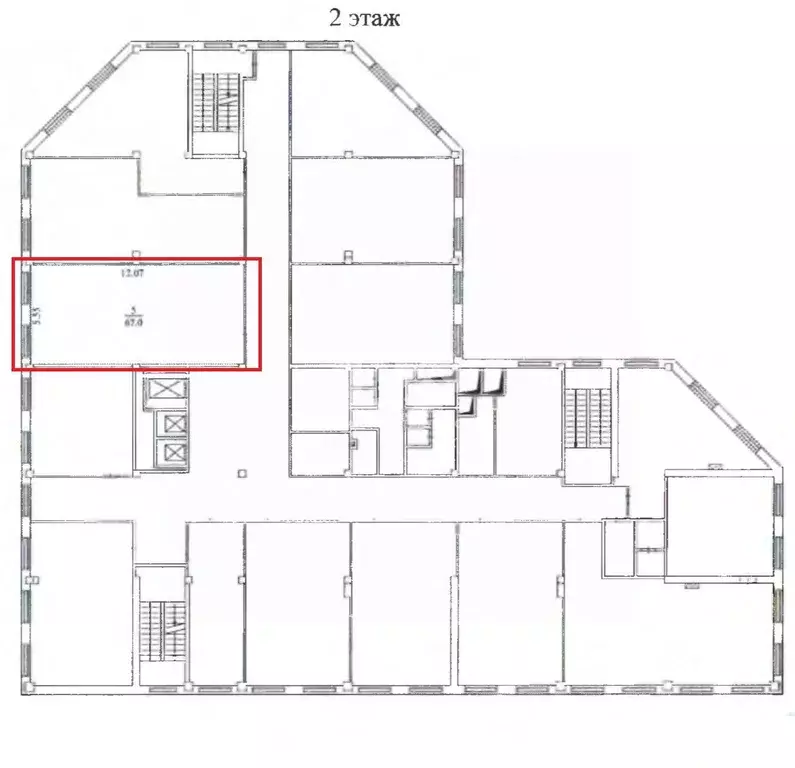
2
Этаж
8
Этажность
Развернуть
Агент
+7 (985) 802-47-49
Начать чат с агентом

Офис (26 м)

Предлагаем на продажу офисный блок 26 кв.м. на 2 этаже по адресу ш Волоколамское, д. 1 стр 1. В здании установлена эффективная приточно-вытяжная вентиляция для комфортной работы. Есть наземная парковка. Договор с собственником помещения. Без комиссии. Возможен торг. По всем вопросам звоните с 9:30 до 21:00. Оперативно организуем просмотр, при необходимости, бесплатно подготовим план рассадки ваших сотрудников. 1622

Читать полностью
    Позвонить Написать
    8 768 672 Р112 700 $ или 96 480
    Агент
    +7 (985) 802-47-49
    Начать чат с агентом
    Похожие предложения
    Офис в Московская область, Солнечногорск Красная ул., 58 (58 м) - Фото 1
    Офис в Московская область, Солнечногорск Красная ул., 58 (58 м) - Фото 2
    4-й этаж, всего 7 этажей

    Новый современный деловой бизнес-центр на первой линии Ленинградского шоссе.Планировка офиса - 3 кабинета, ресепшен, санузел и душевая зона.Отличное состояние и качественная отделка, светодиодное освещение, напольное покрытие из керамогранита, окна ПВХ,...
    • 4/7 эт.
    8 700 000 Р
    Агент
    +7 (923) Показать номер
    Посмотреть контакты
    Офис в Московская область, Балашиха Железнодорожный мкр, ул. ... - Фото 1
    Офис в Московская область, Балашиха Железнодорожный мкр, ул. ... - Фото 2
    3-й этаж, всего 6 этажей

    Арт.В центральной части города в Бизнес центре МАРС на третьем этаже продаётся офисное помещение общей площадью 43,4 кв.м. В данный момент оборудовано и сдаётся в аренду под образовательный центр с которым можно продлить аренду или переоборудовать...
    • 3/6 эт.
    8 900 000 Р
    Агент
    +7 (923) Показать номер
    Посмотреть контакты
    Офис в Адыгея, Майкоп ул. 3-го Интернационала, 165 (110 м) - Фото 1
    Офис в Адыгея, Майкоп ул. 3-го Интернационала, 165 (110 м) - Фото 2
    1-й этаж, всего 5 этажей

    Арт.Универсальное помещение в элитном доме — под бизнес или жилую квартиру Продаётся просторное помещение в новом элитном доме с возможностью перевода в статус жилого. Подготовлен проект планировки под 3-комнатную квартиру — отличная основа для комфортного...
    • 1/5 эт.
    8 700 000 Р
    Агент
    +7 (988) Показать номер
    Посмотреть контакты
    Офис в Новосибирская область, Новосибирск ул. Станиславского, 2/3 (67 ... - Фото 1
    Офис в Новосибирская область, Новосибирск ул. Станиславского, 2/3 (67 ... - Фото 2
    2-й этаж, всего 9 этажей

    Код объекта: 2094655.Комиссия агентства недвижимости Владис Центральное по данному варианту 0 .Предлагается в продажу помещение свободного назначения, 2-й этаж БЦ на ул. Станиславского.Расположение: первая линия улицы Станиславского, напротив парка им....
    • 2/9 эт.
    8 710 000 Р
    Агент
    +7 (913) Показать номер
    Посмотреть контакты
    Офис в Самарская область, Самара ул. Водников, 45 (95 м) - Фото 1
    Офис в Самарская область, Самара ул. Водников, 45 (95 м) - Фото 2
    1-й этаж, всего 10 этажей

    Номер объекта: 97419Менеджер объекта: Шаврыгин АлексейПродаю помещение на 1-м этаже.Отдельный вход, хорошо видно с улицы Водников.Престижный район города, исторический центр:-буквально в минуте - Набережная реки Волги, Речной вокзал;-в 5-ти минутах -...
    • 1/10 эт.
    8 850 000 Р
    Агент
    +7 (919) Показать номер
    Посмотреть контакты

    Не нашли подходящего объявления?

    Оставьте заявку, и наши риэлторы подберут офис в районе Москвы

    (0)