Россия, Москва, проезд 17-й Марьиной рощи, 9
72 054 000 Р 936 100 $ или 800 500

Информация о помещении и здании

9
Этаж
11
Этажность
Развернуть
Агент
+7 (985) 883-94-76
Начать чат с агентом

Офис в Москва проезд 17-й Марьиной рощи, 9 (160 м)

Код объекта: 2091956.В бизнес-центре EDEL (17-й проезд Марьиной Рощи, 9) действительно есть офисы с выходом на собственную террасу. Это 11-этажный бизнес-центр класса A, который строится в районе Марьина РощаОфис 51 площадью 160,12 м на 9 этаже с террасой.Характеристики:отделка — Shell Core (предоставляет свободу для реализации дизайнерских решений);электрическая мощность — от 120 Вт/м;панорамное остекление;заведена мокрая точка ;открытая планировка, которая позволяет адаптировать пространство под нужды бизнеса;предусмотрена установка системы безопасности, видеонаблюдения и контроля доступа, приточно-вытяжной вентиляции, мультизональных кондиционеров.Особенности бизнес-центра:подземный паркинг на 63 машиноместа с розетками для электромобилей;приватная зона отдыха;развитая инфраструктура: на первых этажах запланированы помещения для ритейла, в здании есть общественные пространства;транспортная доступность: 3 минуты до ТТК, 6 минут до метро Бутырская .Ввод в эксплуатацию запланирован на осень 2027 года.

Читать полностью
    Позвонить Написать
    72 054 000 Р936 100 $ или 800 500
    Агент
    +7 (985) 883-94-76
    Начать чат с агентом
    Похожие предложения
    Офис в Москва проезд 17-й Марьиной рощи, 9 (160 м) - Фото 1
    9-й этаж, всего 11 этажей

    Уважаемый Покупатель, предлагаем Вам приобрести в БЦ EDEL офис 160.1 м на 9 этаже в собственность на выгодных условиях.Приточно-вытяжная вентиляция. Центральное кондиционирование. Пожарная сигнализация. Электрическая мощность: 170. Интернет, телефония....
    • 9/11 эт.
    72 045 000 Р
    Агент
    +7 (985) Показать номер
    Посмотреть контакты
    Офис в Москва проезд 17-й Марьиной рощи, 6 (160 м) - Фото 1
    Офис в Москва проезд 17-й Марьиной рощи, 6 (160 м) - Фото 2
    9-й этаж, всего 11 этажей

    Эдель - 11-этажный бизнес-центр класса А в районе Марьина Роща. Локация активно развивается в рамках программы комплексного развития территории: здесь идет масштабное преобразование района, в рамках которого строится более кв. м жилых и коммерческих...
    • 9/11 эт.
    72 054 000 Р
    Агент
    +7 (916) Показать номер
    Посмотреть контакты
    Продажа офиса 220.94 м2 - Фото 1
    Продажа офиса 220.94 м2 - Фото 2
    Продажа офиса 220.94 м2 - Фото 3
    Продажа офиса 220.94 м2 - Фото 4
    Продажа офиса 220.94 м2 - Фото 5
    Продажа офиса 220.94 м2 - Фото 6
    Продажа офиса 220.94 м2 - Фото 7
    Продажа офиса 220.94 м2 - Фото 8
    Продажа офиса 220.94 м2 - Фото 9
    Продажа офиса 220.94 м2 - Фото 10
    Продажа офиса 220.94 м2 - Фото 11
    Продажа офиса 220.94 м2 - Фото 12
    Продажа офиса 220.94 м2 - Фото 13
    Продажа офиса 220.94 м2 - Фото 14
    Продажа офиса 220.94 м2 - Фото 15
    реализуемая площадь 220.9м², 5-й этаж, всего 13 этажей

    ОФИС В БАШНЕ B | лево Бизнес Парк Класс А | Победитель премии Move Realty Awards в номинации «Лучший проект для инвестиций» Инвестируйте в офис с максимальным потенциалом роста - в новом бизнес-центре лево Бизнес Парк. Современный проект А-класса на Новорижском...
    • 220.9 м²
    • 5/13 эт.
    71 876 288 Р
    Агент
    +7 (495) Показать номер
    Посмотреть контакты
    Продажа офиса 185.71 м2 - Фото 1
    Продажа офиса 185.71 м2 - Фото 2
    Продажа офиса 185.71 м2 - Фото 3
    Продажа офиса 185.71 м2 - Фото 4
    Продажа офиса 185.71 м2 - Фото 5
    Продажа офиса 185.71 м2 - Фото 6
    Продажа офиса 185.71 м2 - Фото 7
    Продажа офиса 185.71 м2 - Фото 8
    Продажа офиса 185.71 м2 - Фото 9
    Продажа офиса 185.71 м2 - Фото 10
    Продажа офиса 185.71 м2 - Фото 11
    Продажа офиса 185.71 м2 - Фото 12
    Продажа офиса 185.71 м2 - Фото 13
    Продажа офиса 185.71 м2 - Фото 14
    Продажа офиса 185.71 м2 - Фото 15
    реализуемая площадь 185.7м², 5-й этаж, всего 13 этажей

    ОФИС В БАШНЕ B | лево Бизнес Парк Класс А | Победитель премии Move Realty Awards в номинации «Лучший проект для инвестиций» Инвестируйте в офис с максимальным потенциалом роста - в новом бизнес-центре лево Бизнес Парк. Современный проект А-класса на Новорижском...
    • 185.7 м²
    • 5/13 эт.
    72 763 909 Р
    Агент
    +7 (495) Показать номер
    Посмотреть контакты
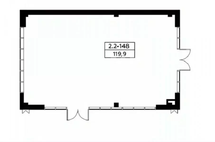
    Офис в Москва № 35 кв-л, 10 (120 м) - Фото 1
    Офис в Москва № 35 кв-л, 10 (120 м) - Фото 2
    1-й этаж, всего 12 этажей

    ЛотПредложение от Собственника Продается офисное помещение в бизнес-центре класса А — 119.9 м2 в бизнес-квартале Прокшино Помещение располагается на 1 этаже в торговой галерее, в офисной башне нового делового района Москвы.2 минуты пешком от метро ...
    • 1/12 эт.
    71 008 377 Р
    Агент
    +7 (986) Показать номер
    Посмотреть контакты

    Не нашли подходящего объявления?

    Оставьте заявку, и наши риэлторы подберут офис в районе Москвы

    (0)