350 000 000 Р 4 445 700 $ или 3 846 000

Информация о помещении и здании

1
Этаж
6
Этажность
Развернуть
Агент
+7 (929) 510-88-32
Начать чат с агентом

Офис (2700 м)

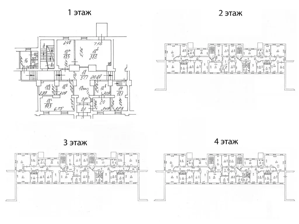
Офисное помещение 2 700 кв. м в бизнес-центре «Гостиничная 9 к4 . Прямая продажа, без комиссии.Округ: Северо-Восточный (СВАО). Район: Марфино. Характеристики:- Класс: B; - Арендопригодная площадь: 7406; - Код налоговой: 15. Стоимость: Оформление сделки напрямую от собственника, без комиссии.Готовы оперативно организовать просмотр в удобное время, предоставить PDF-презентацию и план. ID = c_1790618

Читать полностью
    Позвонить Написать
    350 000 000 Р4 445 700 $ или 3 846 000
    Агент
    +7 (929) 510-88-32
    Начать чат с агентом
    Похожие предложения
    Офис в Москва Гостиничная ул., 9К4 (2700 м) - Фото 1
    Офис в Москва Гостиничная ул., 9К4 (2700 м) - Фото 2
    1-й этаж, всего 6 этажей

    Офисное помещение 2 700 кв. м в бизнес-центре Гостиничная 9 к4 . Прямая продажа, без комиссии.Округ: Северо-Восточный (СВАО). Район: Марфино. Характеристики:- Класс: B; - Арендопригодная площадь: 7406; - Код налоговой: 15. Стоимость: Оформление сделки...
    • 1/6 эт.
    350 000 000 Р
    Агент
    +7 (915) Показать номер
    Посмотреть контакты
    Офис в Москва Большая Почтовая ул., 40С1 (1580 м) - Фото 1
    Офис в Москва Большая Почтовая ул., 40С1 (1580 м) - Фото 2
    подвальный этаж, всего 3 этажа

    Предлагаем на продажу офисный блок 1580 кв.м. Здание целиком по адресу ул Большая Почтовая, д. 40 стр 1. В здании установлена эффективная приточно-вытяжная вентиляция для комфортной работы. Договор с собственником помещения. Без комиссии. Возможен торг....
    • -2/3 эт.
    359 886 080 Р
    Агент
    +7 (986) Показать номер
    Посмотреть контакты
    12-й этаж, всего 12 этажей

    Продажа офиса 249,3 м на 11-м и 12-м уровнях в многофункциональном комплексе Резиденция Тверская.Многофункциональный комплекс Резиденция Тверская, 2-я Брестская ул., 6, Москва.Общие характеристики: качественная инженерия, профессиональная эксплуатация,...
    • 12/12 эт.
    342 790 000 Р
    Агент
    +7 (985) Показать номер
    Посмотреть контакты
    м Цветной Бульвар, ул Трубная, 1172 м2, Здание (ном. объекта: 8071) - Фото 1
    м Цветной Бульвар, ул Трубная, 1172 м2, Здание (ном. объекта: 8071) - Фото 2
    м Цветной Бульвар, ул Трубная, 1172 м2, Здание (ном. объекта: 8071) - Фото 3
    м Цветной Бульвар, ул Трубная, 1172 м2, Здание (ном. объекта: 8071) - Фото 4
    м Цветной Бульвар, ул Трубная, 1172 м2, Здание (ном. объекта: 8071) - Фото 5
    м Цветной Бульвар, ул Трубная, 1172 м2, Здание (ном. объекта: 8071) - Фото 6
    м Цветной Бульвар, ул Трубная, 1172 м2, Здание (ном. объекта: 8071) - Фото 7
    м Цветной Бульвар, ул Трубная, 1172 м2, Здание (ном. объекта: 8071) - Фото 8
    м Цветной Бульвар, ул Трубная, 1172 м2, Здание (ном. объекта: 8071) - Фото 9
    м Цветной Бульвар, ул Трубная, 1172 м2, Здание (ном. объекта: 8071) - Фото 10
    общая площадь офисного здания 1172м², реализуемая площадь 1172м², 4-й этаж, всего 4 этажа

    Здание 1172 масположенное в 5 минутах от станции метро Цветной Бульвар. Центральные коммуникации, кирпичные стены,жб перекрытия, 4 этажа, потолки 4 метра, 40 квт электрической мощности. Земельный участок 3.6 сотки в собственности, продается отдельно(исходя...
    • 1 172 м²
    • 4/4 эт.
    350 000 000 Р
    Агент
    +7 (968) Показать номер
    Агентство
    Телус
    Посмотреть контакты
    м. Аннино, Кирпичные выемки, БЦ Южные ворота. АБ (ном. объекта: 405) - Фото 1
    м. Аннино, Кирпичные выемки, БЦ Южные ворота. АБ (ном. объекта: 405) - Фото 2
    м. Аннино, Кирпичные выемки, БЦ Южные ворота. АБ (ном. объекта: 405) - Фото 3
    м. Аннино, Кирпичные выемки, БЦ Южные ворота. АБ (ном. объекта: 405) - Фото 4
    м. Аннино, Кирпичные выемки, БЦ Южные ворота. АБ (ном. объекта: 405) - Фото 5
    м. Аннино, Кирпичные выемки, БЦ Южные ворота. АБ (ном. объекта: 405) - Фото 6
    м. Аннино, Кирпичные выемки, БЦ Южные ворота. АБ (ном. объекта: 405) - Фото 7
    м. Аннино, Кирпичные выемки, БЦ Южные ворота. АБ (ном. объекта: 405) - Фото 8
    м. Аннино, Кирпичные выемки, БЦ Южные ворота. АБ (ном. объекта: 405) - Фото 9
    м. Аннино, Кирпичные выемки, БЦ Южные ворота. АБ (ном. объекта: 405) - Фото 10
    м. Аннино, Кирпичные выемки, БЦ Южные ворота. АБ (ном. объекта: 405) - Фото 11
    м. Аннино, Кирпичные выемки, БЦ Южные ворота. АБ (ном. объекта: 405) - Фото 12
    м. Аннино, Кирпичные выемки, БЦ Южные ворота. АБ (ном. объекта: 405) - Фото 13
    м. Аннино, Кирпичные выемки, БЦ Южные ворота. АБ (ном. объекта: 405) - Фото 14
    м. Аннино, Кирпичные выемки, БЦ Южные ворота. АБ (ном. объекта: 405) - Фото 15
    м. Аннино, Кирпичные выемки, БЦ Южные ворота. АБ (ном. объекта: 405) - Фото 16
    общая площадь офисного здания 2200м², реализуемая площадь 2200м², всего 5 этажей

    -1 этаж в Бизнес центре. по документам 2200 м. Фактически 2700м2 Высота потолков 8 метров. Мап . Договор 5 лет с индексацией 10%. Открытая планировка. . Центральные коммуникации.Коммунальные платежи оплачивает арендатор. продажа из расчета окупаемость...
    • 2 200 м²
    • 5 этажей
    350 000 000 Р
    Агент
    +7 (965) Показать номер
    Агентство
    Телус
    Посмотреть контакты

    Не нашли подходящего объявления?

    Оставьте заявку, и наши риэлторы подберут офис в районе Москвы

    (0)