Россия, Москва, проезд 17-й Марьиной рощи, 6
86 906 970 Р 1 071 000 $ или 930 200

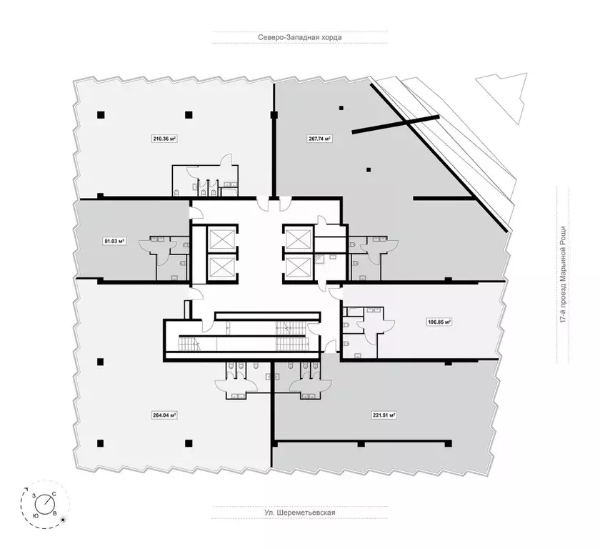
Информация о помещении и здании

8
Этаж
11
Этажность
Развернуть
Агент
+7 (916) 975-87-52
Начать чат с агентом

Офис в Москва проезд 17-й Марьиной рощи, 6 (208 м)

Эдель - 11-этажный бизнес-центр класса А в районе Марьина Роща. Локация активно развивается в рамках программы комплексного развития территории: здесь идет масштабное преобразование района, в рамках которого строится более кв. м жилых и коммерческих площадей.Транспортная доступность будет усиливаться за счет двух крупных магистралей - высокоскоростной магистрали Москва - Санкт-Петербург и Северо-Западной хорды.Высота потолков до 5,8 м. Подземный паркинг (63 машино и 10 мотомест, все с розетками для электромобилей), приватная зона отдыха. Ввод в эксплуатацию: осень 2027 г.Помещения:- 1 этаж: ретейл от 34 до 85 м2 с отдельным входом- 2-11 этажи: офисы от 75 до 296 м2, возможность объединения, на верхних этажах - лоты с террасами- Гибкие планировки, собственные кухни и санузлы на каждом этажеРасположение и транспортная доступность:- 3 мин. до ТТК- 6 мин. до метро Бутырская- 35 мин. до ШереметьевоИнвестиционные параметры:- Прогнозный рост цены за время строительства: до 60 - Средняя доходность от аренды: 14-16 годовыхЕсть беспроцентная рассрочка.

Читать полностью
    Позвонить Написать
    86 906 970 Р1 071 000 $ или 930 200
    Агент
    +7 (916) 975-87-52
    Начать чат с агентом
    Похожие предложения
    Офис в Москва проезд 17-й Марьиной рощи, 6 (208 м) - Фото 1
    Офис в Москва проезд 17-й Марьиной рощи, 6 (208 м) - Фото 2
    4-й этаж, всего 11 этажей

    Эдель - 11-этажный бизнес-центр класса А в районе Марьина Роща. Локация активно развивается в рамках программы комплексного развития территории: здесь идет масштабное преобразование района, в рамках которого строится более кв. м жилых и коммерческих...
    • 4/11 эт.
    86 656 878 Р
    Агент
    +7 (916) Показать номер
    Посмотреть контакты
    Офис в Москва проезд 17-й Марьиной рощи, 6 (210 м) - Фото 1
    Офис в Москва проезд 17-й Марьиной рощи, 6 (210 м) - Фото 2
    3-й этаж, всего 11 этажей

    Эдель - 11-этажный бизнес-центр класса А в районе Марьина Роща. Локация активно развивается в рамках программы комплексного развития территории: здесь идет масштабное преобразование района, в рамках которого строится более кв. м жилых и коммерческих...
    • 3/11 эт.
    87 467 688 Р
    Агент
    +7 (916) Показать номер
    Посмотреть контакты
    Офис (252.4 м) - Фото 1
    Офис (252.4 м) - Фото 2
    22-й этаж, всего 26 этажей

    Офисное помещение 252.4 кв. м в бизнес-центре «АФИ2В Тагильская . Прямая продажа, без комиссии. Объект на стадии активного строительства, готовность ко въезду уточняется по запросу. Округ: Восточный (ВАО). Район: Метрогородок. Характеристики:- Класс:...
    • 22/26 эт.
    87 921 912 Р
    Агент
    +7 (929) Показать номер
    Посмотреть контакты
    Офис (261.29 м) - Фото 1
    Офис (261.29 м) - Фото 2
    23-й этаж, всего 26 этажей

    Офисное помещение 261.3 кв. м в бизнес-центре «АФИ2В Тагильская . Прямая продажа, без комиссии. Объект на стадии активного строительства, готовность ко въезду уточняется по запросу. Округ: Восточный (ВАО). Район: Метрогородок. Характеристики:- Класс:...
    • 23/26 эт.
    87 856 536 Р
    Агент
    +7 (929) Показать номер
    Посмотреть контакты
    Офис в Москва Старокалужское ш., 62 (324 м) - Фото 1
    Офис в Москва Старокалужское ш., 62 (324 м) - Фото 2
    2-й этаж, всего 9 этажей

    Бизнес-центр Валлекс класса BПлощадь: 323,7 м2Стоимость за 1 м2: 270 000,. включая НДССтоимость площади:,. включая НДССистема налогообложения: НДСГотовность: готово к въездуЭтаж: 2Планировка: смешаннаяНаличие с/у: , ЕстьСтатус: свободенХарактеристики...
    • 2/9 эт.
    87 399 002 Р
    Агент
    +7 (911) Показать номер
    Посмотреть контакты

    Не нашли подходящего объявления?

    Оставьте заявку, и наши риэлторы подберут офис в районе Москвы

    (0)