Россия, Москва, Большая Почтовая ул., 5
98 700 000 Р 1 230 300 $ или 1 073 000

Информация о помещении и здании

цоколь
Этаж
6
Этажность
Развернуть
Агент
+7 (986) 314-30-47
Начать чат с агентом

Офис в Москва Большая Почтовая ул., 5 (329 м)

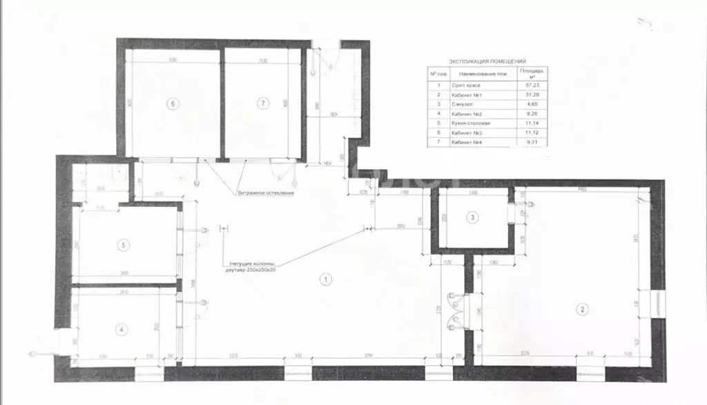
Предлагаю вашему вниманию прекрасный современный офис 329 кв.м., в ЦАО, район Басманный, в 10 минутах ходьбы от метро Бауманская, по ул. Большая Почтовая, д. 5. Офис общей площадью 329 кв.м., расположен на 1-м этаже (цоколь) современного 6-ти этажного жилого дома с подземным паркингом, огороженной территорией, со своим отдельным входом, имеет кабинетную планировку и состоит из: входного холла, офисной рабочей зоны с ресепшеном, комнаты отдыха, зоны столовой с кухней и двумя санузлами, и 7-ю изолированными комнатами, хозяйственная и серверная комната, есть окна по периметру. При необходимости возможна перепланировка. Оснащен современными инженерно-техническими коммуникациями: системами приточно-вытяжной вентиляции и кондиционирования, системами сигнализациями и пожаротушения. Проведен высокоскоростной интернет и телефония, имеется своя серверная комната, есть внутреннее и внешнее видеонаблюдение. Дом: жилой, кирпичный, 2002 года постройки, 6 этаже и 2 подвальных, подземный паркинг.Удобная транспортная доступность, подъезд с ТТК, шаговая доступность от м. Бауманская, развитая инфраструктура района, с множеством кафе/ресторанов, магазинов.Собственник ФЛ. Цена 98.7 миллионов.

Читать полностью
    Позвонить Написать
    98 700 000 Р1 230 300 $ или 1 073 000
    Агент
    +7 (986) 314-30-47
    Начать чат с агентом
    Похожие предложения
    Офис в Москва 1-я Брестская ул., 64 (153 м) - Фото 1
    Офис в Москва 1-я Брестская ул., 64 (153 м) - Фото 2
    3-й этаж, всего 12 этажей

    Новый бизнес-центр класса PRIME на БелорусскойКомфортные условия сделки- беспроцентная рассрочка- скидка на акцииОкупаемость - 8-10 летДоходность - от 18 Офисный блок- панорамное остекление- потолок 3.5 м- открытая планировка- вентиляция с рекуперацией-...
    • 3/12 эт.
    99 255 000 Р
    Агент
    +7 (985) Показать номер
    Посмотреть контакты
    Офис в Москва Летниковская ул., 4С5 (152 м) - Фото 1
    Офис в Москва Летниковская ул., 4С5 (152 м) - Фото 2
    4-й этаж, всего 4 этажа

    Арт.В продаже офис в пешей доступности от станции метро Павелецкая Офис расположен на четвертом этаже БЦ класса Б+, общей площадью 151.9 м2. Приточная система кондиционирования, вентиляция, пожарная сигнализация, интернет/телефония. Система контроля...
    • 4/4 эт.
    99 000 000 Р
    Агент
    +7 (916) Показать номер
    Посмотреть контакты
    Офис в Москва Малый Харитоньевский пер., 9/13С4 (163 м) - Фото 1
    Офис в Москва Малый Харитоньевский пер., 9/13С4 (163 м) - Фото 2
    1-й этаж, всего 3 этажа

    Продается офисное помещение на 1 этаже в жилом доме, С класса, который находится по адресу: Малый Харитоньевский пер., д. 9/13, стр 4. Без комиссии для Покупателя ЛОКАЦИЯ:- Шаговая доступность от станции метро Красные Ворота, Чистые Пруды, Тургеневская.-...
    • 1/3 эт.
    100 000 000 Р
    Агент
    +7 (989) Показать номер
    Посмотреть контакты
    Офис в Москва Афи Парк Воронцовский жилой комплекс, 2 (237 м) - Фото 1
    Офис в Москва Афи Парк Воронцовский жилой комплекс, 2 (237 м) - Фото 2
    12-й этаж, всего 25 этажей

    Продается просторное коммерческое помещение общей площадью 236,6 на 12 этаже в готовом бизнес-центре AFI Park. Строительство комплекса завершено. 21-этажный бизнес-центр AFI Park — современный бизнес-центр класса A с мультифункциональной экосистемой...
    • 12/25 эт.
    98 183 807 Р
    Агент
    +7 (985) Показать номер
    Посмотреть контакты
    Офис в Москва Ходынский бул., 10 (186 м) - Фото 1
    Офис в Москва Ходынский бул., 10 (186 м) - Фото 2
    7-й этаж, всего 16 этажей

    Уважаемый Покупатель, предлагаем Вам приобрести в БЦ STONE Ходынка 4, башня F2 ( STONE Khodynka 4, tower F2 ) офис 186.0 м на 7 этаже в собственность на выгодных условиях.Приточно-вытяжная вентиляция. Центральное кондиционирование. Пожарная сигнализация....
    • 7/16 эт.
    99 138 000 Р
    Агент
    +7 (985) Показать номер
    Посмотреть контакты

    Не нашли подходящего объявления?

    Оставьте заявку, и наши риэлторы подберут офис в районе Москвы

    (0)