Россия, Москва, проезд 3-й Марьиной рощи, 40С2
134 520 000 Р 1 659 700 $ или 1 451 800

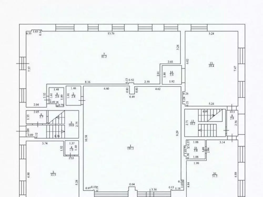
Информация о помещении и здании

6
Этаж
7
Этажность
Развернуть
Агент
+7 (985) 231-38-99
Начать чат с агентом

Офис в Москва проезд 3-й Марьиной рощи, 40С2 (472 м)

Продажа просторных офисов с современным ремонтом300 м от метроБлок с уже готовой отделкойОкончание ремонта — IV кв. 2025Оптимальное соотношение цены и качестваПотолки — 4,3 м:ощущение пространства, возможность расширения эффективных площадейза счёт монтажа антресоли Панорамные окна 5,6 2,9 м - прекрасная инсоляция помещений в любое время годаСистемы вентиляции и кондиционированияОтдельный вход с этажа в офисный блок Собственный санузел (помимо общих санузлов на этаже)Возможность организации кухни-столовой в отдельном помещении с подведенными коммуникациямиПомещения полностью готовы к эксплуатацииСовременный ремонт, качественные материалы, продуманная планировка — идеальная база для бизнеса.Светло. Просторно. Удобно300 м до м. Марьина Роща (5 минут пешком)Рядом МЦД-2 и МЦД-4Общественный транспорт в шаговой доступностиЛичный транспорт: Быстрый выезд на Третье транспортное кольцо15 минут до центра

Читать полностью
    Позвонить Написать
    134 520 000 Р1 659 700 $ или 1 451 800
    Агент
    +7 (985) 231-38-99
    Начать чат с агентом
    Похожие предложения
    Офис в Москва Высоковольтный проезд, 7 (661 м) - Фото 1
    Офис в Москва Высоковольтный проезд, 7 (661 м) - Фото 2
    1-й этаж, всего 2 этажа

    Предложение на продажу 63503.Парковка: 10 + городская парковка (до 30 м/м).Продажа здания (не является объектом культурного наследия). Большая территория для наземной парковки. В 200 м от здания расположен ЖК Римского-Корсакова 11 . . Кол-во квартир...
    • 1/2 эт.
    125 300 000 Р
    Агент
    +7 (989) Показать номер
    Посмотреть контакты
    Офис (252.75 м) - Фото 1
    Офис (252.75 м) - Фото 2
    10-й этаж, всего 17 этажей

    Продажа офиса 252.75 кв.м на 10 этаже в бизнес-центре «MIND по адресу Москва, улица Серёгина, 5к1.Помещение без отделкиПланировка open-spaceВход общий с улицыНазначение: ОфисЦена за кв.м:Цена за офис:Налог: НДС включенИнформация о здании:Год постройки...
    • 10/17 эт.
    127 120 616 Р
    Агент
    +7 (984) Показать номер
    Посмотреть контакты
    Офис (685.7 м) - Фото 1
    1-й этаж, всего 6 этажей

    Продажа офиса 685.7 кв.м на 1 этаже в бизнес-центре «Кржижановского, 29к2,3 по адресу Москва, улица Кржижановского, 29к2.Помещение с отделкойПланировка смешаннаяЦена за кв.м:Цена за офис:Налог: УСНИнформация о здании:Год реконструкции здания: 2012Налоговая:...
    • 1/6 эт.
    130 283 000 Р
    Агент
    +7 (984) Показать номер
    Посмотреть контакты
    Офис в Москва 1-я Брестская ул., 64 (203 м) - Фото 1
    Офис в Москва 1-я Брестская ул., 64 (203 м) - Фото 2
    3-й этаж, всего 12 этажей

    Новый бизнес-центр класса PRIME на БелорусскойКомфортные условия сделки- беспроцентная рассрочка- скидка на акцииОкупаемость - 8-10 летДоходность - от 18 Офисный блок- панорамное остекление- потолок 3.5 м- открытая планировка- вентиляция с рекуперацией-...
    • 3/12 эт.
    131 625 000 Р
    Агент
    +7 (985) Показать номер
    Посмотреть контакты
    Продажа офиса, м. Технопарк, Проектируемый 4062-й проезд - Фото 1
    Продажа офиса, м. Технопарк, Проектируемый 4062-й проезд - Фото 2
    Продажа офиса, м. Технопарк, Проектируемый 4062-й проезд - Фото 3
    Продажа офиса, м. Технопарк, Проектируемый 4062-й проезд - Фото 4
    Продажа офиса, м. Технопарк, Проектируемый 4062-й проезд - Фото 5
    Продажа офиса, м. Технопарк, Проектируемый 4062-й проезд - Фото 6
    Продажа офиса, м. Технопарк, Проектируемый 4062-й проезд - Фото 7
    Продажа офиса, м. Технопарк, Проектируемый 4062-й проезд - Фото 8
    Продажа офиса, м. Технопарк, Проектируемый 4062-й проезд - Фото 9
    Продажа офиса, м. Технопарк, Проектируемый 4062-й проезд - Фото 10
    общая площадь офисного здания 447.4м², реализуемая площадь 447.4м², 3-й этаж, всего 6 этажей

    Скидка 10 % до конца августа 2025 – акция. Продажа офиса в БЦ класса В+ Порт Плаза, расположенного на берегу Нагатинского затона, с прямым выходом к набережной. ЮАО, Даниловский район, м.Технопарк в 150 метрах. Общая площадь офиса 447,4 м2, расположен...
    • 447.4 м²
    • 3/6 эт.
    122 932 098 Р
    Агент
    +7 (903) Показать номер
    Посмотреть контакты

    Не нашли подходящего объявления?

    Оставьте заявку, и наши риэлторы подберут офис в районе Москвы

    (0)