115 964 747 Р 1 466 600 $ или 1 261 300

Информация о помещении и здании

17
Этаж
26
Этажность
Развернуть
Агент
+7 (984) 702-65-32
Начать чат с агентом

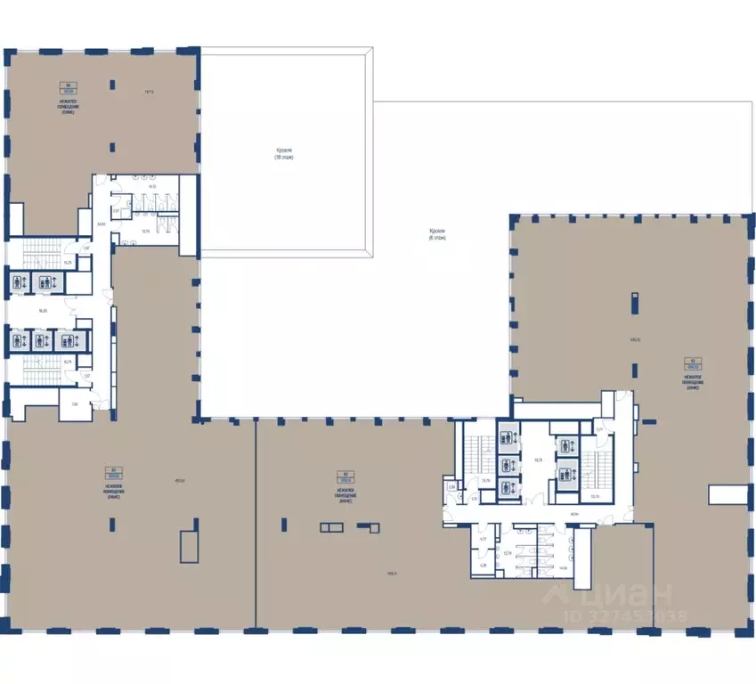
Офис в Москва Тагильская ул., вл4 (399 м)

Продается коммерческое помещение общей площадью 399 м2 на 17 этаже в строящемся бизнес-центре АФИ2В Тагильская.26-этажный бизнес-центр АФИ2В Тагильская от девелопера с мировым именем AFI Development — это инновационный комплекс, задающий новый стандарт деловых пространств на востоке Москвы. Проект объединяет статусные офисы, ресторанный дворик, супермаркет и озеленённую террасу, создавая полноценную экосистему для бизнеса.На первых этажах расположатся торговая галерея, ресторанный дворик и просторное лобби. Подземный паркинг на 200 машино-мест создаст удобную логистику для резидентов и гостей комплекса. Эргономичные openspace-планировки дадут возможность организовать на каждом этаже функциональные рабочие зоны, переговорные комнаты, кабинеты руководителей, конференц-зал, бизнес-гостиные и зоны отдыха.За счет неглубокой посадки офисов и панорамного остекления все помещения хорошо освещаются естественным образом. Современные инженерные системы (приточно-вытяжная вентиляция, мультизональное кондиционирование) и централизованная система управления зданием (BMS) гарантируют комфортный микроклимат и энергоэффективность. Круглосуточная охрана, видеонаблюдение и консьерж-сервис обеспечивают безопасность и высокий уровень сервиса.Стратегическое расположение на Открытом шоссе обеспечивает отличную логистику: всего 6 минут пешком до станции МЦК Бульвар Рокоссовского и 9 минут пешком до одноименной станции метро. 15 минут до МКАД и ТТК. Рядом расположены ЖК Сиреневый парк , парк Лосиный Остров и вся необходимая социальная инфраструктура.Ввод в эксплуатацию запланирован на III квартал 2026 года. Действует рассрочка 0 до конца строительства.

Читать полностью
    Позвонить Написать
    115 964 747 Р1 466 600 $ или 1 261 300
    Агент
    +7 (984) 702-65-32
    Начать чат с агентом
    Похожие предложения в Москве
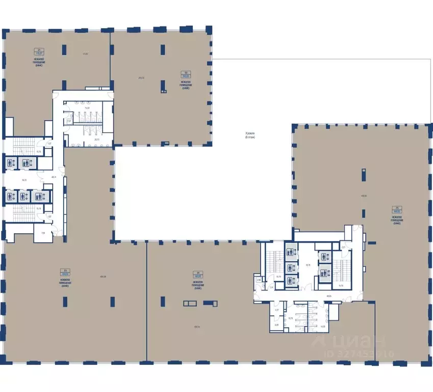
    Офис в Москва Тагильская ул., вл4 (485 м) - Фото 1
    Офис в Москва Тагильская ул., вл4 (485 м) - Фото 2
    16-й этаж, всего 26 этажей

    Продается коммерческое помещение общей площадью 485 м2 на 16 этаже в строящемся бизнес-центре АФИ2В Тагильская.26-этажный бизнес-центр АФИ2В Тагильская от девелопера с мировым именем AFI Development — это инновационный комплекс, задающий новый стандарт...
    • 16/26 эт.
    128 063 705 Р
    Агент
    +7 (984) Показать номер
    Посмотреть контакты
    Офис в Москва Тагильская ул., вл4 (485 м) - Фото 1
    Офис в Москва Тагильская ул., вл4 (485 м) - Фото 2
    11-й этаж, всего 26 этажей

    Продается коммерческое помещение общей площадью 485 м2 на 11 этаже в строящемся бизнес-центре АФИ2В Тагильская.26-этажный бизнес-центр АФИ2В Тагильская от девелопера с мировым именем AFI Development — это инновационный комплекс, задающий новый стандарт...
    • 11/26 эт.
    121 726 433 Р
    Агент
    +7 (984) Показать номер
    Посмотреть контакты
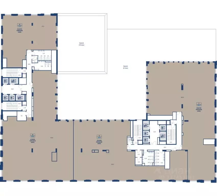
    Офис в Москва Тагильская ул., вл4 (399 м) - Фото 1
    Офис в Москва Тагильская ул., вл4 (399 м) - Фото 2
    21-й этаж, всего 26 этажей

    Продается коммерческое помещение общей площадью 399 м2 на 21 этаже в строящемся бизнес-центре АФИ2В Тагильская.26-этажный бизнес-центр АФИ2В Тагильская от девелопера с мировым именем AFI Development — это инновационный комплекс, задающий новый стандарт...
    • 21/26 эт.
    125 460 443 Р
    Агент
    +7 (984) Показать номер
    Посмотреть контакты
    Офис в Москва Тагильская ул., вл4 (399 м) - Фото 1
    Офис в Москва Тагильская ул., вл4 (399 м) - Фото 2
    19-й этаж, всего 26 этажей

    Продается коммерческое помещение общей площадью 399 м2 на 19 этаже в строящемся бизнес-центре АФИ2В Тагильская.26-этажный бизнес-центр АФИ2В Тагильская от девелопера с мировым именем AFI Development — это инновационный комплекс, задающий новый стандарт...
    • 19/26 эт.
    123 371 612 Р
    Агент
    +7 (984) Показать номер
    Посмотреть контакты
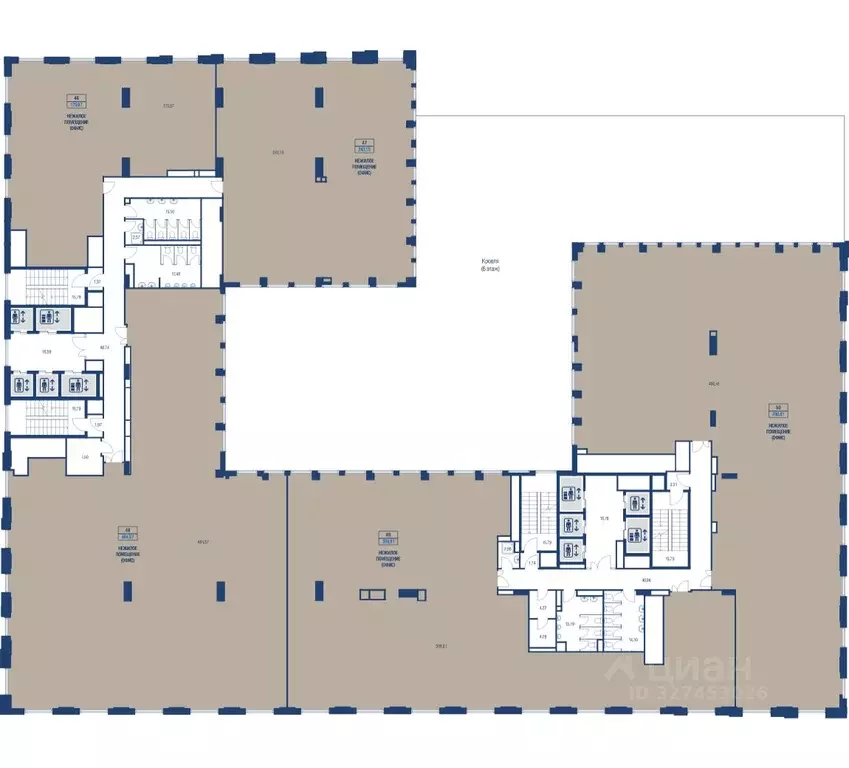
    Офис в Москва Тагильская ул., вл4 (485 м) - Фото 1
    Офис в Москва Тагильская ул., вл4 (485 м) - Фото 2
    13-й этаж, всего 26 этажей

    Продается коммерческое помещение общей площадью 485 м2 на 13 этаже в строящемся бизнес-центре АФИ2В Тагильская.26-этажный бизнес-центр АФИ2В Тагильская от девелопера с мировым именем AFI Development — это инновационный комплекс, задающий новый стандарт...
    • 13/26 эт.
    124 259 831 Р
    Агент
    +7 (984) Показать номер
    Посмотреть контакты

    Не нашли подходящего объявления?

    Оставьте заявку, и наши риэлторы подберут офис в районе Москвы

    (0)