135 542 096 Р 1 746 500 $ или 1 500 900

Информация о помещении и здании

12
Этаж
26
Этажность
Развернуть
Агент
+7 (966) 126-89-38
Начать чат с агентом

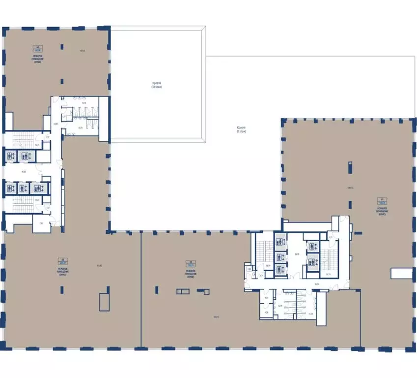
Офис (490 м)

Продается коммерческое помещение общей площадью 490 м2 на 12 этаже в строящемся бизнес-центре АФИ2В Тагильская. 26-этажный бизнес-центр АФИ2В Тагильская от девелопера с мировым именем AFI Development - это инновационный комплекс, задающий новый стандарт деловых пространств на востоке Москвы. Проект объединяет статусные офисы, ресторанный дворик, супермаркет и озеленённую террасу, создавая полноценную экосистему для бизнеса. На первых этажах расположатся торговая галерея, ресторанный дворик и просторное лобби. Подземный паркинг на 200 машино-мест создаст удобную логистику для резидентов и гостей комплекса. Эргономичные openspace-планировки дадут возможность организовать на каждом этаже функциональные рабочие зоны, переговорные комнаты, кабинеты руководителей, конференц-зал, бизнес-гостиные и зоны отдыха. За счет неглубокой посадки офисов и панорамного остекления все помещения хорошо освещаются естественным образом. Современные инженерные системы (приточно-вытяжная вентиляция, мультизональное кондиционирование) и централизованная система управления зданием (BMS) гарантируют комфортный микроклимат и энергоэффективность. Круглосуточная охрана, видеонаблюдение и консьерж-сервис обеспечивают безопасность и высокий уровень сервиса. Стратегическое расположение на Открытом шоссе обеспечивает отличную логистику: всего 6 минут пешком до станции МЦК «Бульвар Рокоссовского и 9 минут пешком до одноименной станции метро. 15 минут до МКАД и ТТК. Рядом расположены ЖК «Сиреневый парк , «парк Лосиный Остров и вся необходимая социальная инфраструктура. Ввод в эксплуатацию запланирован на III квартал 2026 года. Действует рассрочка 0 до конца строительства.

Читать полностью
    Позвонить Написать
    135 542 096 Р1 746 500 $ или 1 500 900
    Агент
    +7 (966) 126-89-38
    Начать чат с агентом
    Похожие предложения в Москве
    Офис (486 м) - Фото 1
    Офис (486 м) - Фото 2
    19-й этаж, всего 26 этажей

    Продается коммерческое помещение общей площадью 486 м2 на 19 этаже в строящемся бизнес-центре АФИ2В Тагильская. 26-этажный бизнес-центр АФИ2В Тагильская от девелопера с мировым именем AFI Development - это инновационный комплекс, задающий новый стандарт...
    • 19/26 эт.
    143 472 608 Р
    Агент
    +7 (966) Показать номер
    Посмотреть контакты
    10-й этаж, всего 26 этажей

    Продается коммерческое помещение общей площадью 491 м2 на 10 этаже в строящемся бизнес-центре АФИ2В Тагильская. 26-этажный бизнес-центр АФИ2В Тагильская от девелопера с мировым именем AFI Development - это инновационный комплекс, задающий новый стандарт...
    • 10/26 эт.
    132 956 048 Р
    Агент
    +7 (966) Показать номер
    Посмотреть контакты
    Офис (486 м) - Фото 1
    Офис (486 м) - Фото 2
    20-й этаж, всего 26 этажей

    Продается коммерческое помещение общей площадью 486 м2 на 20 этаже в строящемся бизнес-центре АФИ2В Тагильская. 26-этажный бизнес-центр АФИ2В Тагильская от девелопера с мировым именем AFI Development - это инновационный комплекс, задающий новый стандарт...
    • 20/26 эт.
    144 745 088 Р
    Агент
    +7 (966) Показать номер
    Посмотреть контакты
    Офис (486 м) - Фото 1
    Офис (486 м) - Фото 2
    21-й этаж, всего 26 этажей

    Продается коммерческое помещение общей площадью 486 м2 на 21 этаже в строящемся бизнес-центре АФИ2В Тагильская. 26-этажный бизнес-центр АФИ2В Тагильская от девелопера с мировым именем AFI Development - это инновационный комплекс, задающий новый стандарт...
    • 21/26 эт.
    146 017 568 Р
    Агент
    +7 (966) Показать номер
    Посмотреть контакты
    18-й этаж, всего 26 этажей

    Продается коммерческое помещение общей площадью 486 м2 на 18 этаже в строящемся бизнес-центре АФИ2В Тагильская. 26-этажный бизнес-центр АФИ2В Тагильская от девелопера с мировым именем AFI Development - это инновационный комплекс, задающий новый стандарт...
    • 18/26 эт.
    142 200 128 Р
    Агент
    +7 (966) Показать номер
    Посмотреть контакты

    Не нашли подходящего объявления?

    Оставьте заявку, и наши риэлторы подберут офис в районе Москвы

    (0)