41 523 648 Р 535 000 $ или 459 800

Информация о помещении и здании

14
Этаж
31
Этажность
Развернуть
Агент
+7 (963) 687-06-56
Начать чат с агентом

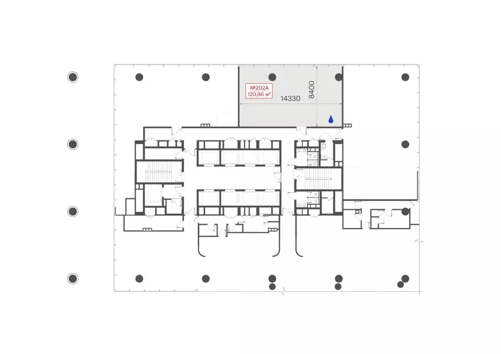
Офис (95.8 м)

Продается офис в БЦ Omni Tower, общей площадью 95.8 м, на 14 этаже. Omni Tower - это флагманский бизнес-центр класса А от девелопера . Sense, создающего пространства будущего, где технологии, комфорт и эстетика формируют новое качество деловой среды. Комплекс расположен в динамично развивающемся районе Фили-Давыдково, на улице Алексея Свиридова, всего в нескольких минутах от Кутузовского проспекта и Москва-Сити. В шаговой доступности - три линии метро (Филёвская, Арбатско-Покровская, Большая кольцевая) , МЦД D1, остановки общественного транспорта и удобные выезды на основные магистрали. До центра Москвы можно добраться за 10-15 минут, а до Садового кольца - всего за несколько остановок. Бизнес-центр отвечает самым высоким международным стандартам офисной недвижимости. Его архитектура, инженерия и внутренняя организация формируют новую философию делового образа жизни в Москве, где внимание к деталям, стиль и технологичность становятся ключевыми элементами успеха.

Читать полностью
    Позвонить Написать
    41 523 648 Р535 000 $ или 459 800
    Агент
    +7 (963) 687-06-56
    Начать чат с агентом
    Похожие предложения
    15-й этаж, всего 31 этаж

    Продается офис в БЦ Omni Tower, общей площадью 94.3 м, на 15 этаже. Omni Tower - это флагманский бизнес-центр класса А от девелопера . Sense, создающего пространства будущего, где технологии, комфорт и эстетика формируют новое качество деловой среды....
    • 15/31 эт.
    42 882 172 Р
    Агент
    +7 (963) Показать номер
    Посмотреть контакты
    Офис (94.3 м) - Фото 1
    Офис (94.3 м) - Фото 2
    15-й этаж, всего 31 этаж

    Продается офис в БЦ Omni Tower, общей площадью 94.3 м, на 15 этаже. Omni Tower - это флагманский бизнес-центр класса А от девелопера . Sense, создающего пространства будущего, где технологии, комфорт и эстетика формируют новое качество деловой среды....
    • 15/31 эт.
    42 041 296 Р
    Агент
    +7 (963) Показать номер
    Посмотреть контакты
    Офис (102.9 м) - Фото 1
    Офис (102.9 м) - Фото 2
    6-й этаж, всего 31 этаж

    Продается офис в БЦ Omni Tower, общей площадью 102.9 м, на 6 этаже. Omni Tower - это флагманский бизнес-центр класса А от девелопера . Sense, создающего пространства будущего, где технологии, комфорт и эстетика формируют новое качество деловой среды....
    • 6/31 эт.
    42 798 992 Р
    Агент
    +7 (963) Показать номер
    Посмотреть контакты
    Офис (94.3 м) - Фото 1
    Офис (94.3 м) - Фото 2
    15-й этаж, всего 31 этаж

    Продается офис в БЦ Omni Tower, общей площадью 94.3 м, на 15 этаже. Omni Tower - это флагманский бизнес-центр класса А от девелопера . Sense, создающего пространства будущего, где технологии, комфорт и эстетика формируют новое качество деловой среды....
    • 15/31 эт.
    42 041 296 Р
    Агент
    +7 (963) Показать номер
    Посмотреть контакты
    Офис в Москва Верейская ул., 29С29 (119 м) - Фото 1
    Офис в Москва Верейская ул., 29С29 (119 м) - Фото 2
    2-й этаж, всего 20 этажей

    Старт продаж Продаётся офисное помещение площадью 118.71 м на 2 этаже в новом бизнес-центре SET в башне K1. БЦ SET — современные офисы класса А от MR Office, расположенные в Можайском районе Западного административного округа Москвы на ул. Верейская....
    • 2/20 эт.
    41 785 920 Р
    Агент
    +7 (985) Показать номер
    Посмотреть контакты

    Не нашли подходящего объявления?

    Оставьте заявку, и наши риэлторы подберут офис в районе Москвы

    (0)