43 154 700 Р 559 600 $ или 474 100

Информация о помещении и здании

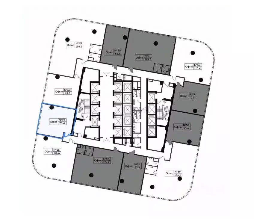
5
Этаж
15
Этажность
Развернуть
Агент
+7 (915) 164-56-43
Начать чат с агентом

Офис в Москва ул. Неверовского, 10 (76 м)

Премиальный бизнес-центр класса А+ расположен в престижном районе Дорогомилово, в составе масштабного делового кластера Большой Сити .Бизнес-центр A+ общей площадью помещений 27 400 м2, 15 этажей с двухуровневым паркингом на 123 места расположен по адресу ул. Неверского д.10, стр3. Завершение строительства IV квартал 2027 года.Преимущества:Сегодня этот район формируется как ключевая бизнес-локация столицы: здесь появляются новые офисные и общественные пространства. Сочетание делового потенциала и узнаваемых городских символов делает локацию привлекательной для инвесторов, будущих покупателей и арендаторов.Отличная транспортная доступность: наличие крупных магистралей, таких как Кутузовский проспект, Большая Дорогомиловская улица и Третье транспортное кольцо. 4 мин пешком от м.Парка Победы.Архитектура и дизайн: Панорамное остекление в каждом офисном блоке, лаконичность и строгость форм. Этаж разделен на 12 офисных блоков площадью от 64,5 до 270 кв.м. Внутренние пространства сочетают в себе комфорт, камерность и технологии: просторные офисы с высотой потолков 3,7 м, приватные офисов с террасами, highspace-офисы с высотой потолков 7,5м, зоны отдыха, двухсветное лобби с потолками 11,5 метров и площадью 250 кв.метров с приватной зоной для отдыха и встреч. Технические характеристики: Центральная система кондиционирования и приточно-вытяжная вентиляция. Скоростные лифты с минимальным уровнем шума и раздельными зонами подъёма. Круглосуточное наблюдение, многоуровневая система охраны и электронные ключи для резидентов бизнес-центра.Бизнес-инфраструктура: от зарядных станций для электромобилей и автомойки в паркинге до ресторанов, минимаркетов и клиентских офисов на втором этаже.Благоустройство: площадь участка 0,58 Га, площадь благоустройства занимает около 900 м2. Внутренний парк-сад будет разделен на зону с арт-объектами, зону с беседками, коворкинг на улице и зеркальное озеро. На территории будет высажено более 14 крупномеров и 130 кустарников.Звоните нам для получения подробной информации по проекту и модели инвестиционной доходности.Арт.

Читать полностью
    Позвонить Написать
    43 154 700 Р559 600 $ или 474 100
    Агент
    +7 (915) 164-56-43
    Начать чат с агентом
    Похожие предложения
    Офис (75.71 м) - Фото 1
    Офис (75.71 м) - Фото 2
    5-й этаж, всего 15 этажей

    Премиальный бизнес-центр класса А+ расположен в престижном районе Дорогомилово, в составе масштабного делового кластера «Большой Сити . Бизнес-центр A+ общей площадью помещений 27 400 м2, 15 этажей с двухуровневым паркингом на 123 места расположен по...
    • 5/15 эт.
    43 154 700 Р
    Агент
    +7 (963) Показать номер
    Посмотреть контакты
    Офис в Москва ул. Неверовского, 10С3 (76 м) - Фото 1
    Офис в Москва ул. Неверовского, 10С3 (76 м) - Фото 2
    5-й этаж, всего 15 этажей

    Уважаемый Покупатель, предлагаем Вам приобрести в БЦ Цетлин офис 75.7 м на 5 этаже в собственность на выгодных условиях.Приточно-вытяжная вентиляция. Центральное кондиционирование. Пожарная сигнализация. Интернет, телефония. Охрана. Видеонаблюдение....
    • 5/15 эт.
    43 149 000 Р
    Агент
    +7 (985) Показать номер
    Посмотреть контакты
    Офис в Москва ул. Викторенко, 5С1 (70 м) - Фото 1
    Офис в Москва ул. Викторенко, 5С1 (70 м) - Фото 2
    7-й этаж, всего 34 этажа

    Продается офис в деловом комплексе, состоящий из 3 офисных корпусов разной этажности и 2-этажного блока с техническими и торговыми помещениями. В каждом корпусе установлены бесшумные скоростные пассажирские и грузовые лифты.В проекте предлагаются офисные...
    • 7/34 эт.
    43 500 000 Р
    Агент
    +7 (915) Показать номер
    Посмотреть контакты
    Офис в Москва Ленинский просп., 64/2 (130 м) - Фото 1
    Офис в Москва Ленинский просп., 64/2 (130 м) - Фото 2
    1-й этаж, всего 8 этажей

    Лот 62466 Дмитрий ЗигануровДобрый день Эксклюзивно в CHASE.RESВашему вниманию помещение площадью 130м2 на 1 этаже с отдельным входом с торца дома по адресу: проспект Ленинский 64/2, кабинетной планировки. Готовый арендный бизнес. Арендатор Компания ЕРМОЛИНО....
    • 1/8 эт.
    43 500 000 Р
    Агент
    +7 (985) Показать номер
    Посмотреть контакты
    Офис (130 м) - Фото 1
    Офис (130 м) - Фото 2
    1-й этаж, всего 8 этажей

    Лот 62466 Дмитрий ЗигануровДобрый день Эксклюзивно в CHASE.RESВашему вниманию помещение площадью 130м2 на 1 этаже с отдельным входом с торца дома по адресу: проспект Ленинский 64/2, кабинетной планировки. Готовый арендный бизнес. Арендатор Компания ЕРМОЛИНО....
    • 1/8 эт.
    43 500 000 Р
    Агент
    +7 (984) Показать номер
    Посмотреть контакты

    Не нашли подходящего объявления?

    Оставьте заявку, и наши риэлторы подберут офис в районе Москвы

    (0)