78 702 700 Р 999 400 $ или 864 600

Информация о помещении и здании

8
Этаж
20
Этажность
Развернуть
Агент
+7 (985) 526-81-63
Начать чат с агентом

Офис в Москва Верейская ул., 29С29 (213 м)

Старт продаж Продаётся офисное помещение площадью 212.71 м на 8 этаже в новом бизнес-центре SET в башне K1. БЦ SET — современные офисы класса А от MR Office, расположенные в Можайском районе Западного административного округа Москвы на ул. Верейская. SET расположен между ключевыми транспортными магистралями столицы — Кутузовским и Мичуринском проспектами и в 15 минутах от станции метро Давыдково. Также в 4-х минутах от комплекса будет проектируемая станция Филевской линии метро.В составе проекта — 2 башни в 20 и 38 этажей общей площадью 130 873,24 м. Особая форма наклонных фасадов SET создает силуэт напоминающий изгибыи пластику волны. Ведь, как и природа, любой бизнес стремиться быть не только масштабным и стабильным, но и гибким и динамичным. За динамичную архитектуруотвечает бюро UNK architects.Инфраструктура бизнес центра включает в себя:— Лаундж-зоны и диджитал-гостиную — Drop-off зону, обеспечивающую комфортный подъезд— 3-х уровневый подземный паркинг на 360 машино-мест— Ландшафтное пространство и собственный закрытый сад с арт-инсталляцией и амфитеатром— Фитнес-центр с бассейном 5 595 м2 и стеклянной крышей в отдельном корпусе— Фуд-холл Eat market — Рестораны и кафе — Торговая галерея — Мини-маркет— МФЦ и пр.— Инфраструктура кварталов SET и VEERВсе офисы сдаются в отделке Shell Core. Высокие потолки 3,4 м и панорамное остекление обеспечивают отличную инсоляцию в офисах всегда будет светло и комфортно.Особые условия приобретения:- Рассрочка 0 до ввода- Возврат НДС

Читать полностью
    Позвонить Написать
    78 702 700 Р999 400 $ или 864 600
    Агент
    +7 (985) 526-81-63
    Начать чат с агентом
    Похожие предложения
    Офис в Москва Верейская ул., 29С29 (213 м) - Фото 1
    Офис в Москва Верейская ул., 29С29 (213 м) - Фото 2
    8-й этаж, всего 20 этажей

    Старт продаж Продаётся офисное помещение площадью 212.71 м на 8 этаже в новом бизнес-центре SET в башне K1. БЦ SET — современные офисы класса А от MR Office, расположенные в Можайском районе Западного административного округа Москвы на ул. Верейская....
    • 8/20 эт.
    78 702 700 Р
    Агент
    +7 (985) Показать номер
    Посмотреть контакты
    Продажа офиса 182.4 м2 - Фото 1
    Продажа офиса 182.4 м2 - Фото 2
    Продажа офиса 182.4 м2 - Фото 3
    Продажа офиса 182.4 м2 - Фото 4
    Продажа офиса 182.4 м2 - Фото 5
    Продажа офиса 182.4 м2 - Фото 6
    Продажа офиса 182.4 м2 - Фото 7
    Продажа офиса 182.4 м2 - Фото 8
    Продажа офиса 182.4 м2 - Фото 9
    Продажа офиса 182.4 м2 - Фото 10
    Продажа офиса 182.4 м2 - Фото 11
    Продажа офиса 182.4 м2 - Фото 12
    Продажа офиса 182.4 м2 - Фото 13
    реализуемая площадь 182.4м², 17-й этаж, всего 34 этажа, открытая планировка

    Бизнес-центр АВИУМ. Скидка 3% до конца месяца. Рассрочка 0% до РВЭ. Ипотека 6%. Гибкие уcловия оплaты (pаcсрочка, oтсpочкa, ипoтека) . Пpодажа пpeмиaльныx oфисов в бизнеc-центpe АВИУМ. Двe 34-этажные башни, объединенные торговой галереей с уникальными...
    • 182.4 м²
    • A
    • 17/34 эт.
    • парковка
    78 067 200 Р
    Агент
    +7 (495) Показать номер
    Посмотреть контакты
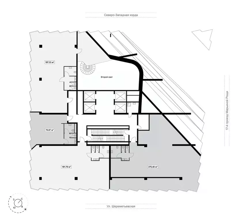
    Офис в Москва проезд 17-й Марьиной рощи, 6 (192 м) - Фото 1
    Офис в Москва проезд 17-й Марьиной рощи, 6 (192 м) - Фото 2
    2-й этаж, всего 11 этажей

    Эдель - 11-этажный бизнес-центр класса А в районе Марьина Роща. Локация активно развивается в рамках программы комплексного развития территории: здесь идет масштабное преобразование района, в рамках которого строится более кв. м жилых и коммерческих...
    • 2/11 эт.
    79 746 282 Р
    Агент
    +7 (916) Показать номер
    Посмотреть контакты
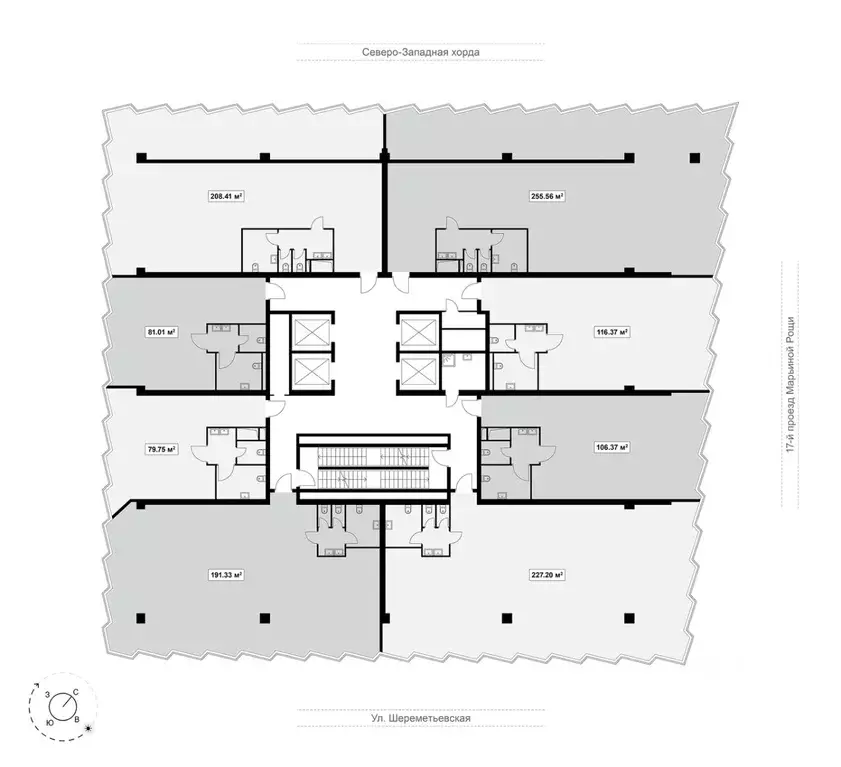
    Офис в Москва проезд 17-й Марьиной рощи, 6 (191 м) - Фото 1
    Офис в Москва проезд 17-й Марьиной рощи, 6 (191 м) - Фото 2
    8-й этаж, всего 11 этажей

    Эдель - 11-этажный бизнес-центр класса А в районе Марьина Роща. Локация активно развивается в рамках программы комплексного развития территории: здесь идет масштабное преобразование района, в рамках которого строится более кв. м жилых и коммерческих...
    • 8/11 эт.
    79 784 610 Р
    Агент
    +7 (916) Показать номер
    Посмотреть контакты
    Офис в Москва Ярцевская ул., 23А (178 м) - Фото 1
    Офис в Москва Ярцевская ул., 23А (178 м) - Фото 2
    4-й этаж, всего 40 этажей

    Продается офисное помещение на 4 этаже в БЦ KORP.Молодежная, А класса, который находится по адресу: ул. Ярцевская, д. 23А. Без комиссии для Покупателя ЛОКАЦИЯ: Шаговая доступность от станций метро Молодежная, Рабочий поселок, Крылатское. Удобный выезд...
    • 4/40 эт.
    78 532 740 Р
    Агент
    +7 (989) Показать номер
    Посмотреть контакты

    Не нашли подходящего объявления?

    Оставьте заявку, и наши риэлторы подберут офис в районе Москвы

    (0)