27 789 390 Р 369 400 $ или 314 400

Информация о помещении и здании

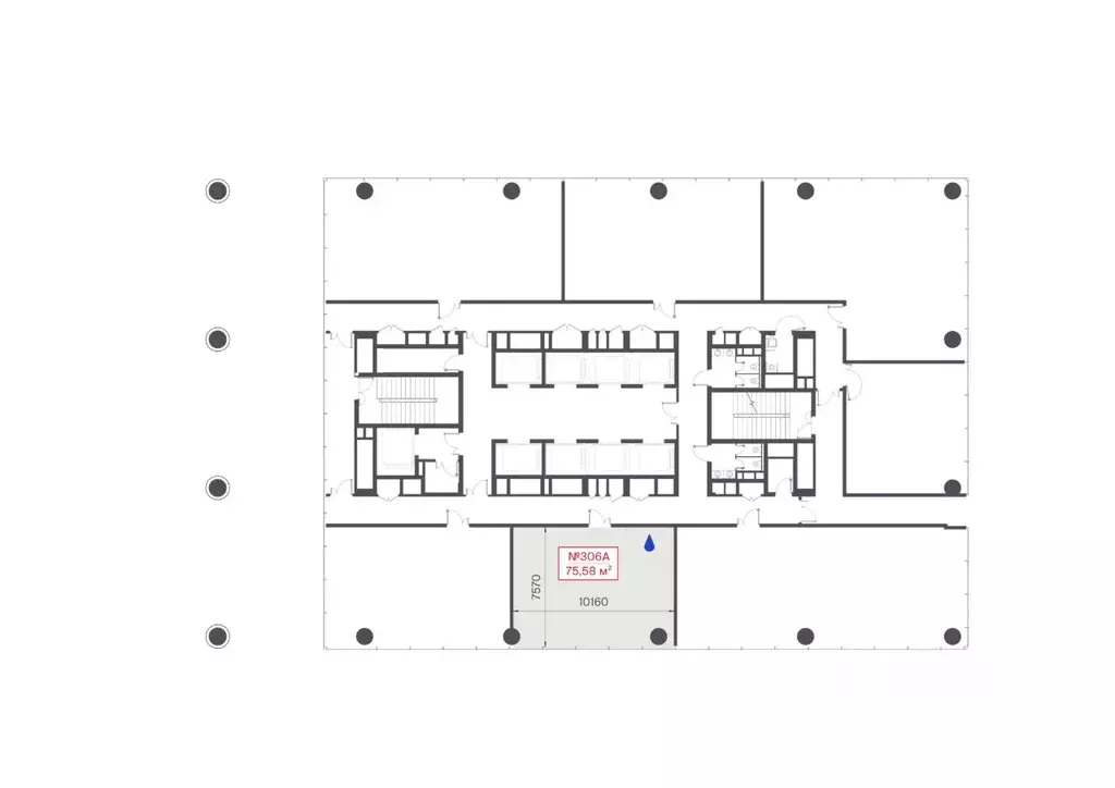
4
Этаж
20
Этажность
Развернуть
Агент
+7 (985) 526-81-63
Начать чат с агентом

Офис в Москва Верейская ул., 29С29 (75 м)

Старт продаж Продаётся офисное помещение площадью 75.31 м на 4 этаже в новом бизнес-центре SET в башне K1. БЦ SET — современные офисы класса А от MR Office, расположенные в Можайском районе Западного административного округа Москвы на ул. Верейская. SET расположен между ключевыми транспортными магистралями столицы — Кутузовским и Мичуринском проспектами и в 15 минутах от станции метро Давыдково. Также в 4-х минутах от комплекса будет проектируемая станция Филевской линии метро.В составе проекта — 2 башни в 20 и 38 этажей общей площадью 130 873,24 м. Особая форма наклонных фасадов SET создает силуэт напоминающий изгибыи пластику волны. Ведь, как и природа, любой бизнес стремиться быть не только масштабным и стабильным, но и гибким и динамичным. За динамичную архитектуруотвечает бюро UNK architects.Инфраструктура бизнес центра включает в себя:— Лаундж-зоны и диджитал-гостиную — Drop-off зону, обеспечивающую комфортный подъезд— 3-х уровневый подземный паркинг на 360 машино-мест— Ландшафтное пространство и собственный закрытый сад с арт-инсталляцией и амфитеатром— Фитнес-центр с бассейном 5 595 м2 и стеклянной крышей в отдельном корпусе— Фуд-холл Eat market — Рестораны и кафе — Торговая галерея — Мини-маркет— МФЦ и пр.— Инфраструктура кварталов SET и VEERВсе офисы сдаются в отделке Shell Core. Высокие потолки 3,4 м и панорамное остекление обеспечивают отличную инсоляцию в офисах всегда будет светло и комфортно.Особые условия приобретения:- Рассрочка 0 до ввода- Возврат НДС

Читать полностью
    Позвонить Написать
    27 789 390 Р369 400 $ или 314 400
    Агент
    +7 (985) 526-81-63
    Начать чат с агентом
    Похожие предложения в Москве
    Офис в Москва Верейская ул., 29С29 (31 м) - Фото 1
    Офис в Москва Верейская ул., 29С29 (31 м) - Фото 2
    1-й этаж, всего 20 этажей

    Старт продаж Продаётся офисное помещение площадью 30.68 м на 1 этаже в новом бизнес-центре SET в башне K1. БЦ SET — современные офисы класса А от MR Office, расположенные в Можайском районе Западного административного округа Москвы на ул. Верейская. SET...
    • 1/20 эт.
    28 685 800 Р
    Агент
    +7 (985) Показать номер
    Посмотреть контакты
    Офис в Москва Верейская ул., 29С29 (75 м) - Фото 1
    Офис в Москва Верейская ул., 29С29 (75 м) - Фото 2
    8-й этаж, всего 20 этажей

    Старт продаж Продаётся офисное помещение площадью 75.32 м на 8 этаже в новом бизнес-центре SET в башне K1. БЦ SET — современные офисы класса А от MR Office, расположенные в Можайском районе Западного административного округа Москвы на ул. Верейская. SET...
    • 8/20 эт.
    28 922 880 Р
    Агент
    +7 (985) Показать номер
    Посмотреть контакты
    Офис в Москва Верейская ул., 29С29 (72 м) - Фото 1
    Офис в Москва Верейская ул., 29С29 (72 м) - Фото 2
    7-й этаж, всего 20 этажей

    Старт продаж Продаётся офисное помещение площадью 72.06 м на 7 этаже в новом бизнес-центре SET в башне K1. БЦ SET — современные офисы класса А от MR Office, расположенные в Можайском районе Западного административного округа Москвы на ул. Верейская. SET...
    • 7/20 эт.
    27 238 680 Р
    Агент
    +7 (985) Показать номер
    Посмотреть контакты
    Офис в Москва Верейская ул., 29С29 (72 м) - Фото 1
    Офис в Москва Верейская ул., 29С29 (72 м) - Фото 2
    7-й этаж, всего 20 этажей

    Старт продаж Продаётся офисное помещение площадью 71.76 м на 7 этаже в новом бизнес-центре SET в башне K1. БЦ SET — современные офисы класса А от MR Office, расположенные в Можайском районе Западного административного округа Москвы на ул. Верейская. SET...
    • 7/20 эт.
    27 125 280 Р
    Агент
    +7 (985) Показать номер
    Посмотреть контакты
    Офис в Москва Верейская ул., 29С29 (75 м) - Фото 1
    Офис в Москва Верейская ул., 29С29 (75 м) - Фото 2
    4-й этаж, всего 20 этажей

    Старт продаж Продаётся офисное помещение площадью 75.48 м на 4 этаже в новом бизнес-центре SET в башне K1. БЦ SET — современные офисы класса А от MR Office, расположенные в Можайском районе Западного административного округа Москвы на ул. Верейская. SET...
    • 4/20 эт.
    27 852 120 Р
    Агент
    +7 (985) Показать номер
    Посмотреть контакты

    Не нашли подходящего объявления?

    Оставьте заявку, и наши риэлторы подберут офис в районе Москвы

    (0)