66 581 140 Р 857 900 $ или 737 300

Информация о помещении и здании

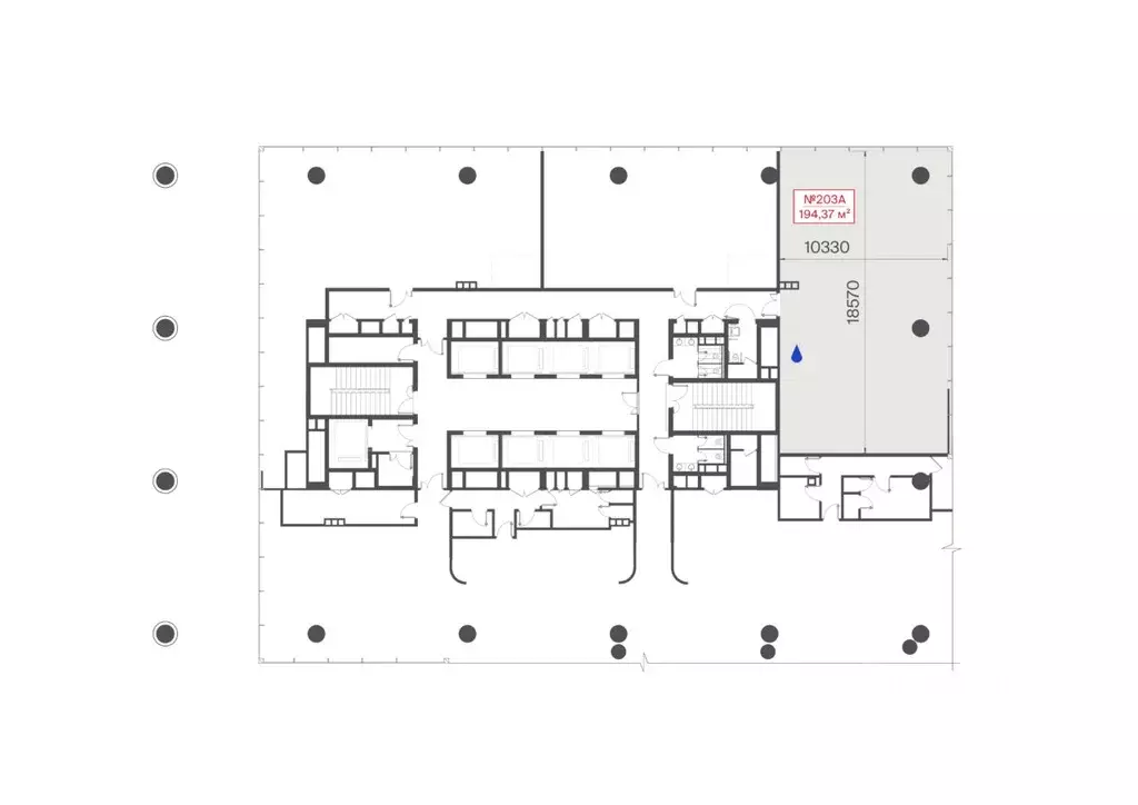
7
Этаж
20
Этажность
Развернуть
Агент
+7 (985) 526-81-63
Начать чат с агентом

Офис в Москва Верейская ул., 29С29 (181 м)

Старт продаж Продаётся офисное помещение площадью 181.42 м на 7 этаже в новом бизнес-центре SET в башне K1. БЦ SET — современные офисы класса А от MR Office, расположенные в Можайском районе Западного административного округа Москвы на ул. Верейская. SET расположен между ключевыми транспортными магистралями столицы — Кутузовским и Мичуринском проспектами и в 15 минутах от станции метро Давыдково. Также в 4-х минутах от комплекса будет проектируемая станция Филевской линии метро.В составе проекта — 2 башни в 20 и 38 этажей общей площадью 130 873,24 м. Особая форма наклонных фасадов SET создает силуэт напоминающий изгибыи пластику волны. Ведь, как и природа, любой бизнес стремиться быть не только масштабным и стабильным, но и гибким и динамичным. За динамичную архитектуруотвечает бюро UNK architects.Инфраструктура бизнес центра включает в себя:— Лаундж-зоны и диджитал-гостиную — Drop-off зону, обеспечивающую комфортный подъезд— 3-х уровневый подземный паркинг на 360 машино-мест— Ландшафтное пространство и собственный закрытый сад с арт-инсталляцией и амфитеатром— Фитнес-центр с бассейном 5 595 м2 и стеклянной крышей в отдельном корпусе— Фуд-холл Eat market — Рестораны и кафе — Торговая галерея — Мини-маркет— МФЦ и пр.— Инфраструктура кварталов SET и VEERВсе офисы сдаются в отделке Shell Core. Высокие потолки 3,4 м и панорамное остекление обеспечивают отличную инсоляцию в офисах всегда будет светло и комфортно.Особые условия приобретения:- Рассрочка 0 до ввода- Возврат НДС

Читать полностью
    Позвонить Написать
    66 581 140 Р857 900 $ или 737 300
    Агент
    +7 (985) 526-81-63
    Начать чат с агентом
    Похожие предложения
    Офис в Москва Верейская ул., 29С29 (190 м) - Фото 1
    Офис в Москва Верейская ул., 29С29 (190 м) - Фото 2
    2-й этаж, всего 20 этажей

    Старт продаж Продаётся офисное помещение площадью 190.00 м на 2 этаже в новом бизнес-центре SET в башне K1. БЦ SET — современные офисы класса А от MR Office, расположенные в Можайском районе Западного административного округа Москвы на ул. Верейская....
    • 2/20 эт.
    66 880 000 Р
    Агент
    +7 (985) Показать номер
    Посмотреть контакты
    Офис в Москва Верейская ул., 29С29 (181 м) - Фото 1
    Офис в Москва Верейская ул., 29С29 (181 м) - Фото 2
    7-й этаж, всего 20 этажей

    Старт продаж Продаётся офисное помещение площадью 181.34 м на 7 этаже в новом бизнес-центре SET в башне K1. БЦ SET — современные офисы класса А от MR Office, расположенные в Можайском районе Западного административного округа Москвы на ул. Верейская....
    • 7/20 эт.
    66 551 780 Р
    Агент
    +7 (985) Показать номер
    Посмотреть контакты
    Офис в Москва Верейская ул., 29с32Д (190 м) - Фото 1
    Офис в Москва Верейская ул., 29с32Д (190 м) - Фото 2
    2-й этаж, всего 20 этажей

    Уважаемый Покупатель, предлагаем Вам приобрести в БЦ SET, башня К1 офис 190.0 м на 2 этаже в собственность на выгодных условиях.Приточно-вытяжная вентиляция. Центральное кондиционирование. Пожарная сигнализация. Интернет, телефония. Охрана. Видеонаблюдение....
    • 2/20 эт.
    66 880 000 Р
    Агент
    +7 (985) Показать номер
    Посмотреть контакты
    Офис в Москва Верейская ул., 29с32Д (181 м) - Фото 1
    Офис в Москва Верейская ул., 29с32Д (181 м) - Фото 2
    7-й этаж, всего 20 этажей

    Уважаемый Покупатель, предлагаем Вам приобрести в БЦ SET, башня К1 офис 181.4 м на 7 этаже в собственность на выгодных условиях.Приточно-вытяжная вентиляция. Центральное кондиционирование. Пожарная сигнализация. Интернет, телефония. Охрана. Видеонаблюдение....
    • 7/20 эт.
    66 573 800 Р
    Агент
    +7 (985) Показать номер
    Посмотреть контакты
    Офис в Москва Верейская ул., 29с32Д (181 м) - Фото 1
    Офис в Москва Верейская ул., 29с32Д (181 м) - Фото 2
    7-й этаж, всего 20 этажей

    Уважаемый Покупатель, предлагаем Вам приобрести в БЦ SET, башня К1 офис 181.3 м на 7 этаже в собственность на выгодных условиях.Приточно-вытяжная вентиляция. Центральное кондиционирование. Пожарная сигнализация. Интернет, телефония. Охрана. Видеонаблюдение....
    • 7/20 эт.
    66 537 100 Р
    Агент
    +7 (985) Показать номер
    Посмотреть контакты

    Не нашли подходящего объявления?

    Оставьте заявку, и наши риэлторы подберут офис в районе Москвы

    (0)